物件掲載企業数:297|賃貸物件:3,610件|売買物件:3,333件|今週の登録物件:273
閲覧中のブラウザ(インターネットエクスプローラー)は非推奨ブラウザです。
物件が正しく表示されなかったり、正しく検索されない場合があります。最新のブラウザ(Google Chrome・Edgeなど)にてご利用お願いいたします。
  

新潟県見附市今町5丁目3235番地5 / 3220番16 売土地・分譲地 3,800,000円の物件情報

見附バイパス近く・マルイ今町国道店まで徒歩4分(260m)の住宅街

物件名/所在地 詳細 価格
見附市今町5丁目【売土地B】
新潟県見附市今町5丁目3235番地5 / 3220番16
  • 土地面積
    :115.74㎡ /35.01坪
  • 坪単価
    :108,540円/坪
  • 建ぺい率
    :80%
  • 容積率
    :200%
3,800,000
  • 見附市今町5丁目【売土地B】
    株式会社 森山建設
  • この物件を問い合わせる/無料
  • TEL: 0258-52-3517

物件画像

外観 間取り
物件画像
※画像クリックで拡大表示
外観
物件画像
※画像クリックで拡大表示
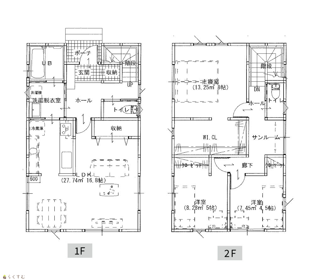
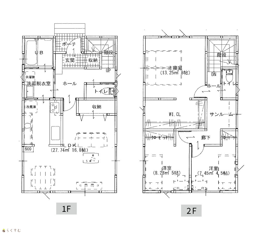
間取り
詳細画像


物件概要

【新築プラン付売り土地】その他、売土地Aもあり*
物件コード 00167-200037
物件名 見附市今町5丁目【売土地B】
交通 駅:信越線 見附駅から徒歩24分、バス:今町5丁目から徒歩6分
物件所在地 新潟県見附市今町5丁目3235番地5 / 3220番16
物件種別 売土地・分譲地
物件区分 売土地
構造 - 階建 -
建ぺい率/容積率 80%/200%
建物面積 -
土地面積 115.74㎡ /35.01坪
築年月 -
入居(引き渡し)時期 相談
用途地域 近隣商業地域 地目 宅地
都市計画 市街化区域 学校区 今町小学校(1,100m)・今町中学校(400m)
形状 間口 7.04m × 奥行 16.57m 道路 北側公道6M
私道 - その他の制限 -
  • 見附市今町5丁目【売土地B】
    株式会社 森山建設
  • この物件を問い合わせる/無料
  • TEL: 0258-52-3517

物件詳細情報

所在階/階数 - 号室 -
販売価格 3,800,000円 方位 -
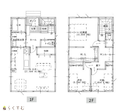
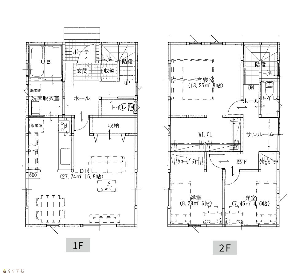
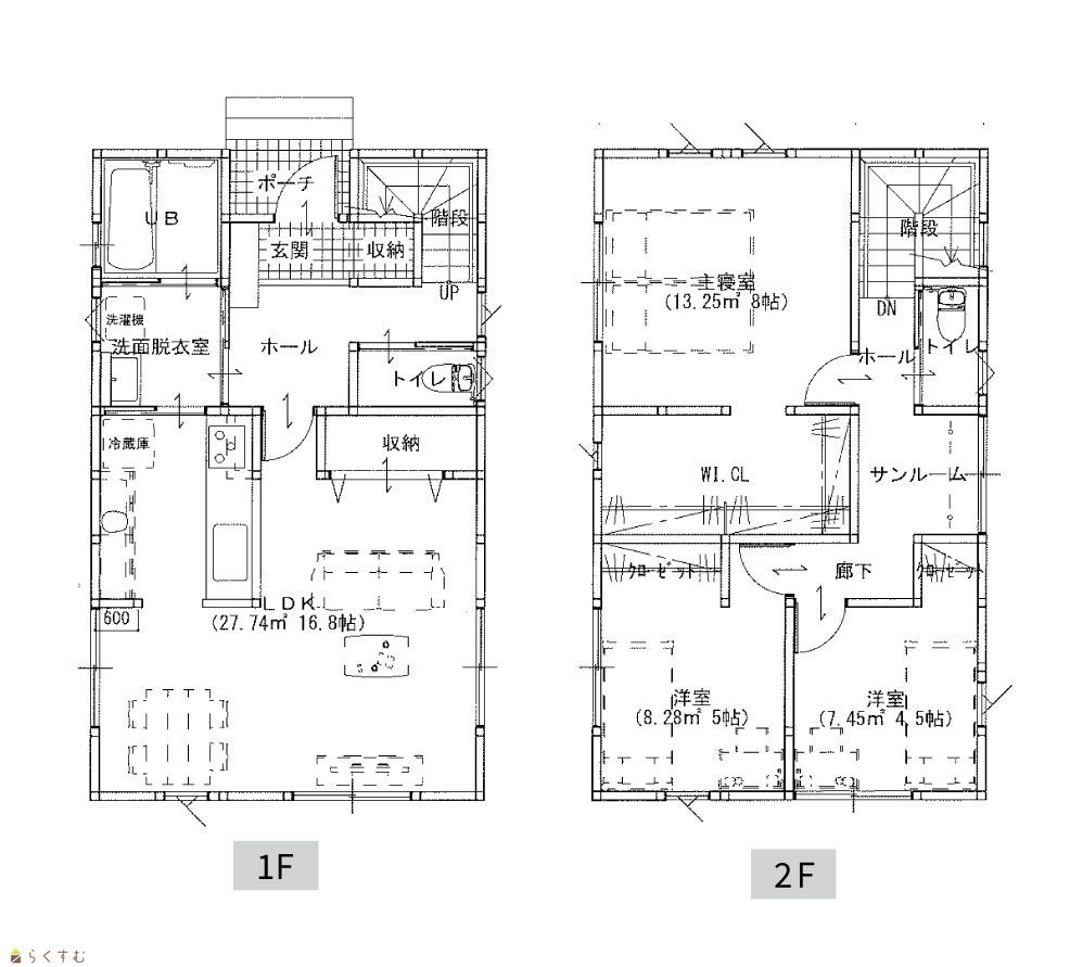
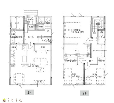
間取り LDK (洋室:8、5、4.5)
LDK16.8
専有面積 - バルコニー面積 -
その他面積 - 駐車場 -
管理費 - 修繕積立金 -
現況 -
仲介手数料 なし
利用制限 -
設備 整形地、前道6m以上、学校近く、スーパー近く、閑静な住宅街、電気、都市ガス(宅地内)、上水道(宅地内)、下水道(宅地内)、住宅向け
取引態様 売主
備考 3LDK・駐車2台可能、新築プラン付売土地 参考価格 【土地:380万円+建物2150万円=2530万円※諸経費別途負担あり】
※建築条件付
取り扱い会社

株式会社 森山建設

新潟県長岡市赤谷56-1

情報登録日 2025/10/09 次回更新予定日 2026/01/13
取引条件有効期限 2026/03/08
  • 見附市今町5丁目【売土地B】
    株式会社 森山建設
  • この物件を問い合わせる/無料
  • TEL: 0258-52-3517

この物件の地図・周辺情報・行政情報

この物件の周辺情報・行政情報を詳しく見る
【周辺情報】
物件の近くにあるコンビニや銀行・学校など、アイコン付のマップで詳しく表示できます!
【行政情報】
水道料や下水道料・ガス料金など、暮らしに関係のある情報を表示しています。

担当取扱い店舗情報

取扱い店舗画像
株式会社 森山建設
TEL: 0258-52-3517
所在地: 新潟県長岡市赤谷56-1
交通:
営業時間: 9:00~18:00/定休日:水曜日
免許番号: 新潟県知事(4)第4845号 この会社の情報を詳しく見る
所属団体名: 新潟県宅地建物取引業協会 長岡支部
取引態様: 売主
ホームページ: http://www.kk-moriken.jp/