物件掲載企業数:301|賃貸物件:3,261件|売買物件:3,251件|今週の登録物件:296
閲覧中のブラウザ(インターネットエクスプローラー)は非推奨ブラウザです。
物件が正しく表示されなかったり、正しく検索されない場合があります。最新のブラウザ(Google Chrome・Edgeなど)にてご利用お願いいたします。
  

新潟県上越市新光町2丁目189番5 新築一戸建て 3LDK 33,400,000円の物件情報

■水廻りを直線化したスマート動線で、毎日の家事が驚くほどスムーズ。 ■LDKも居室も、欲しかった広さをしっかり確保。 ■6帖の子供部屋、8帖+3帖WICの主寝室で、将来まで安心の間取り。

物件名/所在地 詳細 価格
上越市新光町2丁目 建売住宅【区画2】
新潟県上越市新光町2丁目189番5
  • 土地面積
    :203.94㎡ /61.69坪
  • 建物面積
    :101.01㎡ /30.55坪
  • 間取り
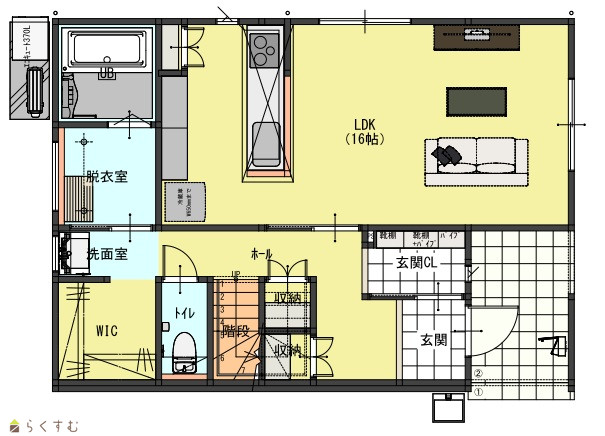
    :3LDK
  • 築年月
    :2026年4月
33,400,000
  • 上越市新光町2丁目 建売住宅【区画2】
    ハーバーエステート株式会社 
  • この物件を問い合わせる/無料
  • TEL: 0120-228-815

物件画像

外観 間取り
物件画像
※画像クリックで拡大表示
外観パース
物件画像
※画像クリックで拡大表示
間取り
詳細画像


物件概要

物件コード 00154-200758
物件名 上越市新光町2丁目 建売住宅【区画2】
交通 駅:妙高はねうまライン 春日山駅から徒歩13分、バス:新光町から徒歩4分
物件所在地 新潟県上越市新光町2丁目189番5
物件種別 新築一戸建て
構造 木造 階建 地上2階建
建ぺい率/容積率 60%/200%
建物面積 1階 52.99㎡/ 2階 48.02㎡/ 計 101.01㎡ /30.55坪
土地面積 203.94㎡ /61.69坪
築年月 2026年4月(築1ヶ月)
入居(引き渡し)時期 相談
用途地域 第1種中高層住居専用地域 地目 宅地
都市計画 市街化区域 学校区 高志小学校(1,900m)・春日中学校(750m)
形状 間口 13.11m × 奥行 15.23m 道路 公道 西 幅員6.5m
私道 - その他の制限 上越市景観条例
  • 上越市新光町2丁目 建売住宅【区画2】
    ハーバーエステート株式会社 
  • この物件を問い合わせる/無料
  • TEL: 0120-228-815

物件詳細情報

所在階/階数 - 号室 -
販売価格 33,400,000円 方位 -
間取り 3LDK
専有面積 - バルコニー面積 -
その他面積 - 駐車場 -
管理費 - 修繕積立金 -
現況 空家
仲介手数料 1,168,200円
利用制限 -
設備 前面道路6m以上、閑静な住宅街、スーパー近く、BELS/省エネ基準適合認定建物、LDK15畳以上、駐車場3台以上、複層ガラス、IHクッキングヒーター、バス1坪以上、温水洗浄便座、シャワー付き洗面台、オール電化、上水道、下水道、電気、ウォークインクローゼット
取引態様 一般
備考 ・建築確認番号:NK第25本01837号
・仲介手数料が発生します
・間取図と現況に相違がある場合は、現況を優先とします。
取り扱い会社

ハーバーエステート株式会社 

新潟県長岡市神田町2-1-2

情報登録日 2026/05/01 次回更新予定日 2026/06/05
取引条件有効期限 2026/06/30
  • 上越市新光町2丁目 建売住宅【区画2】
    ハーバーエステート株式会社 
  • この物件を問い合わせる/無料
  • TEL: 0120-228-815

この物件の地図・周辺情報・行政情報

この物件の周辺情報・行政情報を詳しく見る
【周辺情報】
物件の近くにあるコンビニや銀行・学校など、アイコン付のマップで詳しく表示できます!
【行政情報】
水道料や下水道料・ガス料金など、暮らしに関係のある情報を表示しています。

担当取扱い店舗情報

取扱い店舗画像
ハーバーエステート株式会社 
TEL: 0120-228-815
所在地: 新潟県長岡市神田町2-1-2
交通: 長岡駅
営業時間: 10:00~18:00/定休日:無休
免許番号: 国土交通大臣(2)第9588号 この会社の情報を詳しく見る
所属団体名: 全日本不動産協会 新潟県本部
取引態様: 一般
ホームページ: http://www.niigata-tochi.com/