物件掲載企業数:299|賃貸物件:3,627件|売買物件:3,318件|今週の登録物件:195
閲覧中のブラウザ(インターネットエクスプローラー)は非推奨ブラウザです。
物件が正しく表示されなかったり、正しく検索されない場合があります。最新のブラウザ(Google Chrome・Edgeなど)にてご利用お願いいたします。
  

新潟県長岡市今井2丁目187番2 新築一戸建て 3LDK 22,550,000円の物件情報

■周辺には公園、スーパーなど生活利便施設が充実! ■お車でのお出かけにも不便のない立地です! ■前面道路もゆとりがありストレスなく駐車ができます♪ ■シューズクロークがあるので玄関まわりもすっきりします。

物件名/所在地 詳細 価格
長岡市今井2丁目 建売住宅
新潟県長岡市今井2丁目187番2
  • 土地面積
    :150.44㎡ /45.5坪
  • 建物面積
    :91.08㎡ /27.55坪
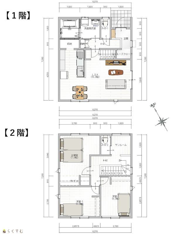
  • 間取り
    :3LDK
  • 築年月
    :2023年12月
22,550,000
  • 長岡市今井2丁目 建売住宅
    ハーバーエステート株式会社 
  • この物件を問い合わせる/無料
  • TEL: 0120-228-815

物件画像

外観 間取り
物件画像
※画像クリックで拡大表示
LDK※家具はCGですので、物件に含まれません
物件画像
※画像クリックで拡大表示
間取り
詳細画像


物件概要

物件コード 00154-200726
物件名 長岡市今井2丁目 建売住宅
交通 駅:信越線 宮内駅から徒歩19分、バス:今宮橋から徒歩5分
物件所在地 新潟県長岡市今井2丁目187番2
物件種別 新築一戸建て
構造 木造 階建 地上2階建
建ぺい率/容積率 50%/80%
建物面積 1階 44.71㎡/ 2階 46.37㎡/ 計 91.08㎡ /27.55坪
土地面積 150.44㎡ /45.5坪
築年月 2023年12月(築1年)
入居(引き渡し)時期 随時入居(引き渡し)可
用途地域 第1種低層住居専用地域 地目 宅地
都市計画 市街化区域 学校区 宮内小学校(1,300m)・宮内中学校(1,300m)
形状 間口 10.50m 道路 公道 北東 幅員6.0m
私道 - その他の制限 法22条指定区域、景観法、水防法、土地再生特別措置法
  • 長岡市今井2丁目 建売住宅
    ハーバーエステート株式会社 
  • この物件を問い合わせる/無料
  • TEL: 0120-228-815

物件詳細情報

所在階/階数 - 号室 -
販売価格 22,550,000円 方位 -
間取り 3LDK
専有面積 - バルコニー面積 -
その他面積 - 駐車場 -
管理費 - 修繕積立金 -
現況 空家
仲介手数料 810,150円
利用制限 -
設備 前面道路6m以上、閑静な住宅街、スーパー近く、LDK15畳以上、駐車場2台以上、システムキッチン、IHクッキングヒーター、追いだき機能付き、バス1坪以上、温水洗浄便座、シャワー付き洗面台、オール電化、上水道、下水道、電気、シューズインクローゼット、即引き渡し可能
取引態様 一般
備考 建築確認番号 NK第23本01017号

キッチン以外のコンセントは全て3口コンセントです。
全居室にテレビコンセントが併設しています。
屋内で郵便を受取れる埋込式ポストを採用しています。

【その他費用】
消雪組合加入金:104,000円/一括
消雪組合年会費:5,000円/年
取り扱い会社

ハーバーエステート株式会社 

新潟県長岡市神田町2-1-2

情報登録日 2025/10/20 次回更新予定日 2025/11/13
取引条件有効期限 2025/10/31
  • 長岡市今井2丁目 建売住宅
    ハーバーエステート株式会社 
  • この物件を問い合わせる/無料
  • TEL: 0120-228-815

この物件の地図・周辺情報・行政情報

この物件の周辺情報・行政情報を詳しく見る
【周辺情報】
物件の近くにあるコンビニや銀行・学校など、アイコン付のマップで詳しく表示できます!
【行政情報】
水道料や下水道料・ガス料金など、暮らしに関係のある情報を表示しています。

担当取扱い店舗情報

取扱い店舗画像
ハーバーエステート株式会社 
TEL: 0120-228-815
所在地: 新潟県長岡市神田町2-1-2
交通: 長岡駅
営業時間: 10:00~18:00/定休日:無休
免許番号: 国土交通大臣(2)第9588号 この会社の情報を詳しく見る
所属団体名: 全日本不動産協会 新潟県本部
取引態様: 一般
ホームページ: http://www.niigata-tochi.com/