物件掲載企業数:301|賃貸物件:3,261件|売買物件:3,251件|今週の登録物件:246
閲覧中のブラウザ(インターネットエクスプローラー)は非推奨ブラウザです。
物件が正しく表示されなかったり、正しく検索されない場合があります。最新のブラウザ(Google Chrome・Edgeなど)にてご利用お願いいたします。
  

新潟県長岡市学校町2丁目6番地22 売土地・分譲地 9,980,000円の物件情報

~~ 建築条件相談可能! ~~  ◆決算価格キャンペーン実施中! ◆長岡駅まで徒歩圏内(徒歩約13分/1000m) ◆アクロスプラザ長岡、業務スーパーまで1km圏内 ◆角地(北、東向き)

物件名/所在地 詳細 価格
長岡市学校町2丁目 売土地 
新潟県長岡市学校町2丁目6番地22
  • 土地面積
    :143.02㎡ /43.26坪
  • 坪単価
    :230,698円/坪
  • 建ぺい率
    :60%
  • 容積率
    :200%
9,980,000
  • 長岡市学校町2丁目 売土地 
    ハーバーエステート株式会社 
  • この物件を問い合わせる/無料
  • TEL: 0120-228-815

物件画像

外観 間取り
物件画像
※画像クリックで拡大表示
外観
物件画像
※画像クリックで拡大表示
敷地図
詳細画像


物件概要

物件コード 00154-200706
物件名 長岡市学校町2丁目 売土地 
交通 駅:信越線 長岡駅から徒歩14分、バス:学校町1丁目から徒歩3分
物件所在地 新潟県長岡市学校町2丁目6番地22
物件種別 売土地・分譲地
物件区分 売土地
構造 - 階建 -
建ぺい率/容積率 60%/200%
建物面積 -
土地面積 143.02㎡ /43.26坪
築年月 -
入居(引き渡し)時期 相談
用途地域 第2種中高層住居専用地域 地目 宅地
都市計画 市街化区域 学校区 四郎丸小学校(459m)・南中学校(1,173m)
形状 間口 10.75m × 奥行 13.18m 道路 公道 北 幅員7.3m/公道 東 幅員4.3m
私道 - その他の制限 法22条指定区域、第二種高度地区
  • 長岡市学校町2丁目 売土地 
    ハーバーエステート株式会社 
  • この物件を問い合わせる/無料
  • TEL: 0120-228-815

物件詳細情報

所在階/階数 - 号室 -
販売価格 9,980,000円 方位 -
間取り -
専有面積 - バルコニー面積 -
その他面積 - 駐車場 -
管理費 - 修繕積立金 -
現況 更地
仲介手数料 なし
利用制限 -
設備 角地、前道6m以上、学校近く、建築条件なし、所有権、下水道(前面道路)、電気、都市ガス(宅地内)、上水道(宅地内)
取引態様 売主
備考 【決算価格キャンペーン】
条件:2026年7月末までにキャンペーン対象物件でご成約・お引渡を完了していただいたお客様を対象に、
売買価格1098万円(税込)から100万円値引きした998万円(税込)で販売いたします。
《条件》
・2026年7月末までにキャンペーン対象物件でご成約・お引渡を完了していただいた方。
・当社にお問合せ頂いた方
・キャンペーン対象期間を過ぎた場合は、値下げ前の価格での販売となります。

●建築条件について
・本物件はハーバーハウス株式会社の建築条件付き土地で、建築条件付き価格は998万円です。
 建築条件を外しての販売も可能です。(建築条件を外した販売価格は1098万円となります。)

●その他
・汚水マスは売主負担で新設予定です。

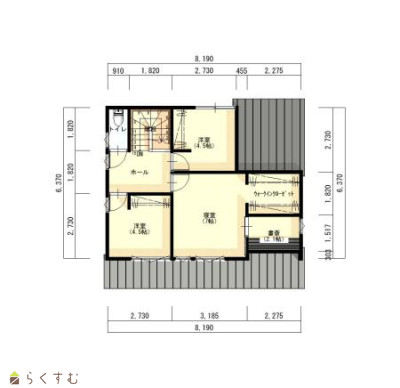
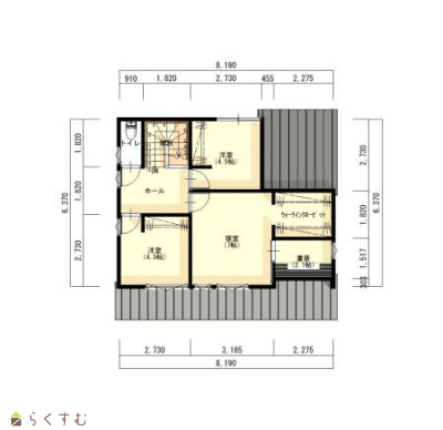
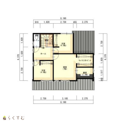
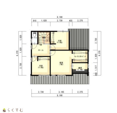
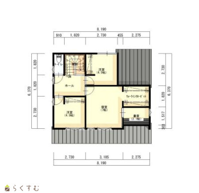
【建物プラン例】
物件参考価格 2270万円
1階面積 約57.13㎡(約17.28坪)
2階面積 約44.02㎡(約13.31坪)
延床面積 約101.15㎡(約30.59坪)

「建物参考価格」は以下のものをすべて含んだ【コミコミ価格】です!
本体工事費 土工・基礎工事 ・木工事・屋根・板金工事・タイル工事・外壁工事・左官工事・建具工事・内装工事・塗装工事・雑工事・電気設備工事・給排水衛生設備工事 ・全室照明器具 付帯工事費 敷地調査・地盤調査・地盤改良工事・仮設工事・外構工事・屋外電気工事・屋外給排水工事 諸経費その他 設計費・現場管理費・諸経費(工事保険、営業経費など)
標準設備 システムキッチン・IHクッキングヒーター・システムバス・洗面化粧台・エコキュート・玄関ドア・玄関収納・全室建具・全室照明 ※LED・各室収納・暖房便座ウォシュレットトイレ・2階暖房便座ウォシュレットトイレ・断熱材・断熱サッシetc 標準仕様 次世代省エネルギー基準適合・オール電化仕様・高気密・高断熱仕様・換気計画・高耐震、高耐久仕様・耐雪対策・結露、カビ、ダニ対策・シックハウス対策・シロアリ対策・防火対策etc
取り扱い会社

ハーバーエステート株式会社 

新潟県長岡市神田町2-1-2

情報登録日 2026/03/31 次回更新予定日 2026/06/06
取引条件有効期限 2026/03/31
  • 長岡市学校町2丁目 売土地 
    ハーバーエステート株式会社 
  • この物件を問い合わせる/無料
  • TEL: 0120-228-815

この物件の地図・周辺情報・行政情報

この物件の周辺情報・行政情報を詳しく見る
【周辺情報】
物件の近くにあるコンビニや銀行・学校など、アイコン付のマップで詳しく表示できます!
【行政情報】
水道料や下水道料・ガス料金など、暮らしに関係のある情報を表示しています。

担当取扱い店舗情報

取扱い店舗画像
ハーバーエステート株式会社 
TEL: 0120-228-815
所在地: 新潟県長岡市神田町2-1-2
交通: 長岡駅
営業時間: 10:00~18:00/定休日:無休
免許番号: 国土交通大臣(2)第9588号 この会社の情報を詳しく見る
所属団体名: 全日本不動産協会 新潟県本部
取引態様: 売主
ホームページ: http://www.niigata-tochi.com/