物件掲載企業数:301|賃貸物件:3,261件|売買物件:3,251件|今週の登録物件:245
閲覧中のブラウザ(インターネットエクスプローラー)は非推奨ブラウザです。
物件が正しく表示されなかったり、正しく検索されない場合があります。最新のブラウザ(Google Chrome・Edgeなど)にてご利用お願いいたします。
  

新潟県長岡市豊1丁目7番12号 中古一戸建て 6LDK 21,000,000円の物件情報

価格改定 2400万→2100万円 パルス徒歩1分、原信徒歩3分など商業施設が至近距離の好立地。6LDKの和洋ミックスの風情ある広々とした庭園付き住宅です!

物件名/所在地 詳細 価格
豊1丁目 売中古住宅
新潟県長岡市豊1丁目7番12号
  • 土地面積
    :338㎡ /102.24坪
  • 建物面積
    :203.33㎡ /61.5坪
  • 間取り
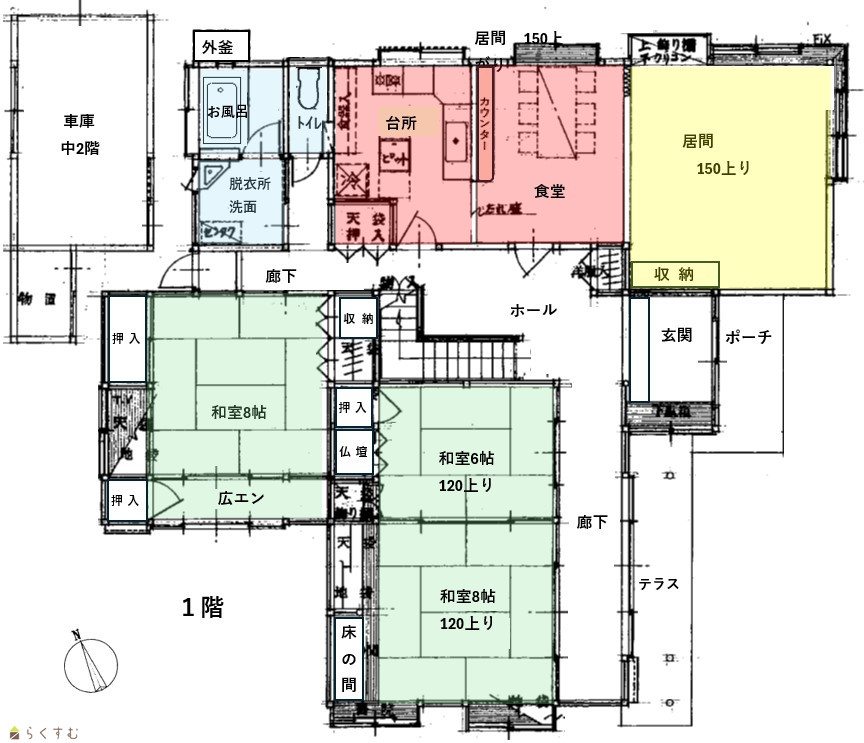
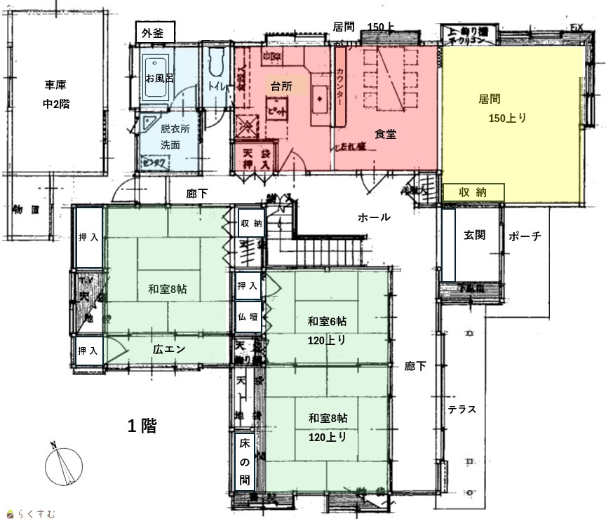
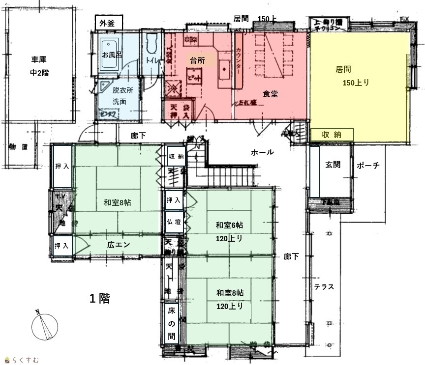
    :6LDK
  • 築年月
    :1983年7月
21,000,000
  • 豊1丁目 売中古住宅
    有限会社 北日本不動産
  • この物件を問い合わせる/無料
  • TEL: 0258-34-1441

物件画像

外観 間取り
物件画像
※画像クリックで拡大表示
外観正面
物件画像
※画像クリックで拡大表示
1F間取り図
詳細画像
動画


物件概要

近隣にショッピングセンター等の商業施設が充実している6LDKの和洋ミックスの風情ある和風住宅です!
物件コード 00129-200064
物件名 豊1丁目 売中古住宅
交通 駅:上越新幹線 長岡駅から徒歩31分
物件所在地 新潟県長岡市豊1丁目7番12号
物件種別 中古一戸建て
構造 木造 階建 地上2階建
建ぺい率/容積率 70%/200%
建物面積 1階 133.55㎡/ 2階 69.78㎡/ 計 203.33㎡ /61.5坪
土地面積 338㎡ /102.24坪
築年月 1983年7月(築42年)
入居(引き渡し)時期 相談
用途地域 第1種中高層住居専用地域 地目 宅地  (現状:空き家)
都市計画 市街化区域 学校区 川崎東小学校(305m)・東北中学校(354m)
形状 間口 16m × 奥行 22m 道路 東側市道:幅員6.1m / 北側市道:幅員6m
私道 - その他の制限 第二種高度地区・建築基準法22条区域・まちなか居住区域
  • 豊1丁目 売中古住宅
    有限会社 北日本不動産
  • この物件を問い合わせる/無料
  • TEL: 0258-34-1441

物件詳細情報

所在階/階数 - 号室 -
販売価格 21,000,000円 方位 -
間取り 6LDK (和室:8畳、8畳、6畳、6畳) (洋室:8、8)
専有面積 - バルコニー面積 -
その他面積 - 駐車場 -
管理費 - 修繕積立金 -
現況 空家
仲介手数料 759,000円
利用制限 -
設備 角地、日当り良好、閑静な住宅街、スーパー近く、エアコンあり、都市ガス、上水道、下水道
取引態様 一般
備考 ・売主契約不適合責任免責
・消雪組合加入必要 年間24,000円
・シロアリ駆除工事2022年1月11日施工済(5年間の保証有り)
・隣地(50坪)も一緒に購入可
・内覧希望の方は事前にご連絡下さい。
取り扱い会社

有限会社 北日本不動産

新潟県長岡市平島1丁目139番地

情報登録日 2025/09/01 次回更新予定日 2026/06/06
取引条件有効期限 2025/06/15
  • 豊1丁目 売中古住宅
    有限会社 北日本不動産
  • この物件を問い合わせる/無料
  • TEL: 0258-34-1441

この物件の地図・周辺情報・行政情報

この物件の周辺情報・行政情報を詳しく見る
【周辺情報】
物件の近くにあるコンビニや銀行・学校など、アイコン付のマップで詳しく表示できます!
【行政情報】
水道料や下水道料・ガス料金など、暮らしに関係のある情報を表示しています。
良食生活館 川崎店(スーパー)まで130m
原信 川崎店(スーパー)まで350m
美園内科クリニック(病院)まで290m
長岡信用金庫 美園支店(銀行)まで130m
セブン銀行ATM(銀行)まで350m

※カメラのアイコンがある場合は、マウスをポイントするとその施設の画像がご覧いただけます。


担当取扱い店舗情報

取扱い店舗画像
有限会社 北日本不動産
TEL: 0258-34-1441
所在地: 新潟県長岡市平島1丁目139番地
交通: 長岡駅
営業時間: 8:30~17:30/定休日:土日祝祭日
免許番号: 新潟県知事(16)第472号 この会社の情報を詳しく見る
所属団体名: 新潟県宅地建物取引協会 長岡支部
取引態様: 一般
ホームページ: http://kita2hon.co.jp