物件掲載企業数:301|賃貸物件:3,262件|売買物件:3,252件|今週の登録物件:248
閲覧中のブラウザ(インターネットエクスプローラー)は非推奨ブラウザです。
物件が正しく表示されなかったり、正しく検索されない場合があります。最新のブラウザ(Google Chrome・Edgeなど)にてご利用お願いいたします。
  

新潟県新潟市北区松浜3丁目 中古一戸建て 4LDK 32,000,000円の物件情報

南向きの日当たり良好。小学校・中学校・バス停徒歩5分圏内の立地も魅力です。

物件名/所在地 詳細 価格
【中古住宅】新潟市北区松浜3丁目 カーポート付戸建
新潟県新潟市北区松浜3丁目
  • 土地面積
    :286.4㎡ /86.63坪
  • 建物面積
    :124.2㎡ /37.57坪
  • 間取り
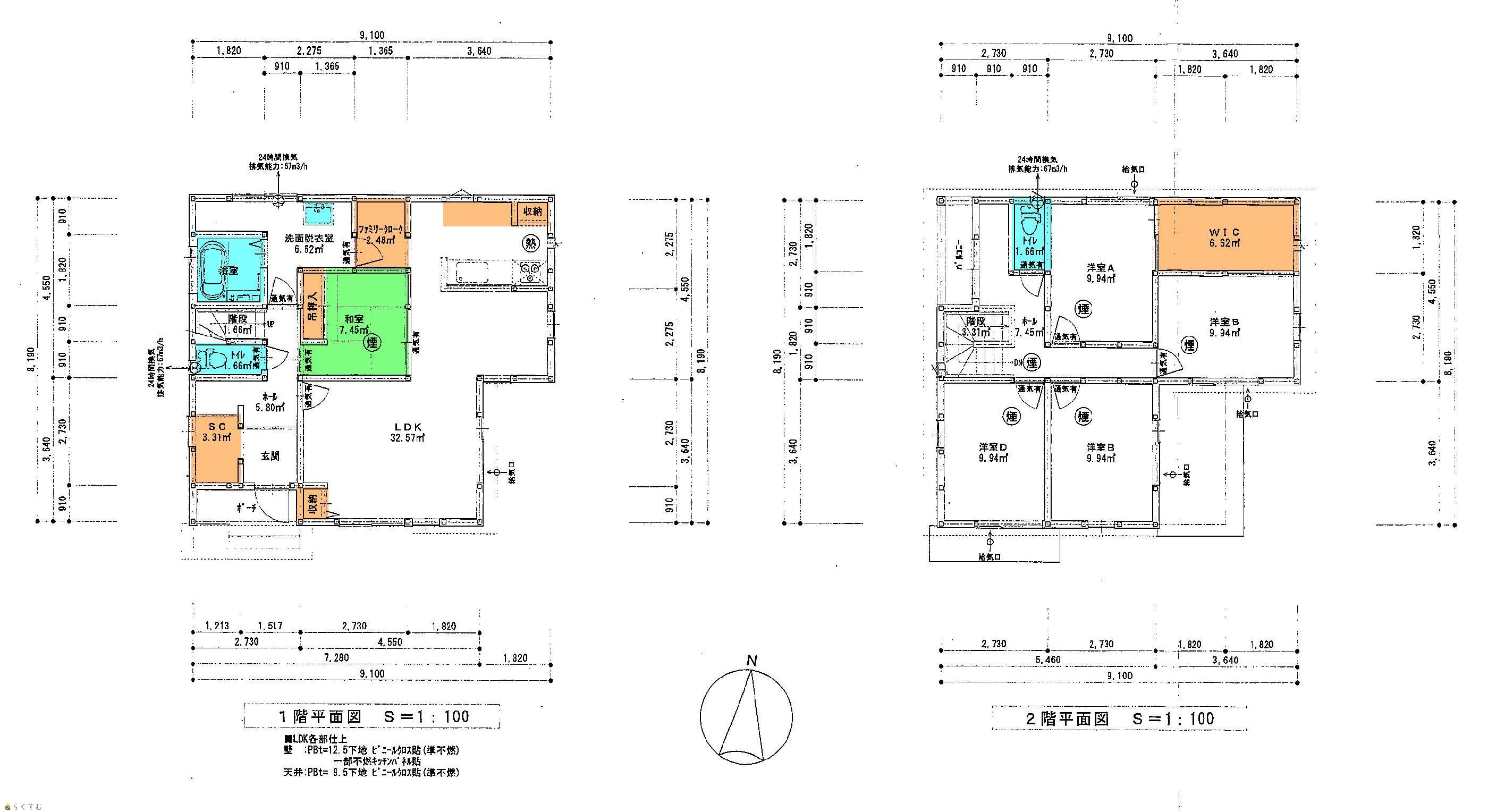
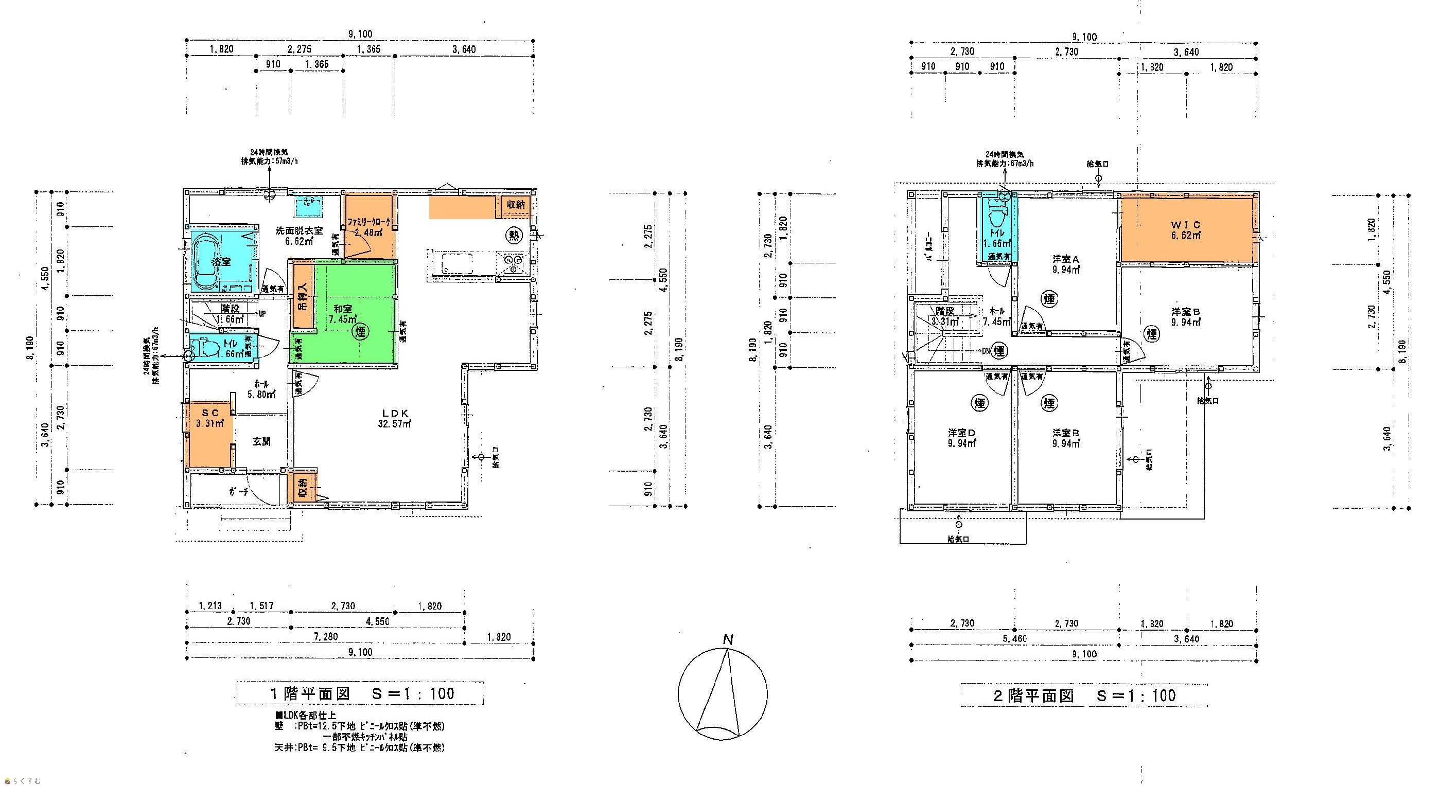
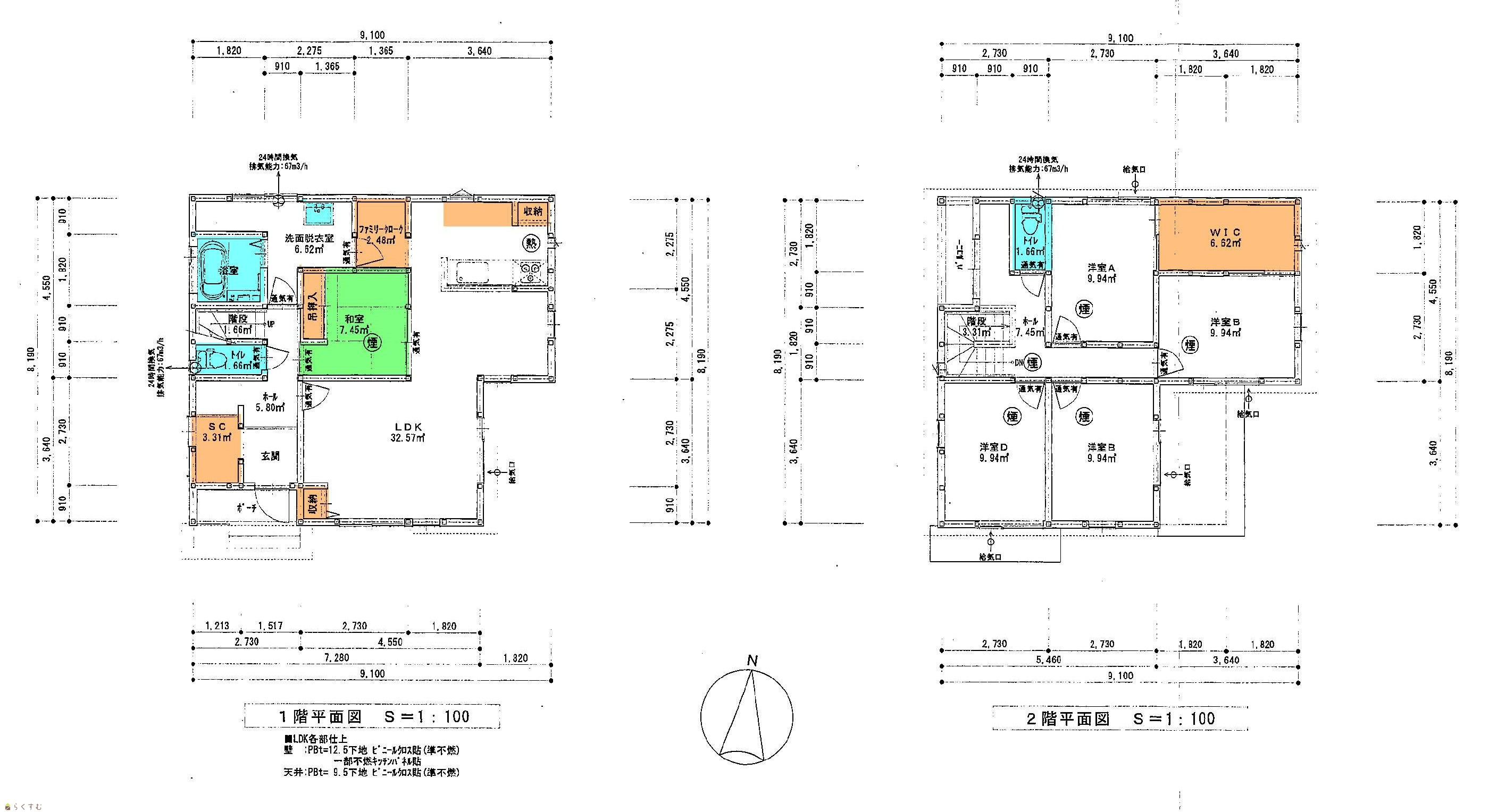
    :4LDK
  • 築年月
    :2018年4月
32,000,000
  • 【中古住宅】新潟市北区松浜3丁目 カーポート付戸建
    株式会社フォレス・タカダ
  • この物件を問い合わせる/無料
  • TEL: 0258-39-2919

物件画像

外観 間取り
物件画像
※画像クリックで拡大表示
外観
物件画像
※画像クリックで拡大表示
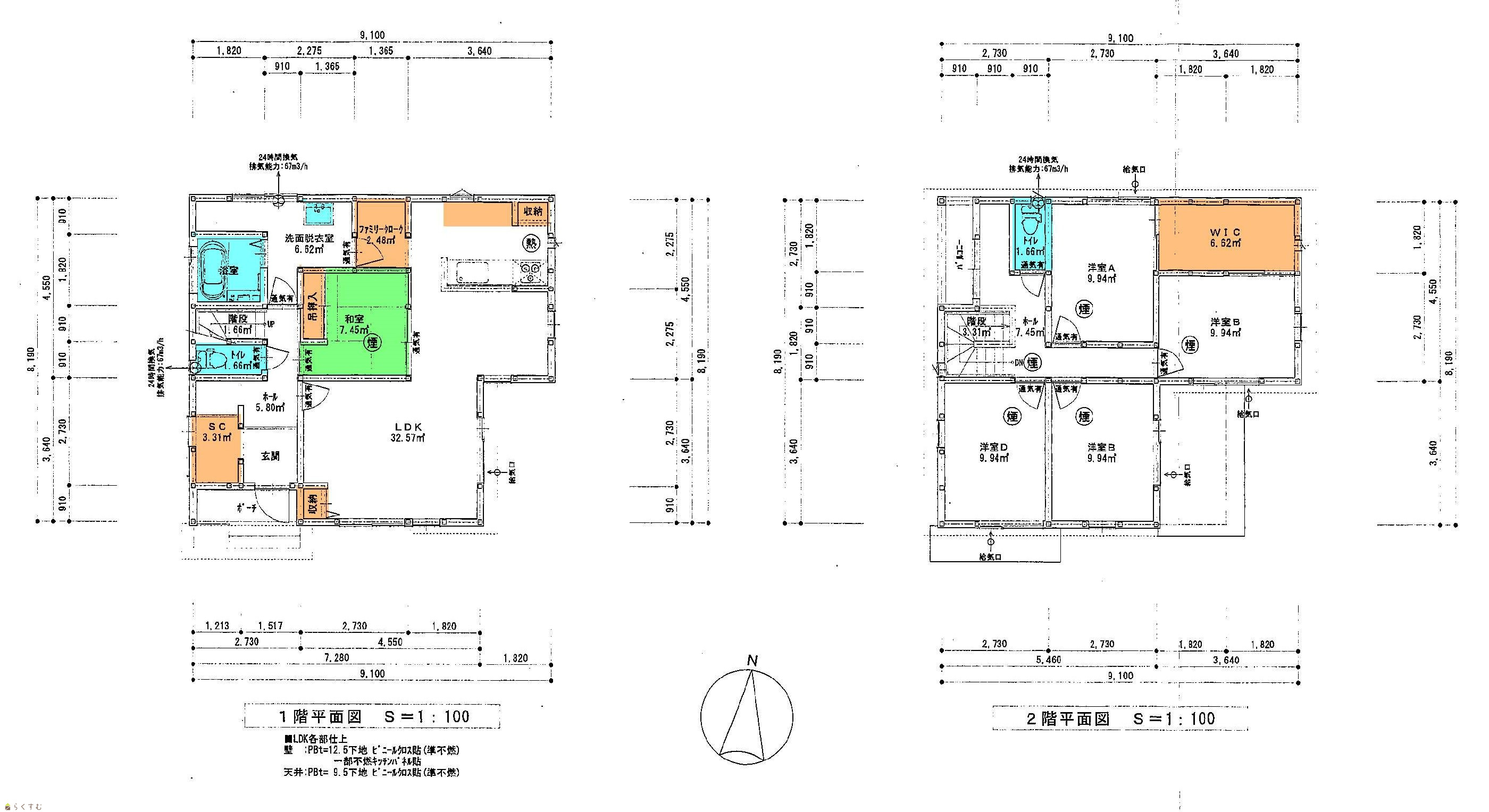
間取り図
詳細画像


物件概要

落ち着いた雰囲気の内外装。
物件コード 00125-200095
物件名 【中古住宅】新潟市北区松浜3丁目 カーポート付戸建
交通 駅:白新線 新崎駅から徒歩61分、バス:松浜中学前から徒歩2分
物件所在地 新潟県新潟市北区松浜3丁目
物件種別 中古一戸建て
構造 木造 階建 地上2階建
建ぺい率/容積率 60%/200%
建物面積 1階 65.41㎡/ 2階 58.79㎡/ 計 124.2㎡ /37.57坪
土地面積 286.4㎡ /86.63坪
築年月 2018年4月(築8年)
入居(引き渡し)時期 相談
用途地域 第1種中高層住居専用地域 地目 宅地  (現状:宅地)
都市計画 市街化区域 学校区 松浜小学校(278m)・松浜中学校(291m)
形状 間口 15.95m × 奥行 18.26m 道路 市道 北1-42号線 幅員4m
私道 - その他の制限 建築基準法第22条・道路斜線制限有・隣地斜線制限有
  • 【中古住宅】新潟市北区松浜3丁目 カーポート付戸建
    株式会社フォレス・タカダ
  • この物件を問い合わせる/無料
  • TEL: 0258-39-2919

物件詳細情報

所在階/階数 - 号室 -
販売価格 32,000,000円 方位
間取り 4LDK (和室:4.5畳) (洋室:12、6、6)
南向きの日当たり良好。小学校・中学校・バス停徒歩5分圏内の立地も魅力です。
専有面積 - バルコニー面積 -
その他面積 2.48㎡ /0.75坪  バルコニー 駐車場 -
管理費 - 修繕積立金 -
現況 居住中
仲介手数料 1,122,000円
利用制限 -
設備 高台に立地、日当り良好、閑静な住宅街、LDK15帖以上、築10年以内、駐車3台以上可能、南向き、TVインターホン、複層ガラス、食器洗浄乾燥機、3口コンロ、追いだき機能付き、温水洗浄便座、トイレ2か所以上、シャワー付き洗面台、24時間換気システム、ルーフバルコニー、ウォークインクローゼット、シューズインクローゼット
取引態様 一般
備考 -
取り扱い会社

株式会社フォレス・タカダ

新潟県長岡市摂田屋5-6-22

情報登録日 2024/11/05 次回更新予定日 2026/06/06
取引条件有効期限 2025/06/30
  • 【中古住宅】新潟市北区松浜3丁目 カーポート付戸建
    株式会社フォレス・タカダ
  • この物件を問い合わせる/無料
  • TEL: 0258-39-2919

この物件の地図・周辺情報・行政情報

この物件の周辺情報・行政情報を詳しく見る
【周辺情報】
物件の近くにあるコンビニや銀行・学校など、アイコン付のマップで詳しく表示できます!
【行政情報】
水道料や下水道料・ガス料金など、暮らしに関係のある情報を表示しています。

担当取扱い店舗情報

取扱い店舗画像
株式会社フォレス・タカダ
TEL: 0258-39-2919
所在地: 新潟県長岡市摂田屋5-6-22
交通: 信越線〔宮内駅〕徒歩13分
営業時間: 8:30~17:30/定休日:隔週土曜・日曜日・祝/会社カレンダーによる
免許番号: 新潟県知事(8)第3591号 この会社の情報を詳しく見る
所属団体名: 新潟県宅地建物取引業協会 長岡支部
取引態様: 一般
ホームページ: http://www.takada-arc.com