物件掲載企業数:301|賃貸物件:3,261件|売買物件:3,251件|今週の登録物件:296
閲覧中のブラウザ(インターネットエクスプローラー)は非推奨ブラウザです。
物件が正しく表示されなかったり、正しく検索されない場合があります。最新のブラウザ(Google Chrome・Edgeなど)にてご利用お願いいたします。
  

新潟県長岡市青葉台4丁目14番5 中古一戸建て 1LDK 15,000,000円の物件情報

平屋の中古戸建です。★現在賃貸(入居)中。

物件名/所在地 詳細 価格
青葉台4平屋建(中古)
新潟県長岡市青葉台4丁目14番5
  • 土地面積
    :309.73㎡ /93.69坪
  • 建物面積
    :64.02㎡ /19.36坪
  • 間取り
    :1LDK
  • 築年月
    :2000年4月
15,000,000
  • 青葉台4平屋建(中古)
    株式会社フォレス・タカダ
  • この物件を問い合わせる/無料
  • TEL: 0258-39-2919

物件画像

外観 間取り
物件画像
※画像クリックで拡大表示
外観
物件画像
※画像クリックで拡大表示
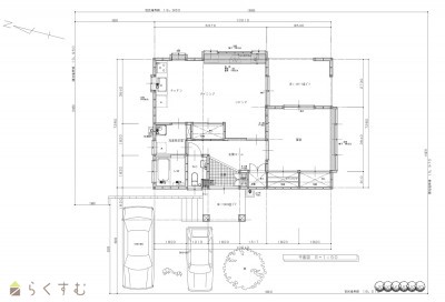
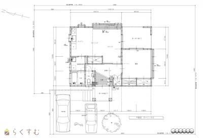
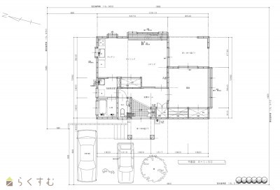
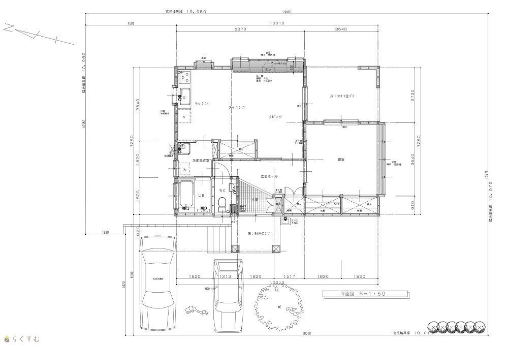
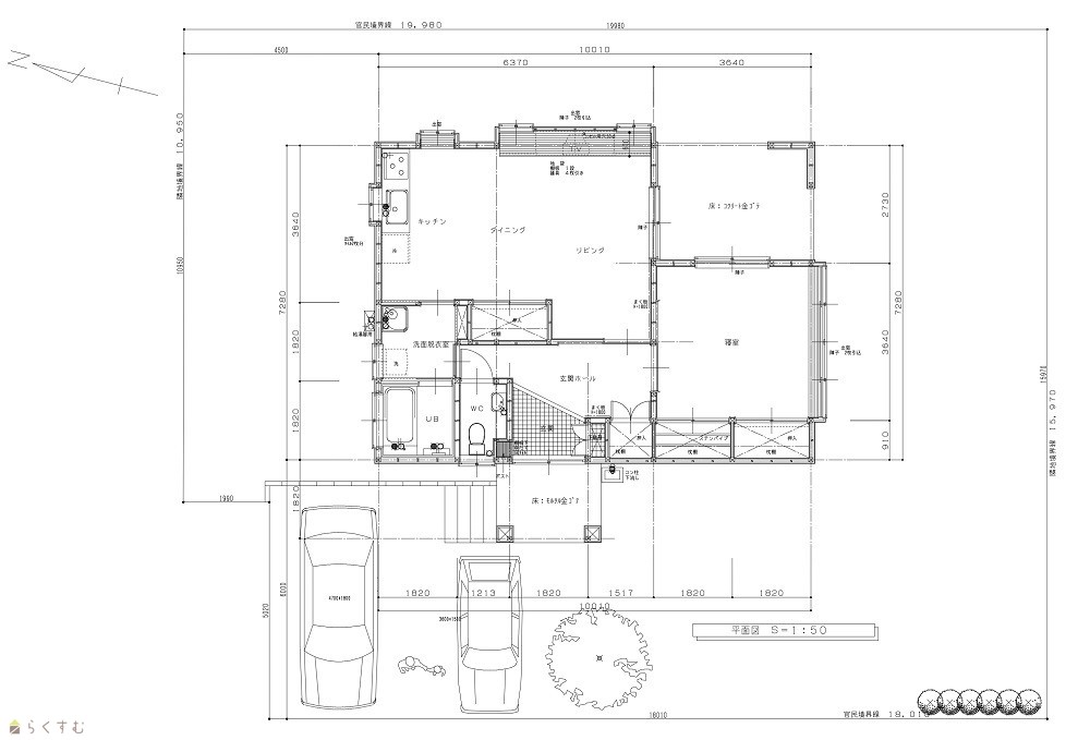
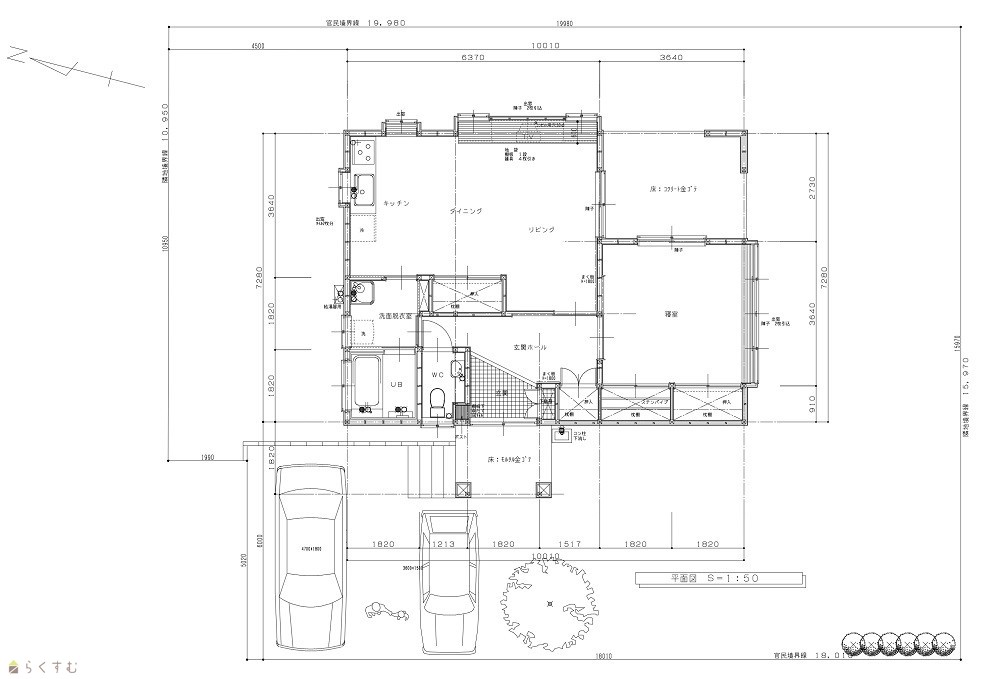
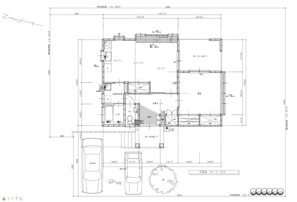
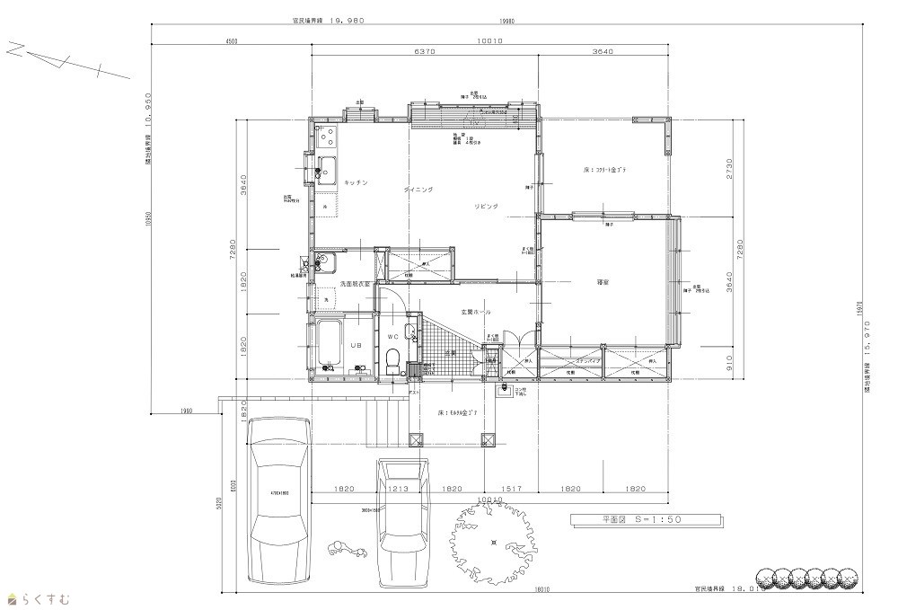
平面図
詳細画像


物件概要

平屋の中古戸建です。★現在賃貸(入居)中。
物件コード 00125-200060
物件名 青葉台4平屋建(中古)
交通 バス:青葉台2丁目から徒歩2分
物件所在地 新潟県長岡市青葉台4丁目14番5
物件種別 中古一戸建て
構造 木造 階建 地上1階建
建ぺい率/容積率 60%/200%
建物面積 1階 64.02㎡/ 計 64.02㎡ /19.36坪
土地面積 309.73㎡ /93.69坪
築年月 2000年4月(築26年)
入居(引き渡し)時期 相談
用途地域 第1種住居地域 地目 宅地  (現状:建物あり)
都市計画 市街化区域 学校区 青葉台小学校(168m)・青葉台中学校(706m)
形状 間口 18m 道路 長岡市道/幅員8.0m/消雪あり
私道 - その他の制限 青葉台地区計画
  • 青葉台4平屋建(中古)
    株式会社フォレス・タカダ
  • この物件を問い合わせる/無料
  • TEL: 0258-39-2919

物件詳細情報

所在階/階数 - 号室 -
販売価格 15,000,000円 方位 指定なし
間取り 1LDK (洋室:8.0)
LDK14.5
専有面積 - バルコニー面積 -
その他面積 9㎡ /2.72坪  テラス 駐車場 -
管理費 - 修繕積立金 -
現況 居住中
仲介手数料 561,000円
利用制限 -
設備 高台に立地、日当り良好、閑静な住宅街、新築時図面あり、全室フローリング、駐車2台可能、追いだき機能付き、温水洗浄便座、エアコンあり、ウッドデッキ・テラス、都市ガス、上水道、下水道、別荘、田舎暮らし
取引態様 一般
備考 現在「賃貸物件」賃貸(入居)中のため内覧はできません。町内会費・消雪組合年間費(¥20,000/年)の負担あり。
取り扱い会社

株式会社フォレス・タカダ

新潟県長岡市摂田屋5-6-22

情報登録日 2024/02/22 次回更新予定日 2026/06/05
取引条件有効期限 2024/12/31
  • 青葉台4平屋建(中古)
    株式会社フォレス・タカダ
  • この物件を問い合わせる/無料
  • TEL: 0258-39-2919

この物件の地図・周辺情報・行政情報

この物件の周辺情報・行政情報を詳しく見る
【周辺情報】
物件の近くにあるコンビニや銀行・学校など、アイコン付のマップで詳しく表示できます!
【行政情報】
水道料や下水道料・ガス料金など、暮らしに関係のある情報を表示しています。

担当取扱い店舗情報

取扱い店舗画像
株式会社フォレス・タカダ
TEL: 0258-39-2919
所在地: 新潟県長岡市摂田屋5-6-22
交通: 信越線〔宮内駅〕徒歩13分
営業時間: 8:30~17:30/定休日:隔週土曜・日曜日・祝/会社カレンダーによる
免許番号: 新潟県知事(8)第3591号 この会社の情報を詳しく見る
所属団体名: 新潟県宅地建物取引業協会 長岡支部
取引態様: 一般
ホームページ: http://www.takada-arc.com