物件掲載企業数:301|賃貸物件:3,261件|売買物件:3,251件|今週の登録物件:296
閲覧中のブラウザ(インターネットエクスプローラー)は非推奨ブラウザです。
物件が正しく表示されなかったり、正しく検索されない場合があります。最新のブラウザ(Google Chrome・Edgeなど)にてご利用お願いいたします。
  

新潟県柏崎市関町2148番5号 売土地・分譲地 7,150,000円の物件情報

枇杷島小学校至近の全2区画の分譲地です。自社物件につき仲介手数料がかかりません!

物件名/所在地 詳細 価格
柏崎市関町 55坪
新潟県柏崎市関町2148番5号
  • 土地面積
    :181.95㎡ /55.03坪
  • 坪単価
    :129,929円/坪
  • 建ぺい率
    :60%
  • 容積率
    :200%
7,150,000
  • 柏崎市関町 55坪
    植木不動産株式会社
  • この物件を問い合わせる/無料
  • TEL: 0257-24-5506

物件画像

外観 間取り
物件画像
※画像クリックで拡大表示
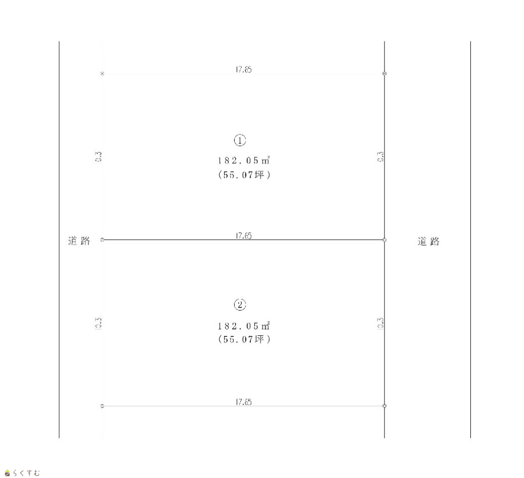
現在2区画分譲中です。
物件画像
※画像クリックで拡大表示
分譲図面
詳細画像


物件概要

物件コード 00082-200113
物件名 柏崎市関町 55坪
交通 駅:信越線 柏崎駅から徒歩10分、バス:宮場町から徒歩5分
物件所在地 新潟県柏崎市関町2148番5号
物件種別 売土地・分譲地
物件区分 売土地
構造 - 階建 -
建ぺい率/容積率 60%/200%
建物面積 -
土地面積 181.95㎡ /55.03坪
築年月 -
入居(引き渡し)時期 随時入居(引き渡し)可
用途地域 第1種住居地域 地目 宅地  (現状:宅地)
都市計画 非線引き都市計画区域 学校区 枇杷島小学校(167m)・第二中学校(2,192m)
形状 間口 10.31m 道路 東側:柏崎市道 幅員約5.6m・西側:市道(位置指定道路)
私道 - その他の制限 -
  • 柏崎市関町 55坪
    植木不動産株式会社
  • この物件を問い合わせる/無料
  • TEL: 0257-24-5506

物件詳細情報

所在階/階数 - 号室 -
販売価格 7,150,000円 方位 -
間取り -
専有面積 - バルコニー面積 -
その他面積 - 駐車場 -
管理費 - 修繕積立金 -
現況 -
仲介手数料 なし
利用制限 -
設備 整形地、学校近く、最寄り駅近く、閑静な住宅街、建築条件なし、所有権、側溝、都市ガス(前面道路)、上水道(前面道路)、下水道(前面道路)、電気、上水道(宅地内)、下水道(宅地内)、住宅向け
取引態様 売主
備考 -
取り扱い会社

植木不動産株式会社

新潟県柏崎市新橋3番9号

情報登録日 2023/09/20 次回更新予定日 2026/06/05
取引条件有効期限 2024/09/20
  • 柏崎市関町 55坪
    植木不動産株式会社
  • この物件を問い合わせる/無料
  • TEL: 0257-24-5506

この物件の地図・周辺情報・行政情報

この物件の周辺情報・行政情報を詳しく見る
【周辺情報】
物件の近くにあるコンビニや銀行・学校など、アイコン付のマップで詳しく表示できます!
【行政情報】
水道料や下水道料・ガス料金など、暮らしに関係のある情報を表示しています。
セブン-イレブン 柏崎穂波町店(コンビニ)まで600m
セブン-イレブン 柏崎若葉町店(コンビニ)まで800m
クスリのアオキ 穂波店(ドラッグストア)まで670m

※カメラのアイコンがある場合は、マウスをポイントするとその施設の画像がご覧いただけます。


担当取扱い店舗情報

取扱い店舗画像
植木不動産株式会社
TEL: 0257-24-5506
所在地: 新潟県柏崎市新橋3番9号
交通: 柏崎駅 徒歩約9分(700m)
営業時間: 8:30~17:30/定休日:土日祝日(3月は土曜も営業中!)
免許番号: 国土交通大臣(12)第2870号 この会社の情報を詳しく見る
所属団体名: 新潟県宅地建物取引協会 柏崎支部
取引態様: 売主
ホームページ: https://www.uekifudousan.co.jp/