物件掲載企業数:301|賃貸物件:3,261件|売買物件:3,251件|今週の登録物件:245
閲覧中のブラウザ(インターネットエクスプローラー)は非推奨ブラウザです。
物件が正しく表示されなかったり、正しく検索されない場合があります。最新のブラウザ(Google Chrome・Edgeなど)にてご利用お願いいたします。
  

新潟県見附市元町二丁目1265-6 中古一戸建て 1R 5,000,000円の物件情報

緑豊かで静かな生活環境、広い室内空間の建物をお探しの方へ最適な物件です。ご希望で隣地(70坪)の購入も可能、園芸や家庭菜園も楽しめます。

物件名/所在地 詳細 価格
見附市元町二丁目690番4他3筆土地建物(一般)
新潟県見附市元町二丁目1265-6
  • 土地面積
    :329.18㎡ /99.57坪
  • 建物面積
    :270.06㎡ /81.69坪
  • 間取り
    :1R
  • 築年月
    :1992年12月
5,000,000
  • 見附市元町二丁目690番4他3筆土地建物(一般)
    有限会社 まえざわ
  • この物件を問い合わせる/無料
  • TEL: 0257-23-7385

物件画像

外観 間取り
物件画像
※画像クリックで拡大表示
建物全面道路より
物件画像
※画像クリックで拡大表示
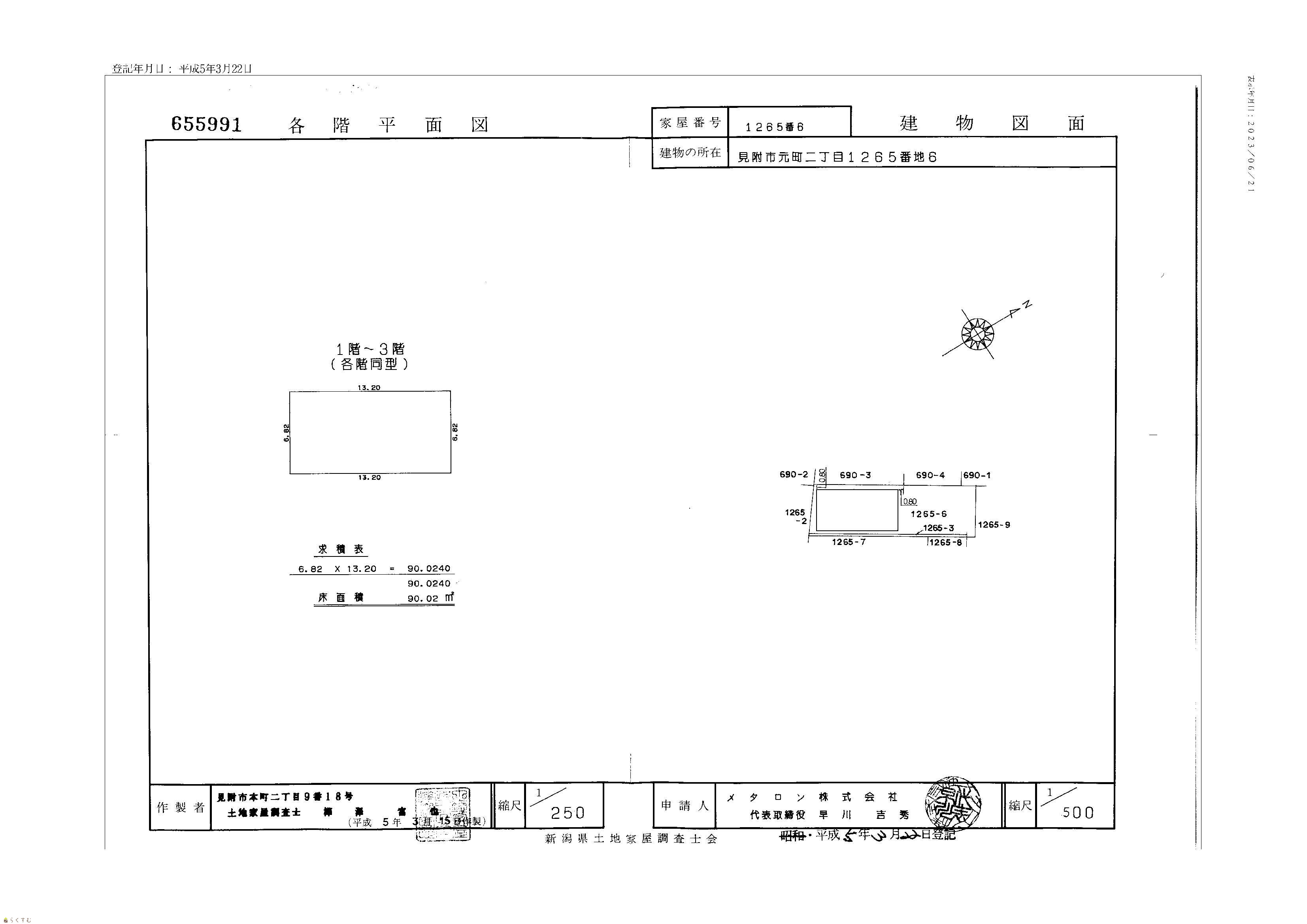
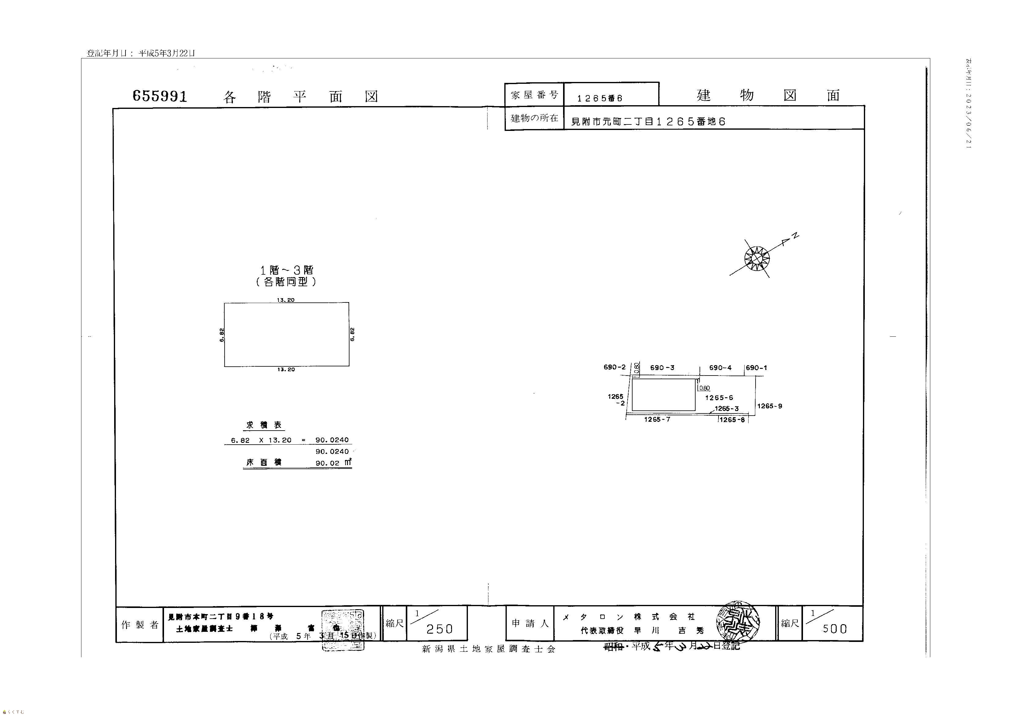
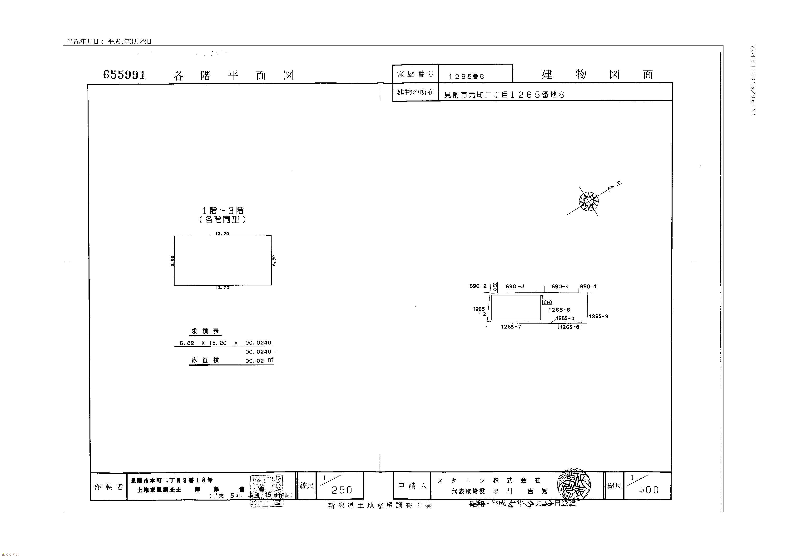
建物図面
詳細画像


物件概要

上下水道/電気/プロパンガス(全面道路に都市ガス有り)/2Fに男女別トイレ/荷物専用エレベ-タ-設備(1~2階)/広い駐車場
物件コード 00081-200018
物件名 見附市元町二丁目690番4他3筆土地建物(一般)
交通 駅:信越線 見附駅から徒歩30分、バス:ふぁみりあ前から徒歩8分
物件所在地 新潟県見附市元町二丁目1265-6
物件種別 中古一戸建て
構造 鉄骨 階建 地上3階建
建ぺい率/容積率 60%/200%
建物面積 1階 90.02㎡/ 2階 90.02㎡/ 3階 90.02㎡/ 計 270.06㎡ /81.69坪
土地面積 329.18㎡ /99.57坪
築年月 1992年12月(築33年)
入居(引き渡し)時期 相談
用途地域 準工業地域 地目 宅地  (現状:宅地)
都市計画 市街化区域 学校区 見附小学校(556m)・見附中学校(356m)
形状 間口 8.5m × 奥行 26m 道路 -
私道 - その他の制限 建築基準法第22条指定地域
  • 見附市元町二丁目690番4他3筆土地建物(一般)
    有限会社 まえざわ
  • この物件を問い合わせる/無料
  • TEL: 0257-23-7385

物件詳細情報

所在階/階数 - 号室 -
販売価格 5,000,000円 方位 北西
間取り 1R
専有面積 - バルコニー面積 -
その他面積 - 駐車場 -
管理費 - 修繕積立金 -
現況 空家
仲介手数料 231,000円
利用制限 -
設備 -
取引態様 一般
備考 広いスペ-スは趣味のガレ-ジライフ/トレ-ニングル-ム/テレワ-ク/工房/作業所/等、幅広い用途に適しています。室内はとてもきれいな状態です。又、建物は基礎共に頑丈な造りです。
取り扱い会社

有限会社 まえざわ

新潟県柏崎市上田尻1697番地

情報登録日 2025/04/29 次回更新予定日 2026/06/06
取引条件有効期限 2023/08/31
  • 見附市元町二丁目690番4他3筆土地建物(一般)
    有限会社 まえざわ
  • この物件を問い合わせる/無料
  • TEL: 0257-23-7385

この物件の地図・周辺情報・行政情報

この物件の周辺情報・行政情報を詳しく見る
【周辺情報】
物件の近くにあるコンビニや銀行・学校など、アイコン付のマップで詳しく表示できます!
【行政情報】
水道料や下水道料・ガス料金など、暮らしに関係のある情報を表示しています。

担当取扱い店舗情報

取扱い店舗画像
有限会社 まえざわ
TEL: 0257-23-7385
所在地: 新潟県柏崎市上田尻1697番地
交通: 北陸自動車道柏崎インタ-から500メ-トル
営業時間: 9:00~21:00/定休日:水曜日
免許番号: 新潟県知事(6)4410号 この会社の情報を詳しく見る
所属団体名: (有)まえざわ
取引態様: 一般
ホームページ: http://ymaezawa.sakura.ne.jp