物件掲載企業数:297|賃貸物件:3,610件|売買物件:3,333件|今週の登録物件:271
閲覧中のブラウザ(インターネットエクスプローラー)は非推奨ブラウザです。
物件が正しく表示されなかったり、正しく検索されない場合があります。最新のブラウザ(Google Chrome・Edgeなど)にてご利用お願いいたします。
  

新潟県妙高市大字原通9番地 中古一戸建て 4LDK 17,600,000円の物件情報

ミサワホームの高床式大空間住宅74坪! 12月中旬リフォーム完了予定 車庫3台!広い庭で家庭菜園やお家でアウトドアライフを満喫!2・3Fからは妙高山の絶景ビューも楽しめます!ナルス・マツモトキヨシまで車で6分!

物件名/所在地 詳細 価格
【ミサワホームのスムストック】妙高市原通
新潟県妙高市大字原通9番地
  • 土地面積
    :426.32㎡ /128.96坪
  • 建物面積
    :245.12㎡ /74.14坪
  • 間取り
    :4LDK
  • 築年月
    :1997年9月
17,600,000
  • 【ミサワホームのスムストック】妙高市原通
    ミサワホーム北越 株式会社
  • この物件を問い合わせる/無料
  • TEL: 0120-486-330

物件画像

外観 間取り
物件画像
※画像クリックで拡大表示
外観
物件画像
※画像クリックで拡大表示
間取り
詳細画像


物件概要

物件コード 00080-200354
物件名 【ミサワホームのスムストック】妙高市原通
交通 駅:妙高はねうまライン 関山駅から徒歩33分、バス:原通郵便局から徒歩2分
物件所在地 新潟県妙高市大字原通9番地
物件種別 中古一戸建て
構造 木造鉄筋コン 階建 -
建ぺい率/容積率 -
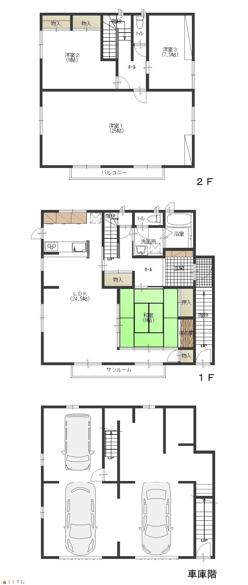
建物面積 1階 79.5㎡/ 2階 82.81㎡/ 3階 82.81㎡/ 計 245.12㎡ /74.14坪
土地面積 426.32㎡ /128.96坪
築年月 1997年9月(築28年)
入居(引き渡し)時期 相談
用途地域 用途の指定のない地域 地目 宅地  (現状:宅地)
都市計画 都市計画区域外 学校区 妙高小学校(3,200m)・妙高中学校(2,700m)
形状 間口 25m × 奥行 17m 道路 南西側6.5m市道、北西側7.3m市道
私道 - その他の制限 -
  • 【ミサワホームのスムストック】妙高市原通
    ミサワホーム北越 株式会社
  • この物件を問い合わせる/無料
  • TEL: 0120-486-330

物件詳細情報

所在階/階数 - 号室 -
販売価格 17,600,000円 方位 -
間取り 4LDK (和室:8畳) (洋室:25、9、7.5)
LDK24.5
専有面積 - バルコニー面積 -
その他面積 - 駐車場 -
管理費 - 修繕積立金 -
現況 空家
仲介手数料 646,800円
利用制限 -
設備 角地、日当り良好、閑静な住宅街、瑕疵担保保険対象、新築時図面あり、LDK15帖以上、駐車3台以上可能、南向き、TVインターホン、複層ガラス、システムキッチン、追いだき機能付き、バス1坪以上、温水洗浄便座、トイレ2か所以上、シャワー付き洗面台、エアコンあり、LPG、上水道、下水道、全居室収納あり、内装リフォーム済み、外装リフォーム済み、別荘、田舎暮らし
取引態様 売主
備考 ・物件の購入は仲介業者媒介による契約となります。
・ご入居後はミサワホームのメンテナンスサービスをご活用できます。
取り扱い会社

ミサワホーム北越 株式会社

新潟県長岡市古正寺2丁目71番地

情報登録日 2025/11/16 次回更新予定日 2026/01/13
取引条件有効期限 2026/03/31
  • 【ミサワホームのスムストック】妙高市原通
    ミサワホーム北越 株式会社
  • この物件を問い合わせる/無料
  • TEL: 0120-486-330

この物件の地図・周辺情報・行政情報

この物件の周辺情報・行政情報を詳しく見る
【周辺情報】
物件の近くにあるコンビニや銀行・学校など、アイコン付のマップで詳しく表示できます!
【行政情報】
水道料や下水道料・ガス料金など、暮らしに関係のある情報を表示しています。
原通郵便局(郵便局)まで110m

※カメラのアイコンがある場合は、マウスをポイントするとその施設の画像がご覧いただけます。


担当取扱い店舗情報

取扱い店舗画像
ミサワホーム北越 株式会社
TEL: 0120-486-330
所在地: 新潟県長岡市古正寺2丁目71番地
交通: 長岡駅
営業時間: 9:00~18:00/定休日:火・水
免許番号: 国土交通大臣(3)8557号 この会社の情報を詳しく見る
所属団体名: 新潟県宅地建物取引協会 長岡支部
取引態様: 売主
ホームページ: http://hokuetsu.misawa.co.jp