物件掲載企業数:301|賃貸物件:3,261件|売買物件:3,251件|今週の登録物件:296
閲覧中のブラウザ(インターネットエクスプローラー)は非推奨ブラウザです。
物件が正しく表示されなかったり、正しく検索されない場合があります。最新のブラウザ(Google Chrome・Edgeなど)にてご利用お願いいたします。
  

新潟県長岡市新開町4119-1 他2筆 中古一戸建て 7DK 6,000,000円の物件情報

物件名/所在地 詳細 価格
新開町中古住宅
新潟県長岡市新開町4119-1 他2筆
  • 土地面積
    :589.76㎡ /178.4坪
  • 建物面積
    :214.47㎡ /64.87坪
  • 間取り
    :7DK
  • 築年月
    :1980年12月
6,000,000
  • 新開町中古住宅
    有限会社 重山不動産
  • この物件を問い合わせる/無料
  • TEL: 0258-27-1191

物件画像

外観 間取り
物件画像
※画像クリックで拡大表示
物件画像
※画像クリックで拡大表示
詳細画像


物件概要

物件コード 00077-200015
物件名 新開町中古住宅
交通 バス:新開から徒歩1分
物件所在地 新潟県長岡市新開町4119-1 他2筆
物件種別 中古一戸建て
構造 木造 階建 地上2階建
建ぺい率/容積率 70%/200%
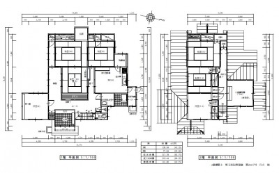
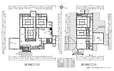
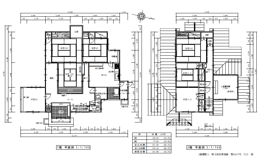
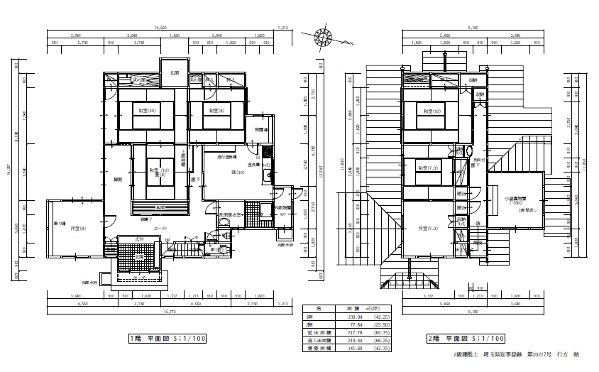
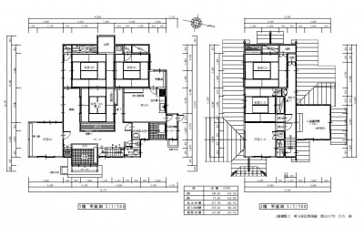
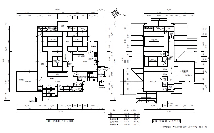
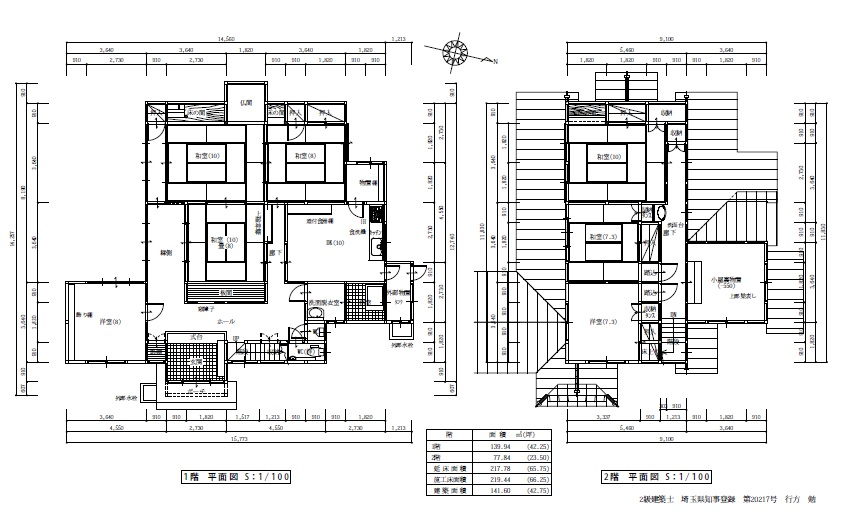
建物面積 1階 136.63㎡/ 2階 77.84㎡/ 計 214.47㎡ /64.87坪
土地面積 589.76㎡ /178.4坪
築年月 1980年12月(築45年)
入居(引き渡し)時期 随時入居(引き渡し)可
用途地域 用途の指定のない地域 地目 宅地  (現状:宅地)
都市計画 - 学校区 下川西小学校・江陽中学校
形状 - 道路 県道槇下・南中線
私道 - その他の制限 建基法22条の指定
  • 新開町中古住宅
    有限会社 重山不動産
  • この物件を問い合わせる/無料
  • TEL: 0258-27-1191

物件詳細情報

所在階/階数 - 号室 -
販売価格 6,000,000円 方位 北東
間取り 7DK (和室:10畳、8畳、8畳、10畳、7.3畳、7.3畳) (洋室:8)
DK10
2階に物置有り
専有面積 - バルコニー面積 -
その他面積 - 駐車場 -
管理費 - 修繕積立金 -
現況 空家
仲介手数料 264,000円
利用制限 -
設備 角地、日当り良好、駐車2台可能、LPG、上水道、下水道、即引き渡し可能
取引態様 専任
備考 -
取り扱い会社

有限会社 重山不動産

新潟県長岡市宮関4丁目8番7号

情報登録日 2017/08/30 次回更新予定日 2026/06/05
取引条件有効期限 -
  • 新開町中古住宅
    有限会社 重山不動産
  • この物件を問い合わせる/無料
  • TEL: 0258-27-1191

この物件の地図・周辺情報・行政情報

この物件の周辺情報・行政情報を詳しく見る
【周辺情報】
物件の近くにあるコンビニや銀行・学校など、アイコン付のマップで詳しく表示できます!
【行政情報】
水道料や下水道料・ガス料金など、暮らしに関係のある情報を表示しています。

担当取扱い店舗情報

取扱い店舗画像
有限会社 重山不動産
TEL: 0258-27-1191
所在地: 新潟県長岡市宮関4丁目8番7号
交通:
営業時間: 9:00~19:00/定休日:日曜・祭日
免許番号: 新潟県知事(11)第1931号 この会社の情報を詳しく見る
所属団体名: 新潟県宅地建物取引協会 長岡支部
取引態様: 専任
ホームページ: http://www.sigeyama.com/