物件掲載企業数:297|賃貸物件:3,612件|売買物件:3,333件|今週の登録物件:275
閲覧中のブラウザ(インターネットエクスプローラー)は非推奨ブラウザです。
物件が正しく表示されなかったり、正しく検索されない場合があります。最新のブラウザ(Google Chrome・Edgeなど)にてご利用お願いいたします。
  

新潟県長岡市台町2-5-17 中古マンション 3LDK 9,000,000円の物件情報

長岡駅東口すぐそば、駅ビルや商業ビルが近くてお買い物に便利な立地です。角住戸、エアコン1台有。

物件名/所在地 詳細 価格
ライオンズマンション長岡駅東
904号室
新潟県長岡市台町2-5-17
  • 専有面積
    :54.8㎡ /16.57坪
  • 間取り
    :3LDK
  • 築年月
    :1991年9月
9,000,000
  • ライオンズマンション長岡駅東
    有限会社 グリーン土地
  • この物件を問い合わせる/無料
  • TEL: 0258-32-1222

物件画像

外観 間取り
物件画像
※画像クリックで拡大表示
外観
物件画像
※画像クリックで拡大表示
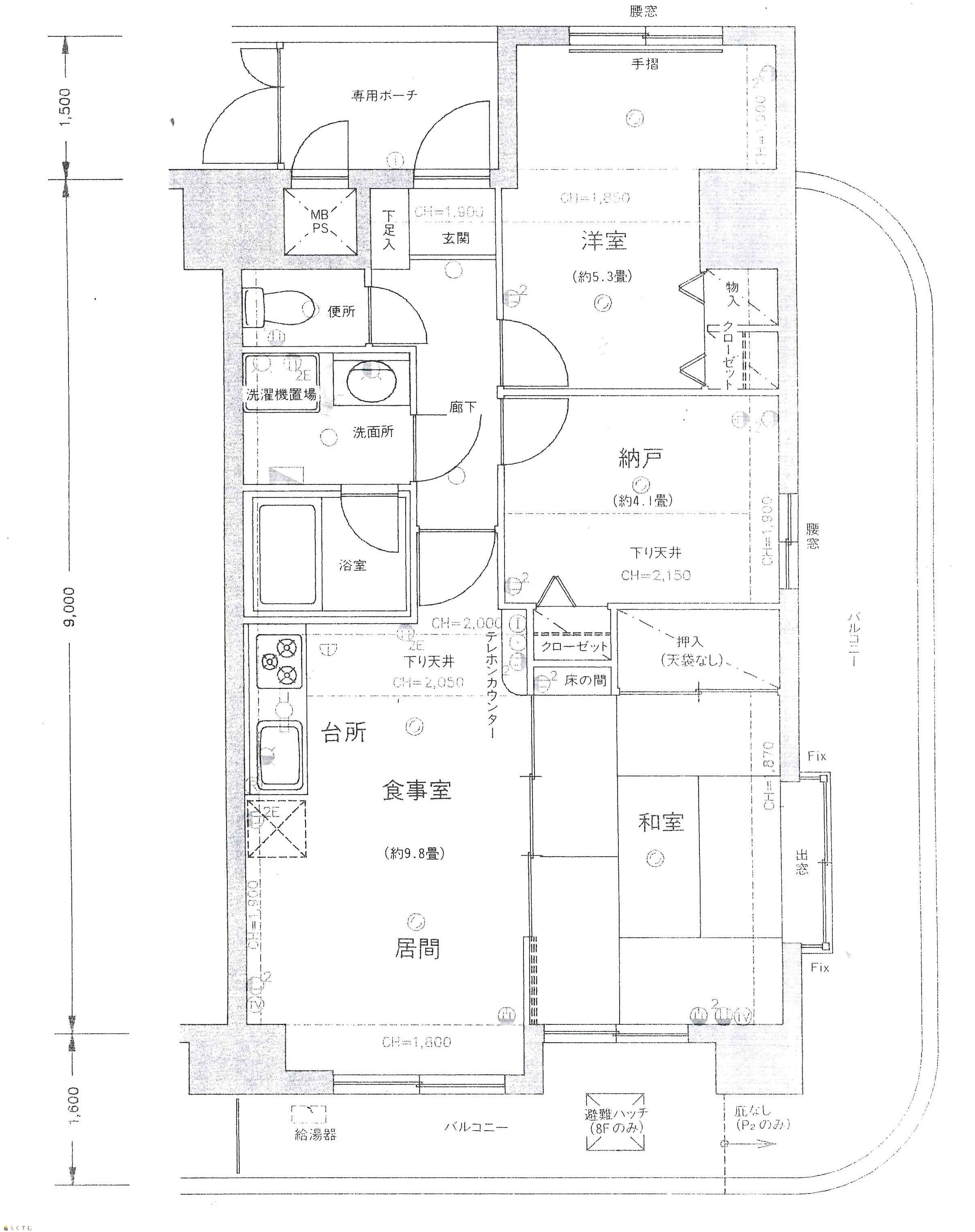
間取図
詳細画像
360度画像
リビング
※下のリンクをクリックすると、上の画像が切り替わります。

インターネットエクスプローラーでは360°画像は閲覧できません。それ以外のブラウザでご覧下さい。



物件概要

物件コード 00071-200143
物件名 ライオンズマンション長岡駅東
交通 駅:上越新幹線 長岡駅から徒歩8分
物件所在地 新潟県長岡市台町2-5-17
物件種別 中古マンション
構造 鉄骨鉄筋コン 階建 地上14階建
建ぺい率/容積率 -
建物面積 -
土地面積 -
築年月 1991年9月(築34年)
入居(引き渡し)時期 相談
用途地域 商業地域 地目 -
都市計画 - 学校区 阪之上小学校(240m)・南中学校(1,084m)
形状 - 道路 -
私道 - その他の制限 -
  • ライオンズマンション長岡駅東
    有限会社 グリーン土地
  • この物件を問い合わせる/無料
  • TEL: 0258-32-1222

物件詳細情報

所在階/階数 9階/14階 号室 904号室
販売価格 9,000,000円 方位 指定なし
間取り 3LDK (和室:6畳) (洋室:5.3、4.1)
LDK9.8
専有面積 54.8㎡ /16.57坪 バルコニー面積 14.99㎡ /4.53坪
その他面積 - 駐車場 -
管理費 月額17,470円 修繕積立金 月額13,690円
現況 空家
仲介手数料 363,000円
利用制限 -
設備 角部屋、スーパー近く、最寄駅近く、洗濯機置き場、エレベーター、駐輪場、管理人常駐(日中)、セキュリティー良し、TV付きインターホン、エントランスオートロック、3口コンロ、ガスコンロ設置済み、温水洗浄便座、エアコン、都市ガス、公営水道、下水道、バルコニー2面以上、全室収納あり、シューズBOX、BS端子
取引態様 専任
備考 -
取り扱い会社

有限会社 グリーン土地

新潟県長岡市本町3-1-9 アーバンヒルズ長岡1F

情報登録日 2025/07/14 次回更新予定日 2026/01/13
取引条件有効期限 2025/09/30
  • ライオンズマンション長岡駅東
    有限会社 グリーン土地
  • この物件を問い合わせる/無料
  • TEL: 0258-32-1222

この物件の地図・周辺情報・行政情報

この物件の周辺情報・行政情報を詳しく見る
【周辺情報】
物件の近くにあるコンビニや銀行・学校など、アイコン付のマップで詳しく表示できます!
【行政情報】
水道料や下水道料・ガス料金など、暮らしに関係のある情報を表示しています。
原信 今朝白店(スーパー)まで510m
ローソン 長岡今朝白一丁目店(コンビニ)まで330m

※カメラのアイコンがある場合は、マウスをポイントするとその施設の画像がご覧いただけます。


担当取扱い店舗情報

取扱い店舗画像
有限会社 グリーン土地
TEL: 0258-32-1222
所在地: 新潟県長岡市本町3-1-9 アーバンヒルズ長岡1F
交通: 長岡駅
営業時間: 9:00~17:00/定休日:日・祝・祭日
免許番号: 新潟県知事(10)3038号 この会社の情報を詳しく見る
所属団体名: 新潟県宅地建物取引協会 長岡支部
取引態様: 専任
ホームページ: https://www.greentoti.com