物件掲載企業数:299|賃貸物件:3,027件|売買物件:3,228件|今週の登録物件:313
閲覧中のブラウザ(インターネットエクスプローラー)は非推奨ブラウザです。
物件が正しく表示されなかったり、正しく検索されない場合があります。最新のブラウザ(Google Chrome・Edgeなど)にてご利用お願いいたします。
  

新潟県新潟市中央区美咲町1-31-20 中古一戸建て 5LDK 44,000,000円の物件情報

住宅街の角地、広々一戸建。物件に関するお問い合わせはお気軽にご連絡ください。

物件名/所在地 詳細 価格
新潟市中央区美咲町売家
新潟県新潟市中央区美咲町1-31-20
  • 土地面積
    :240.57㎡ /72.77坪
  • 建物面積
    :214.22㎡ /64.8坪
  • 間取り
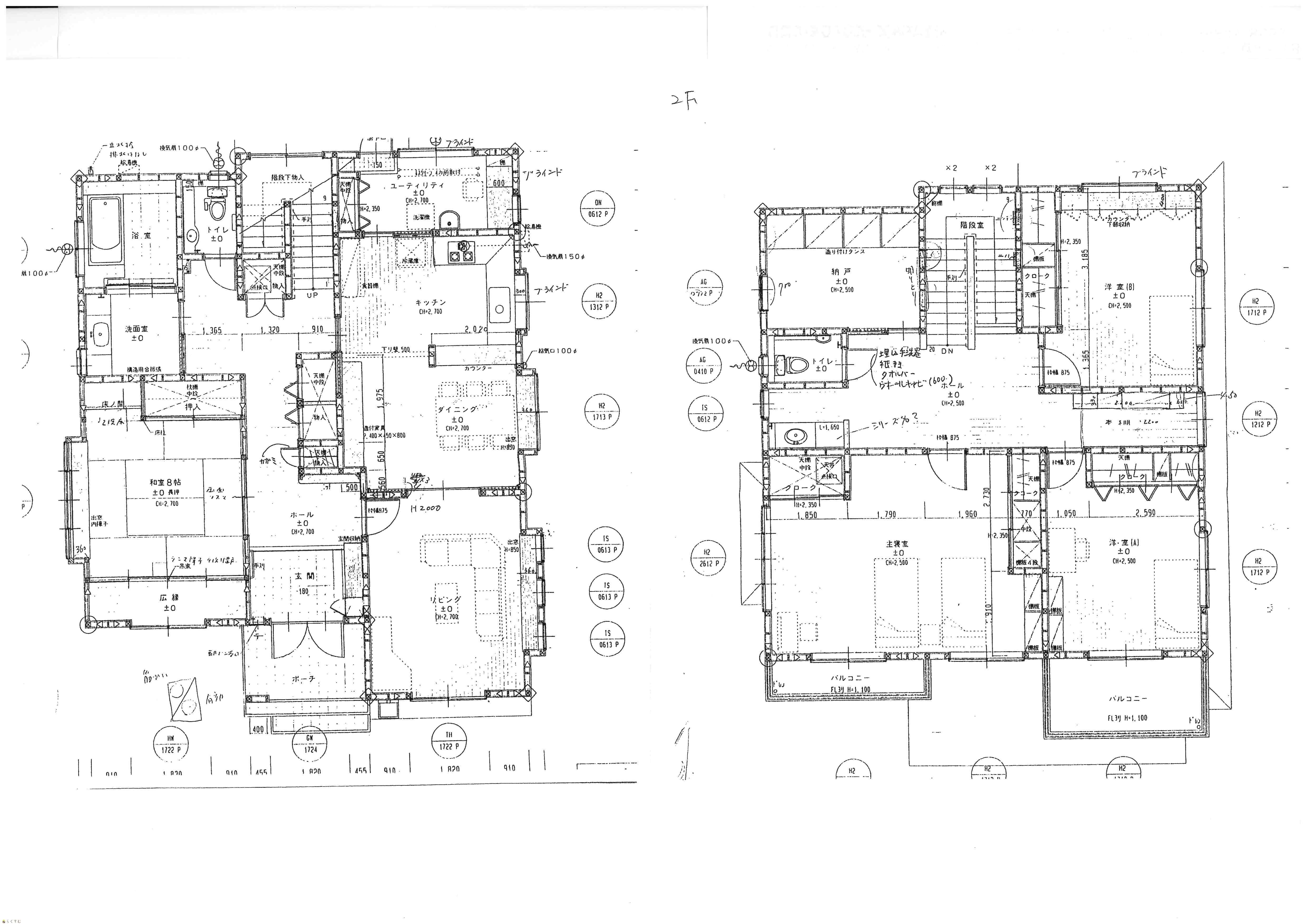
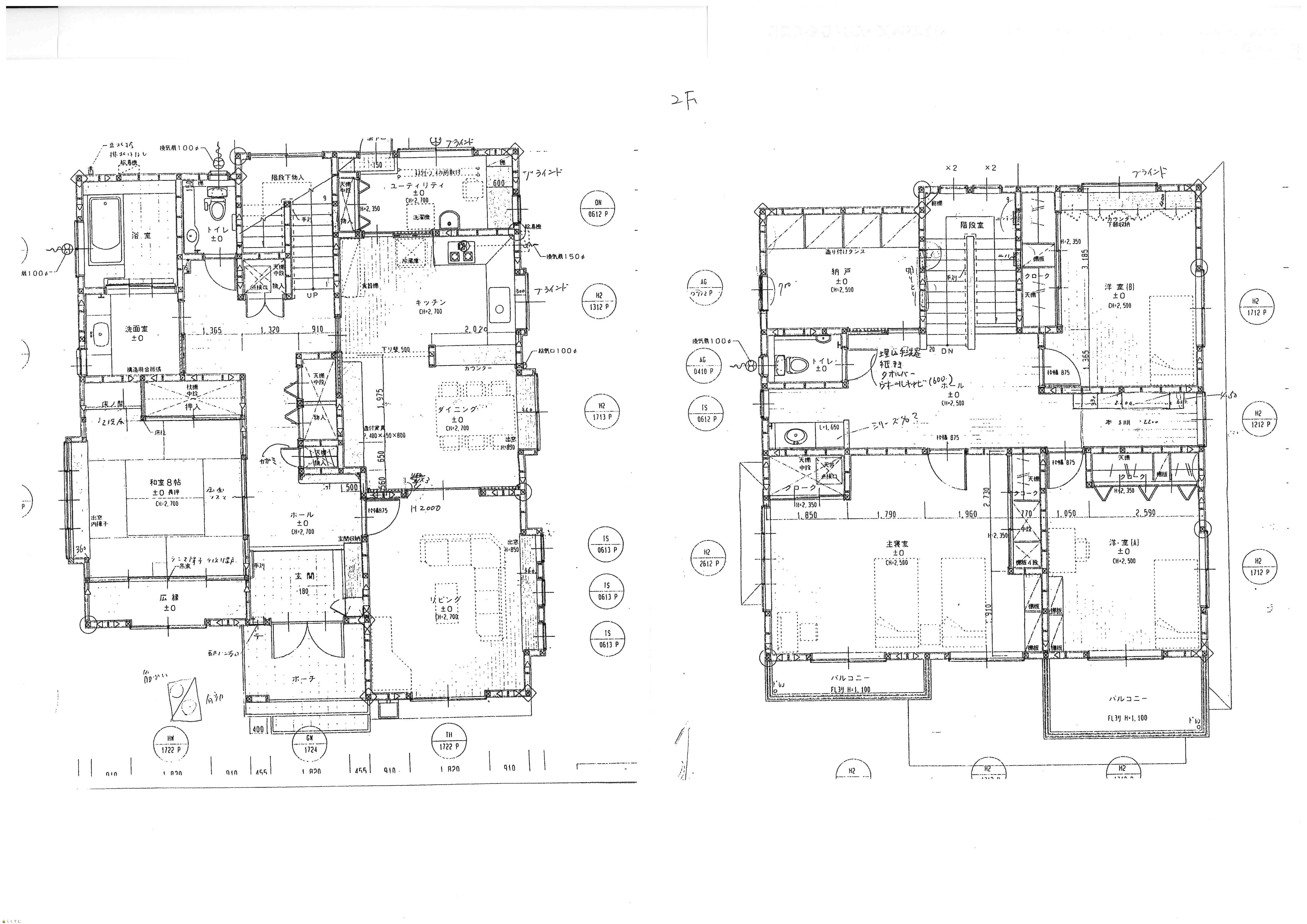
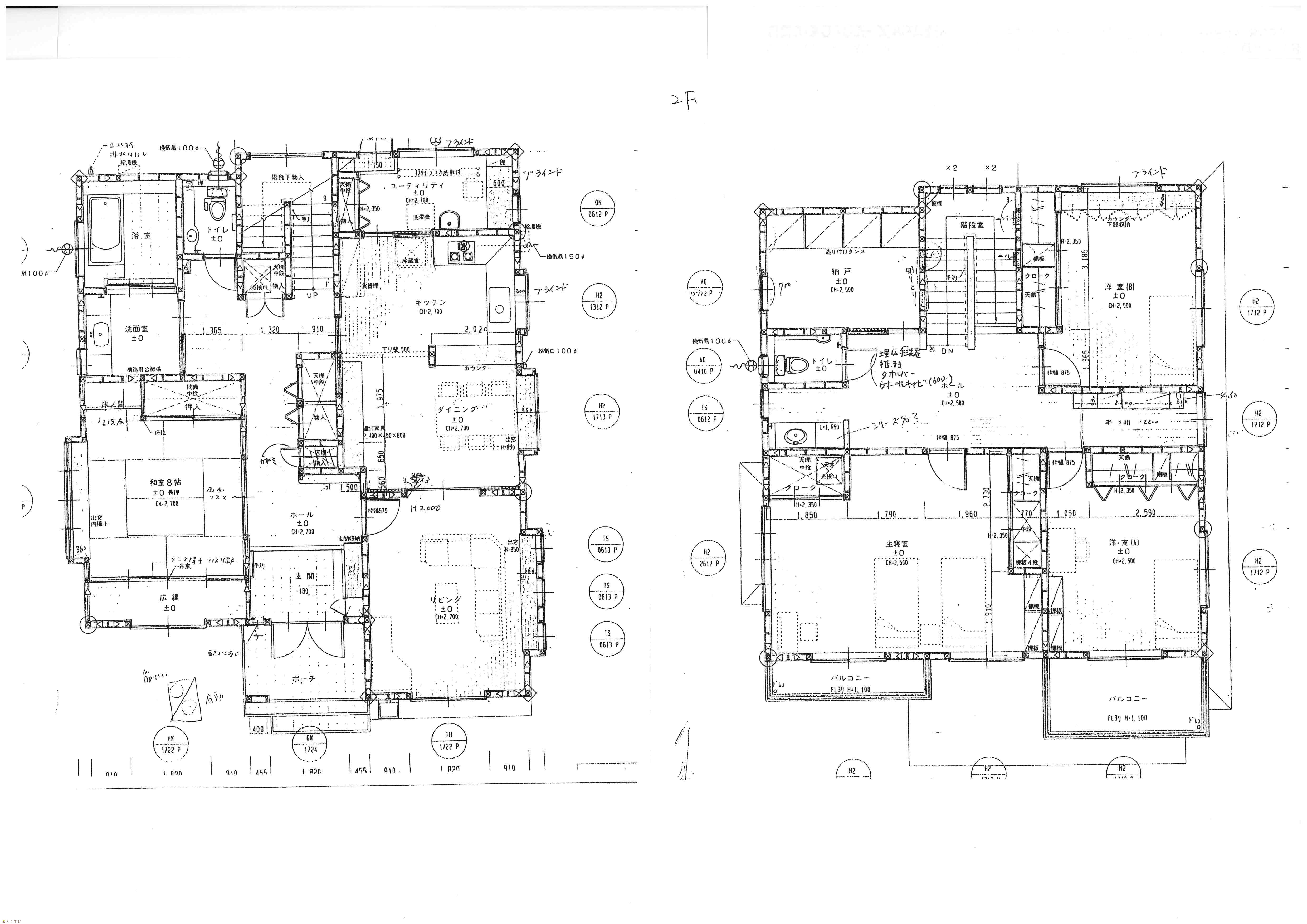
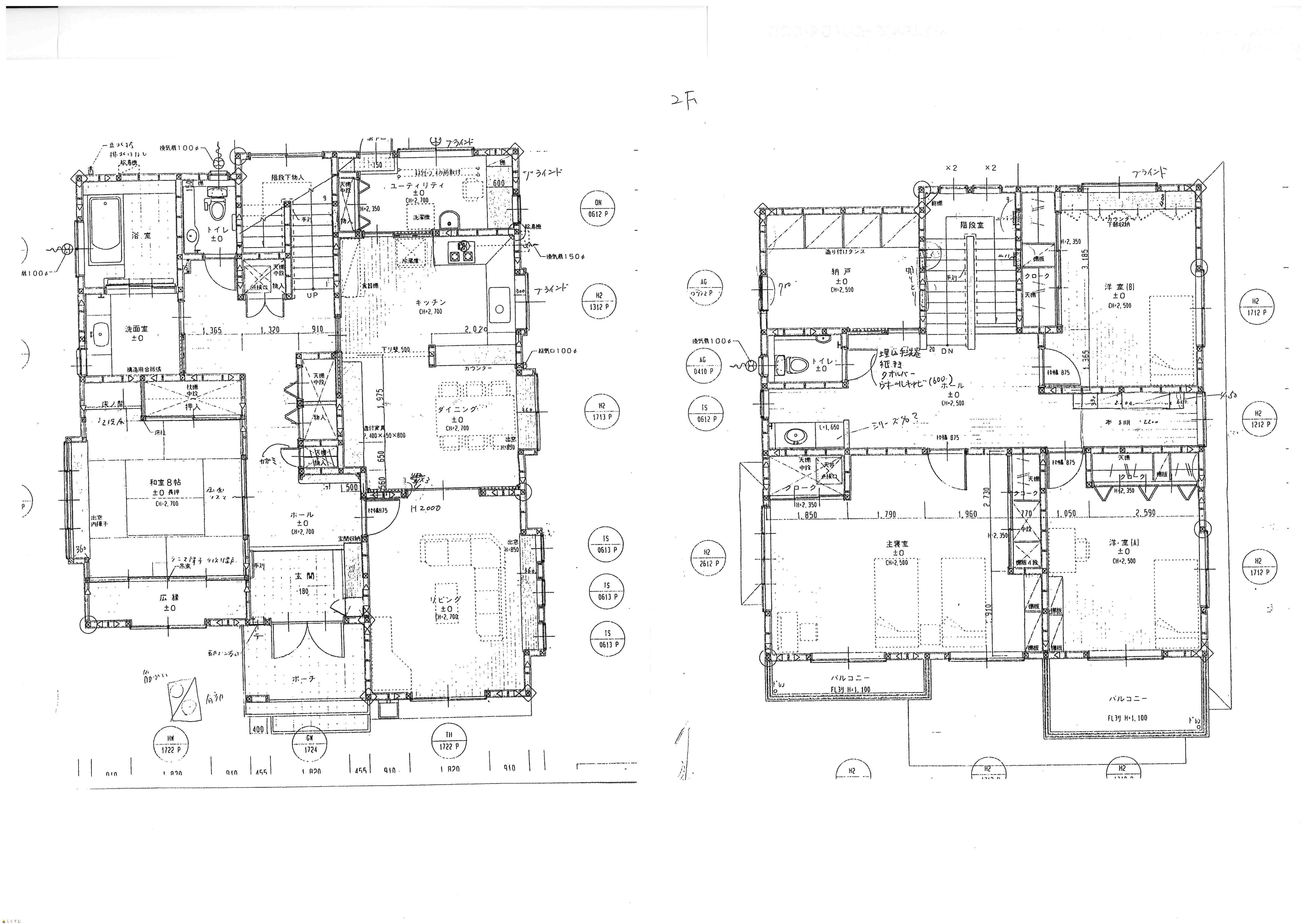
    :5LDK
  • 築年月
    :1999年12月
44,000,000
  • 新潟市中央区美咲町売家
    有限会社 グリーン土地
  • この物件を問い合わせる/無料
  • TEL: 0258-32-1222

物件画像

外観 間取り
物件画像
※画像クリックで拡大表示
外観
物件画像
※画像クリックで拡大表示
間取図
詳細画像


物件概要

物件コード 00071-200141
物件名 新潟市中央区美咲町売家
交通 駅:越後線 関屋駅から徒歩32分、バス:網川原から徒歩7分
物件所在地 新潟県新潟市中央区美咲町1-31-20
物件種別 中古一戸建て
構造 木造 階建 地上2階建
建ぺい率/容積率 60%/200%
建物面積 1階 110.26㎡/ 2階 103.96㎡/ 計 214.22㎡ /64.8坪
土地面積 240.57㎡ /72.77坪
築年月 1999年12月(築26年)
入居(引き渡し)時期 相談
用途地域 第1種住居地域 地目 宅地  (現状:宅地)
都市計画 市街化区域 学校区 鳥屋野小学校(853m)・上山中学校(1,224m)
形状 - 道路 -
私道 - その他の制限 -
  • 新潟市中央区美咲町売家
    有限会社 グリーン土地
  • この物件を問い合わせる/無料
  • TEL: 0258-32-1222

物件詳細情報

所在階/階数 - 号室 -
販売価格 44,000,000円 方位 南西
間取り 5LDK
専有面積 - バルコニー面積 -
その他面積 - 駐車場 -
管理費 - 修繕積立金 -
現況 空家
仲介手数料 1,518,000円
利用制限 -
設備 角地、駐車2台可能、IHクッキングヒーター、3口コンロ、追いだき機能付き、温水洗浄便座、トイレ2か所以上、エアコンあり、都市ガス、上水道、下水道、シューズBOX
取引態様 専属専任
備考 -
取り扱い会社

有限会社 グリーン土地

新潟県長岡市本町3-1-9 アーバンヒルズ長岡1F

情報登録日 2025/05/29 次回更新予定日 2026/04/21
取引条件有効期限 2025/06/30
  • 新潟市中央区美咲町売家
    有限会社 グリーン土地
  • この物件を問い合わせる/無料
  • TEL: 0258-32-1222

この物件の地図・周辺情報・行政情報

この物件の周辺情報・行政情報を詳しく見る
【周辺情報】
物件の近くにあるコンビニや銀行・学校など、アイコン付のマップで詳しく表示できます!
【行政情報】
水道料や下水道料・ガス料金など、暮らしに関係のある情報を表示しています。
デイリーヤマザキ 新潟美咲町店(コンビニ)まで800m

※カメラのアイコンがある場合は、マウスをポイントするとその施設の画像がご覧いただけます。


担当取扱い店舗情報

取扱い店舗画像
有限会社 グリーン土地
TEL: 0258-32-1222
所在地: 新潟県長岡市本町3-1-9 アーバンヒルズ長岡1F
交通: 長岡駅
営業時間: 9:00~17:00/定休日:日・祝・祭日
免許番号: 新潟県知事(10)3038号 この会社の情報を詳しく見る
所属団体名: 新潟県宅地建物取引協会 長岡支部
取引態様: 専属専任
ホームページ: https://www.greentoti.com