物件掲載企業数:299|賃貸物件:3,627件|売買物件:3,332件|今週の登録物件:205
閲覧中のブラウザ(インターネットエクスプローラー)は非推奨ブラウザです。
物件が正しく表示されなかったり、正しく検索されない場合があります。最新のブラウザ(Google Chrome・Edgeなど)にてご利用お願いいたします。
  

新潟県三条市東本成寺17番地10号 中古一戸建て 6LDK 24,800,000円の物件情報

東本成寺の閑静な住宅街の角地♪建物状態良好です

物件名/所在地 詳細 価格
◆中古戸建◆三条市東本成寺
新潟県三条市東本成寺17番地10号
  • 土地面積
    :396.95㎡ /120.07坪
  • 建物面積
    :204.2㎡ /61.77坪
  • 間取り
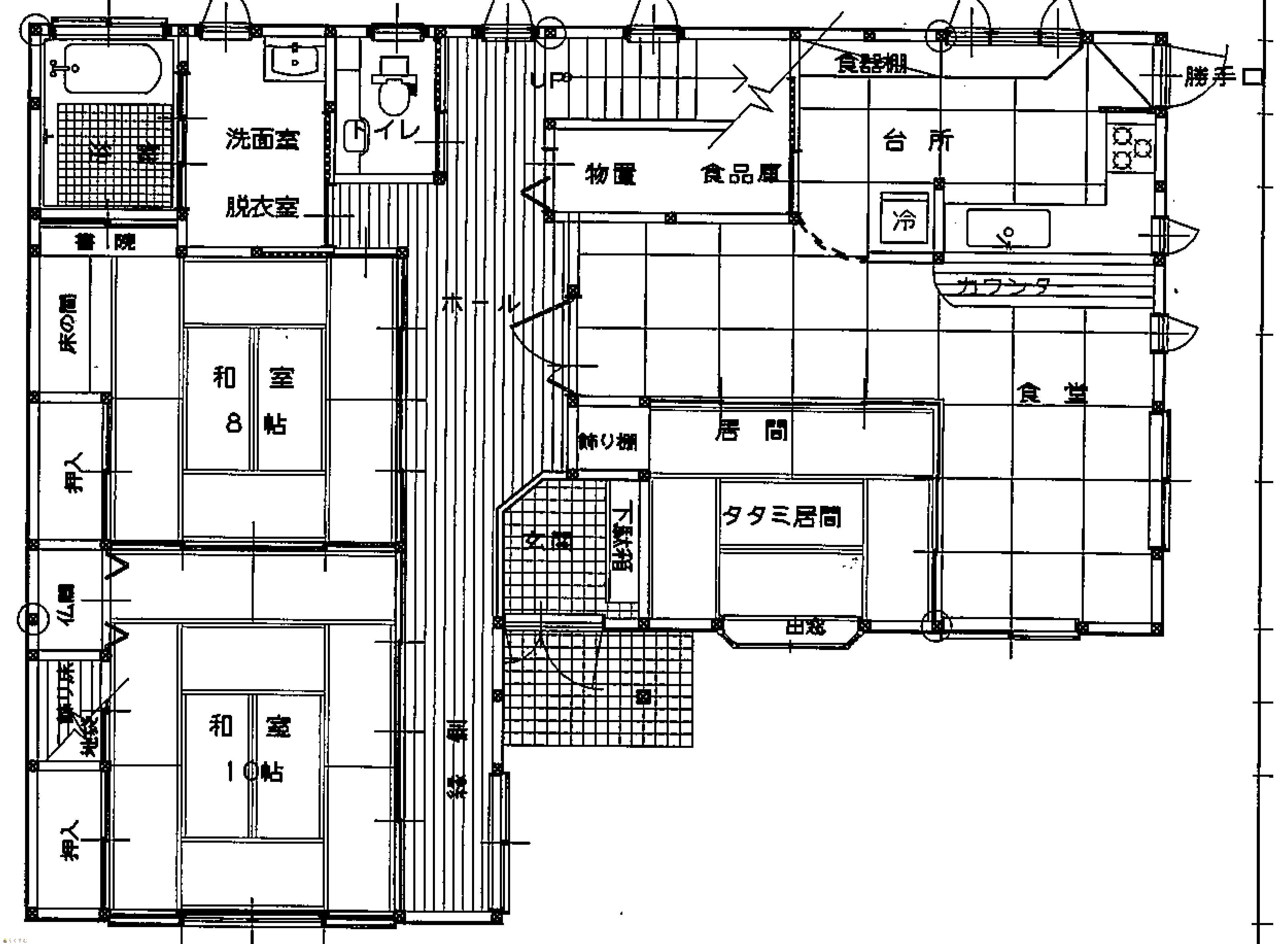
    :6LDK
  • 築年月
    :2000年10月
24,800,000
  • ◆中古戸建◆三条市東本成寺
    株式会社 ユタカ不動産
  • この物件を問い合わせる/無料
  • TEL: 0256-35-5825

物件画像

外観 間取り
物件画像
※画像クリックで拡大表示
外観
物件画像
※画像クリックで拡大表示
間取り
詳細画像


物件概要

前面道路融雪有! 駐車場計4台分有!
物件コード 00052-200284
物件名 ◆中古戸建◆三条市東本成寺
交通 駅:信越線 三条駅から徒歩19分、バス:川瀬神経内科クリニックから徒歩3分
物件所在地 新潟県三条市東本成寺17番地10号
物件種別 中古一戸建て
構造 木造 階建 地上2階建
建ぺい率/容積率 60%/200%
建物面積 1階 122.52㎡/ 2階 81.68㎡/ 計 204.2㎡ /61.77坪
土地面積 396.95㎡ /120.07坪
築年月 2000年10月(築25年)
入居(引き渡し)時期 相談
用途地域 第2種中高層住居専用地域 地目 宅地  (現状:宅地)
都市計画 非線引き都市計画区域 学校区 嵐南小学校(1,042m)・第一中学校(952m)
形状 - 道路 南側:幅員7.3m 東側:幅員5.1m
私道 - その他の制限 -
  • ◆中古戸建◆三条市東本成寺
    株式会社 ユタカ不動産
  • この物件を問い合わせる/無料
  • TEL: 0256-35-5825

物件詳細情報

所在階/階数 - 号室 -
販売価格 24,800,000円 方位 -
間取り 6LDK
専有面積 - バルコニー面積 -
その他面積 - 駐車場 -
管理費 - 修繕積立金 -
現況 空家
仲介手数料 884,400円
利用制限 -
設備 角地、閑静な住宅街、スーパー近く、新築時図面あり、修繕記録あり、駐車3台以上可能、南向き、システムキッチン、カウンターキッチン、IHクッキングヒーター、食器洗浄乾燥機、2口コンロ、追いだき機能付き、バス1坪以上、温水洗浄便座、トイレ2か所以上、シャワー付き洗面台、都市ガス、上水道、浄化槽、ウォークインクローゼット、全居室収納あり、シューズBOX
取引態様 専任
備考 ・現況渡し(家財は売主で撤去します)
・水道管は連合管です。
・居住誘導区域、都市機能誘導区域
・車庫3台分内、左側のシャッターのみ自動です。他屋外駐車場1台分有。
(シャッター間口3.6m、2.7m、3.6mの並びです)
・引渡時期は要相談ください。
取り扱い会社

株式会社 ユタカ不動産

新潟県三条市旭町1丁目1-19-3ユタカビル

情報登録日 2025/10/18 次回更新予定日 2025/11/10
取引条件有効期限 2026/11/01
  • ◆中古戸建◆三条市東本成寺
    株式会社 ユタカ不動産
  • この物件を問い合わせる/無料
  • TEL: 0256-35-5825

この物件の地図・周辺情報・行政情報

この物件の周辺情報・行政情報を詳しく見る
【周辺情報】
物件の近くにあるコンビニや銀行・学校など、アイコン付のマップで詳しく表示できます!
【行政情報】
水道料や下水道料・ガス料金など、暮らしに関係のある情報を表示しています。

担当取扱い店舗情報

取扱い店舗画像
株式会社 ユタカ不動産
TEL: 0256-35-5825
所在地: 新潟県三条市旭町1丁目1-19-3ユタカビル
交通: 東三条駅
営業時間: 9:00~18:00/定休日:火曜・祭日
免許番号: 新潟見知事(9)第3203号 この会社の情報を詳しく見る
所属団体名: 新潟県宅地建物取引協会 三条支部
取引態様: 専任
ホームページ: http://www.yutakafudousan.com