物件掲載企業数:301|賃貸物件:3,263件|売買物件:3,243件|今週の登録物件:248
閲覧中のブラウザ(インターネットエクスプローラー)は非推奨ブラウザです。
物件が正しく表示されなかったり、正しく検索されない場合があります。最新のブラウザ(Google Chrome・Edgeなど)にてご利用お願いいたします。
  

新潟県三条市曲渕2丁目5番16号 投資物件・その他 13,500,000円の物件情報

2025年11月7日1450万円→1350万円に!

物件名/所在地 詳細 価格
表面利回り
◆売店舗兼住宅◆曲渕2丁目
新潟県三条市曲渕2丁目5番16号
  • 土地面積
    :633.67㎡ /191.68坪
  • 建ぺい率
    :60%
  • 容積率
    :200%
13,500,000
-
  • ◆売店舗兼住宅◆曲渕2丁目
    株式会社 ユタカ不動産
  • この物件を問い合わせる/無料
  • TEL: 0256-35-5825

物件画像

外観 間取り
物件画像
※画像クリックで拡大表示
外観
物件画像
※画像クリックで拡大表示
間取り
詳細画像


物件概要

2階居住スペースなので店舗兼住宅でお探しの方にはピッタリ!
物件コード 00052-200123
物件名 ◆売店舗兼住宅◆曲渕2丁目
交通 駅:信越線 三条駅から徒歩11分、バス:高福寺から徒歩3分
物件所在地 新潟県三条市曲渕2丁目5番16号
物件種別 投資物件・その他
物件区分 その他
構造 鉄骨 階建 地上2階建
建ぺい率/容積率 60%/200%
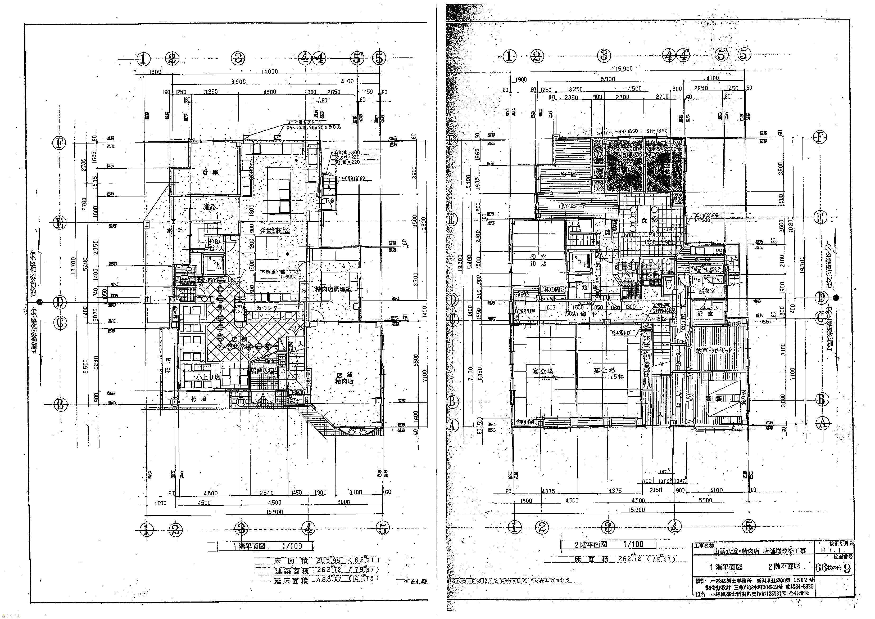
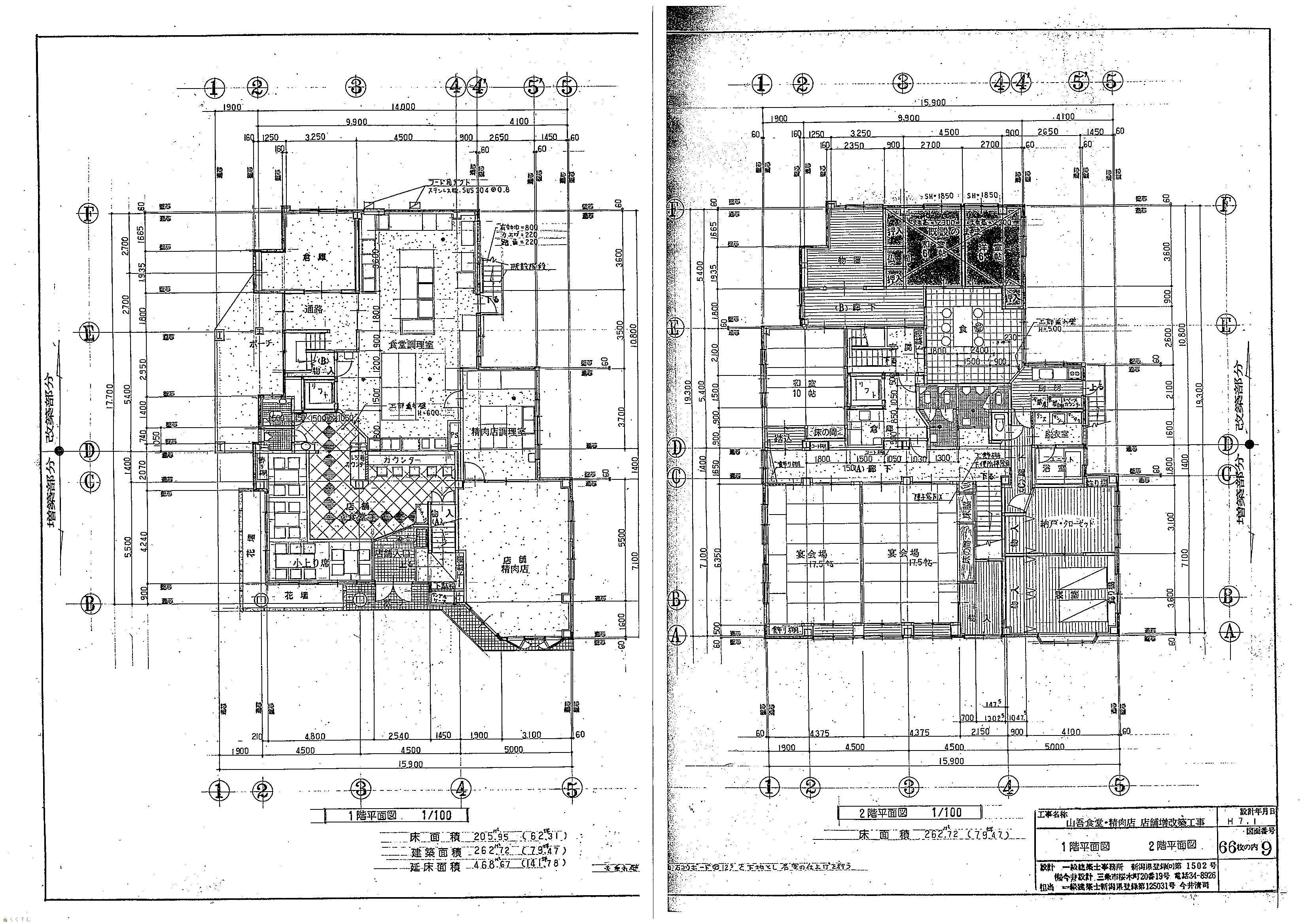
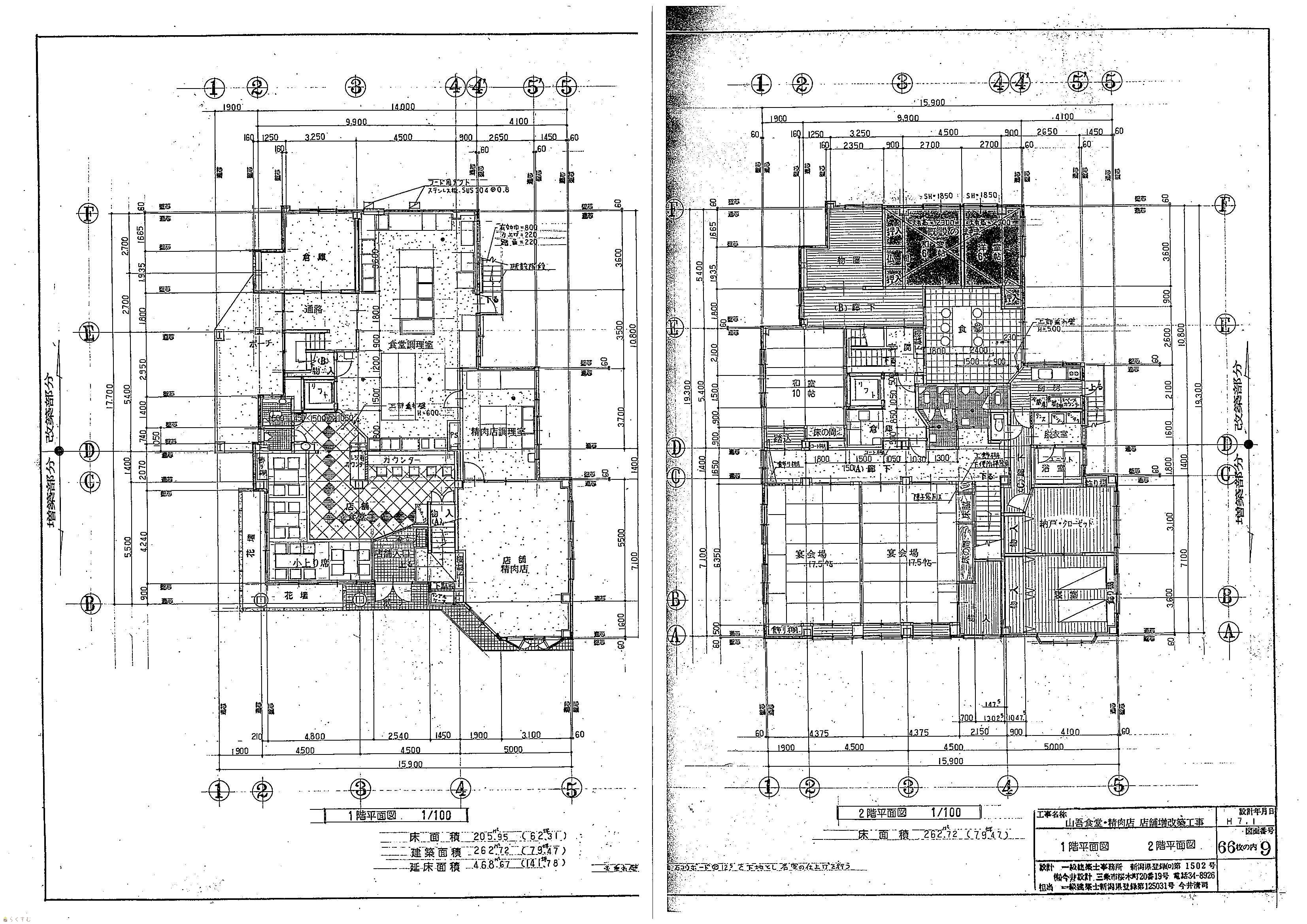
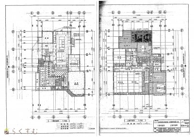
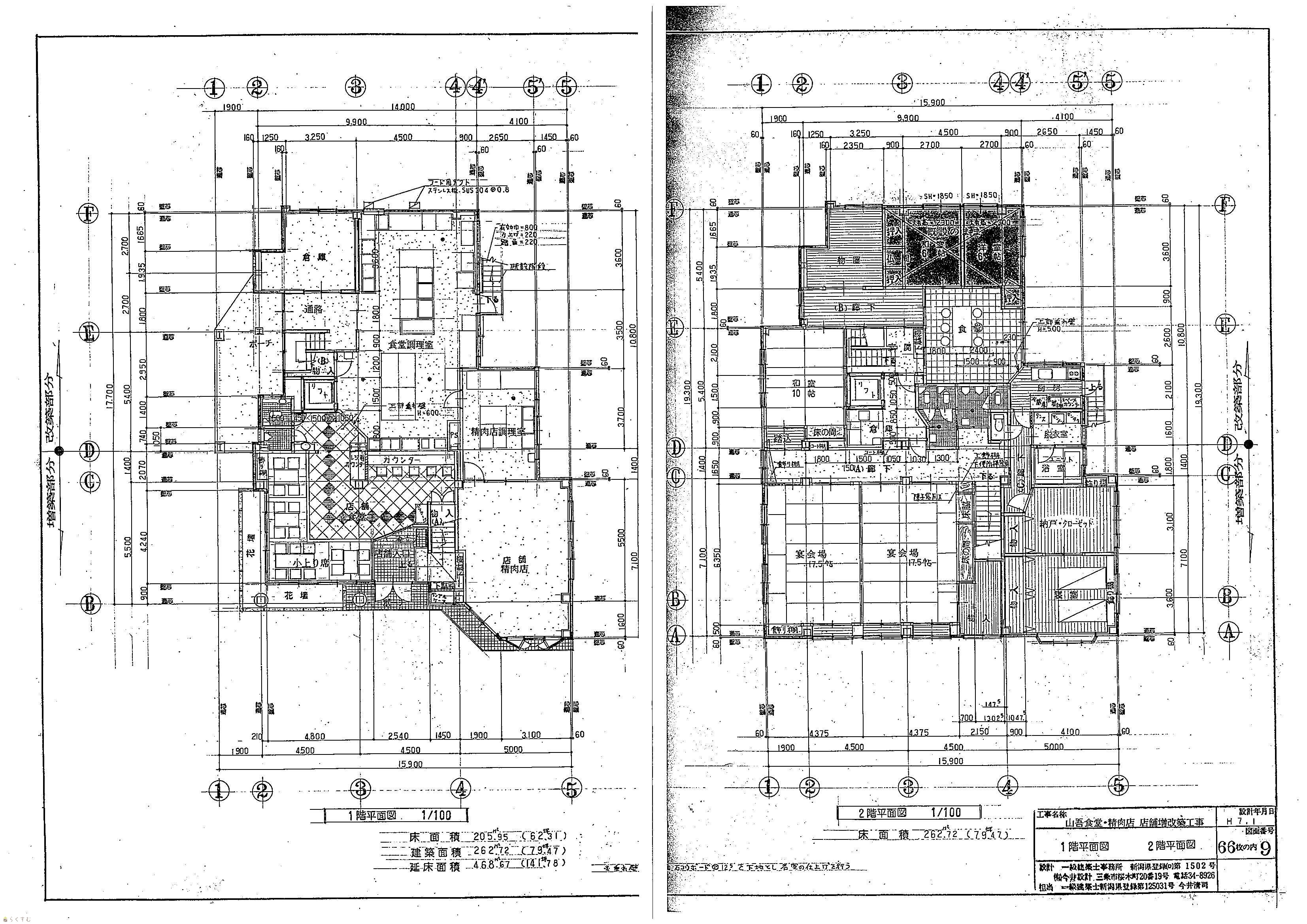
建物面積 1階 205.88㎡/ 2階 262.73㎡/ 計 468.61㎡ /141.75坪
土地面積 633.67㎡ /191.68坪
築年月 1977年12月(築48年)
入居(引き渡し)時期 随時入居(引き渡し)可
用途地域 第1種住居地域 地目 宅地  (現状:宅地)
都市計画 非線引き都市計画区域 学校区 嵐南小学校(994m)・第一中学校(2,149m)
形状 - 道路 南側9.0m三条市道/西側4.9m三条市道/北側2.0m三条
私道 - その他の制限 -
  • ◆売店舗兼住宅◆曲渕2丁目
    株式会社 ユタカ不動産
  • この物件を問い合わせる/無料
  • TEL: 0256-35-5825

物件詳細情報

所在階/階数 - 号室 -
販売価格 13,500,000円 方位 -
表面利回り(満室想定時) - 満室想定年収 - (想定月収: - )
現行利回り - 現行年間年収 -
住戸数 -
間取り -
専有面積 - バルコニー面積 -
その他面積 - 駐車場 -
管理費 - 修繕積立金 -
現況 空家
仲介手数料 511,500円
利用制限 -
設備 角地、南側道路面す、駐車場(近隣含む)、公営水道、都市ガス、浄化槽、事業向け
取引態様 一般
備考 平成7年8月に一部の居室を除いて全面改装・増築。
店舗兼住宅(店舗部分:食堂・厨房・宴会場・小上がり・リフト  住宅部分:和室6帖・10帖・洋室6帖・食堂約12.4帖・台所約4.5帖・物置約7帖)
取り扱い会社

株式会社 ユタカ不動産

新潟県三条市旭町1丁目1-19-3ユタカビル

情報登録日 2025/11/07 次回更新予定日 2026/06/08
取引条件有効期限 2026/01/01
  • ◆売店舗兼住宅◆曲渕2丁目
    株式会社 ユタカ不動産
  • この物件を問い合わせる/無料
  • TEL: 0256-35-5825

この物件の地図・周辺情報・行政情報

この物件の周辺情報・行政情報を詳しく見る
【周辺情報】
物件の近くにあるコンビニや銀行・学校など、アイコン付のマップで詳しく表示できます!
【行政情報】
水道料や下水道料・ガス料金など、暮らしに関係のある情報を表示しています。
ファミリーマート 三条田島店(コンビニ)まで350m

※カメラのアイコンがある場合は、マウスをポイントするとその施設の画像がご覧いただけます。


担当取扱い店舗情報

取扱い店舗画像
株式会社 ユタカ不動産
TEL: 0256-35-5825
所在地: 新潟県三条市旭町1丁目1-19-3ユタカビル
交通: 東三条駅
営業時間: 9:00~18:00/定休日:火曜・祭日
免許番号: 新潟見知事(9)第3203号 この会社の情報を詳しく見る
所属団体名: 新潟県宅地建物取引協会 三条支部
取引態様: 一般
ホームページ: http://www.yutakafudousan.com