物件掲載企業数:301|賃貸物件:3,261件|売買物件:3,251件|今週の登録物件:245
閲覧中のブラウザ(インターネットエクスプローラー)は非推奨ブラウザです。
物件が正しく表示されなかったり、正しく検索されない場合があります。最新のブラウザ(Google Chrome・Edgeなど)にてご利用お願いいたします。
  

新潟県十日町市高田町二丁目277-4 中古一戸建て 4LDK 9,800,000円の物件情報

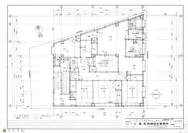
1階店舗・車庫3台 2階居住スペース 3階フリースペースです

物件名/所在地 詳細 価格
十日町市高田町2丁目 融雪井戸付き3階建て
新潟県十日町市高田町二丁目277-4
  • 土地面積
    :227.76㎡ /68.89坪
  • 建物面積
    :495.99㎡ /150.03坪
  • 間取り
    :4LDK
  • 築年月
    :1992年5月
9,800,000
  • 十日町市高田町2丁目 融雪井戸付き3階建て
    ブレイン・リアルエステート合同会社
  • この物件を問い合わせる/無料
  • TEL: 0258-86-6934

物件画像

外観 間取り
物件画像
※画像クリックで拡大表示
外観
物件画像
※画像クリックで拡大表示
間取り
詳細画像


物件概要

融雪井戸付きの3階建て住宅
物件コード 00044-200717
物件名 十日町市高田町2丁目 融雪井戸付き3階建て
交通 駅:飯山線 十日町駅から徒歩6分、バス:高田町二丁目から徒歩2分
物件所在地 新潟県十日町市高田町二丁目277-4
物件種別 中古一戸建て
構造 鉄骨 階建 地上3階建
建ぺい率/容積率 80%/400%
建物面積 1階 157.25㎡/ 2階 169.37㎡/ 3階 169.37㎡/ 計 495.99㎡ /150.03坪
土地面積 227.76㎡ /68.89坪
築年月 1992年5月(築34年)
入居(引き渡し)時期 随時入居(引き渡し)可
用途地域 商業地域 地目 宅地
都市計画 非線引き都市計画区域 学校区 十日町小学校(982m)・十日町中学校(1,076m)
形状 間口 14.37m 道路 北側:県道 幅員9m 南側:市道 幅員4m
私道 - その他の制限 -
  • 十日町市高田町2丁目 融雪井戸付き3階建て
    ブレイン・リアルエステート合同会社
  • この物件を問い合わせる/無料
  • TEL: 0258-86-6934

物件詳細情報

所在階/階数 - 号室 -
販売価格 9,800,000円 方位 -
間取り 4LDK
1階店舗兼車庫 3階はフリースペース
専有面積 - バルコニー面積 -
その他面積 - 駐車場 -
管理費 - 修繕積立金 -
現況 空家
仲介手数料 389,400円
利用制限 -
設備 日当り良好、スーパー近く、新築時図面あり、駐車3台以上可能、TVインターホン、システムキッチン、3口コンロ、追いだき機能付き、バス1坪以上、温水洗浄便座、トイレ2か所以上、エアコンあり、堀ごたつ、LPG、上水道、下水道、即引き渡し可能、別荘、田舎暮らし、事業向け
取引態様 一般
備考 ■現況有姿での引渡しとなり売主による契約不適合責任は免責となります ■固定資産税 年22万円 
■管理状態のいい住宅です
取り扱い会社

ブレイン・リアルエステート合同会社

新潟県長岡市大島本町3丁目10番8号202号室

情報登録日 2026/04/06 次回更新予定日 2026/06/06
取引条件有効期限 2026/07/07
  • 十日町市高田町2丁目 融雪井戸付き3階建て
    ブレイン・リアルエステート合同会社
  • この物件を問い合わせる/無料
  • TEL: 0258-86-6934

この物件の地図・周辺情報・行政情報

この物件の周辺情報・行政情報を詳しく見る
【周辺情報】
物件の近くにあるコンビニや銀行・学校など、アイコン付のマップで詳しく表示できます!
【行政情報】
水道料や下水道料・ガス料金など、暮らしに関係のある情報を表示しています。

担当取扱い店舗情報

取扱い店舗画像
ブレイン・リアルエステート合同会社
TEL: 0258-86-6934
所在地: 新潟県長岡市大島本町3丁目10番8号202号室
交通:
営業時間: 9:30~18:00/定休日:水曜日、日曜日
免許番号: 新潟県知事(4)第4978号 この会社の情報を詳しく見る
所属団体名: ブレインリアルエステート合同会社
取引態様: 一般
ホームページ: http://www.brain-niigata.co.jp