物件掲載企業数:297|賃貸物件:3,610件|売買物件:3,333件|今週の登録物件:272
閲覧中のブラウザ(インターネットエクスプローラー)は非推奨ブラウザです。
物件が正しく表示されなかったり、正しく検索されない場合があります。最新のブラウザ(Google Chrome・Edgeなど)にてご利用お願いいたします。
  

新潟県長岡市福井町25-3 中古一戸建て 7DK 5,500,000円の物件情報

敷地内に融雪井戸があります。

物件名/所在地 詳細 価格
長岡市福井町 中古住宅
新潟県長岡市福井町25-3
  • 土地面積
    :493.7㎡ /149.34坪
  • 建物面積
    :160.36㎡ /48.5坪
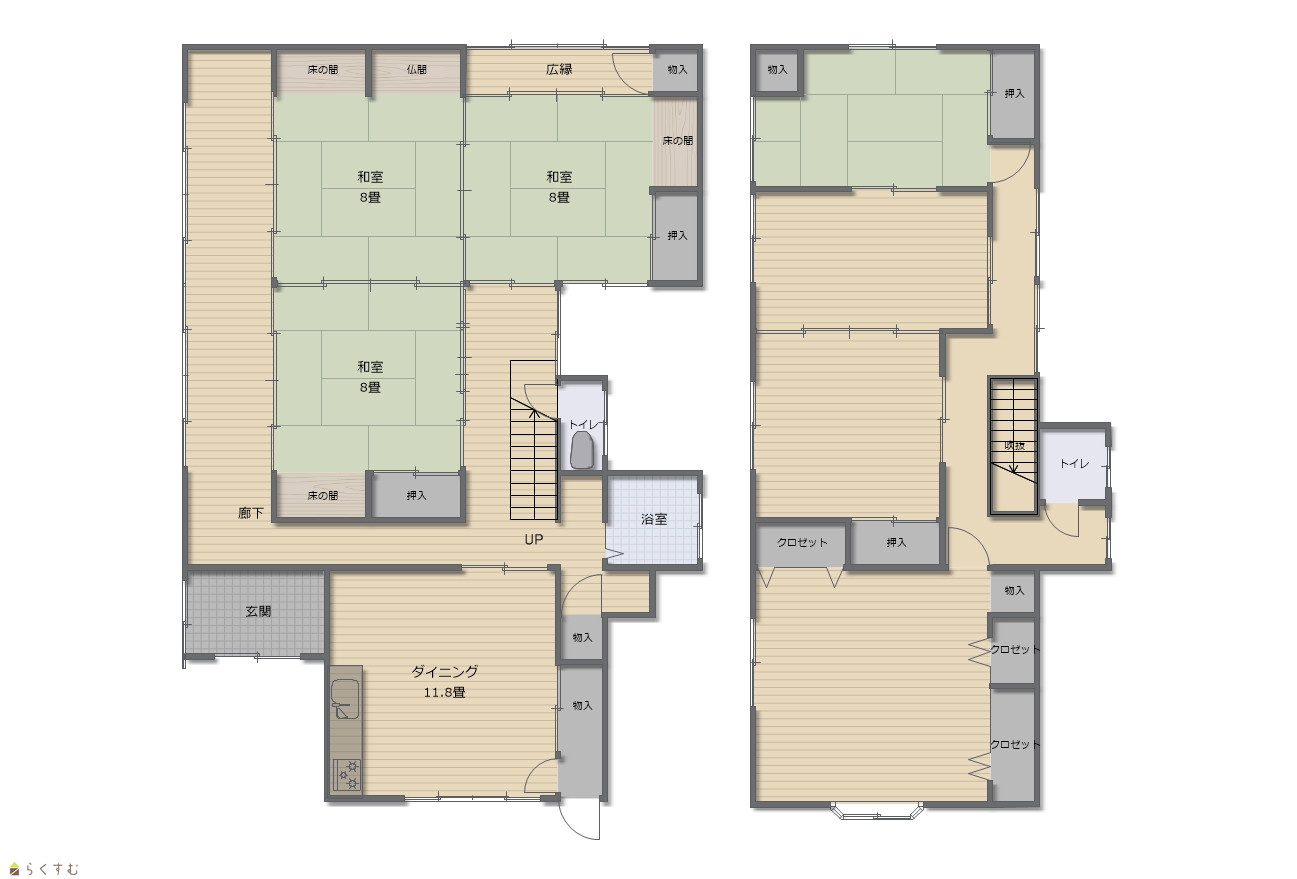
  • 間取り
    :7DK
  • 築年月
    :1982年7月
5,500,000
  • 長岡市福井町 中古住宅
    ブレイン・リアルエステート合同会社
  • この物件を問い合わせる/無料
  • TEL: 0258-86-6934

物件画像

外観 間取り
物件画像
※画像クリックで拡大表示
外観
物件画像
※画像クリックで拡大表示
間取り
詳細画像


物件概要

外壁張替済み 家族が多い方にピッタリの住宅
物件コード 00044-200694
物件名 長岡市福井町 中古住宅
交通 駅:信越線 押切駅から徒歩11分、バス:七軒町から徒歩6分
物件所在地 新潟県長岡市福井町25-3
物件種別 中古一戸建て
構造 木造 階建 地上2階建
建ぺい率/容積率 70%/200%
建物面積 1階 110.68㎡/ 2階 49.68㎡/ 計 160.36㎡ /48.5坪
土地面積 493.7㎡ /149.34坪
築年月 1982年7月(築43年)
入居(引き渡し)時期 相談
用途地域 用途の指定のない地域 地目 宅地
都市計画 市街化調整区域 学校区 新組小学校(299m)・堤岡中学校(1,513m)
形状 - 道路 北東側:8m
私道 - その他の制限 -
  • 長岡市福井町 中古住宅
    ブレイン・リアルエステート合同会社
  • この物件を問い合わせる/無料
  • TEL: 0258-86-6934

物件詳細情報

所在階/階数 - 号室 -
販売価格 5,500,000円 方位 -
間取り 7DK
専有面積 - バルコニー面積 -
その他面積 - 駐車場 -
管理費 - 修繕積立金 -
現況 空家
仲介手数料 330,000円
利用制限 -
設備 日当り良好、駐車3台以上可能、システムキッチン、食器洗浄乾燥機、追いだき機能付き、バス1坪以上、温水洗浄便座、トイレ2か所以上、シャワー付き洗面台、LPG、上水道、下水道
取引態様 専任
備考 ■現況有姿での引渡しとなり、売主による契約不適合責任免責となります。 ■売主による境界非明示 ■2004年の7.13水害で床下浸水をした経歴あり ■隣接地に地目:畑 有り。 ■本物件は市街化調整区域にある為、原則再建築は不可ですが、都市計画法第43条の建築許可を取得することにより再建築が可能になります。 ■未登記建物について、平成9年増築 48.75㎡、 車庫物置69.42㎡については売主により登記を行い引渡しとなります ■本物件以外に山林、畑あり。
取り扱い会社

ブレイン・リアルエステート合同会社

新潟県長岡市大島本町3丁目10番8号202号室

情報登録日 2025/12/04 次回更新予定日 2026/01/13
取引条件有効期限 2025/12/14
  • 長岡市福井町 中古住宅
    ブレイン・リアルエステート合同会社
  • この物件を問い合わせる/無料
  • TEL: 0258-86-6934

この物件の地図・周辺情報・行政情報

この物件の周辺情報・行政情報を詳しく見る
【周辺情報】
物件の近くにあるコンビニや銀行・学校など、アイコン付のマップで詳しく表示できます!
【行政情報】
水道料や下水道料・ガス料金など、暮らしに関係のある情報を表示しています。

担当取扱い店舗情報

取扱い店舗画像
ブレイン・リアルエステート合同会社
TEL: 0258-86-6934
所在地: 新潟県長岡市大島本町3丁目10番8号202号室
交通:
営業時間: 9:30~18:00/定休日:水曜日、日曜日
免許番号: 新潟県知事(4)第4978号 この会社の情報を詳しく見る
所属団体名: ブレインリアルエステート合同会社
取引態様: 専任
ホームページ: http://www.brain-niigata.co.jp