物件掲載企業数:295|賃貸物件:3,618件|売買物件:3,315件|今週の登録物件:215
閲覧中のブラウザ(インターネットエクスプローラー)は非推奨ブラウザです。
物件が正しく表示されなかったり、正しく検索されない場合があります。最新のブラウザ(Google Chrome・Edgeなど)にてご利用お願いいたします。
  

新潟県魚沼市堀之内708-13 中古一戸建て 6DK 800,000円の物件情報

雪国の暮らしに強い味方。石油融雪設備付きの安心住宅冬も、冬も快適。敷地も屋根も雪知らず。

物件名/所在地 詳細 価格
魚沼市堀之内 中古住宅
新潟県魚沼市堀之内708-13
  • 土地面積
    :289.24㎡ /87.49坪
  • 建物面積
    :118.41㎡ /35.81坪
  • 間取り
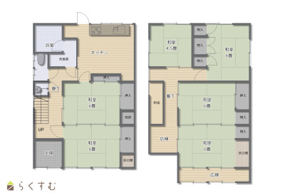
    :6DK
  • 築年月
    :1971年12月
800,000
  • 魚沼市堀之内 中古住宅
    ブレイン・リアルエステート合同会社
  • この物件を問い合わせる/無料
  • TEL: 0258-86-6934

物件画像

外観 間取り
物件画像
※画像クリックで拡大表示
外観
物件画像
※画像クリックで拡大表示
間取り
詳細画像


物件概要

魚沼で叶える、ゆとりある田舎暮らし、冬も安心、移住にもぴったりの一軒家
物件コード 00044-200691
物件名 魚沼市堀之内 中古住宅
交通 駅:上越線 越後堀之内駅から徒歩11分
物件所在地 新潟県魚沼市堀之内708-13
物件種別 中古一戸建て
構造 木造 階建 地上2階建
建ぺい率/容積率 60%/200%
建物面積 計 118.41㎡ /35.81坪
土地面積 289.24㎡ /87.49坪
築年月 1971年12月(築53年)
入居(引き渡し)時期 随時入居(引き渡し)可
用途地域 第1種住居地域 地目 宅地
都市計画 非線引き都市計画区域 学校区 堀之内小学校(392m)・堀之内中学校(643m)
形状 間口 14.8m × 奥行 19m 道路 南西側:市道 約5.5m 北西側 市道 約2.6m
私道 - その他の制限 -
  • 魚沼市堀之内 中古住宅
    ブレイン・リアルエステート合同会社
  • この物件を問い合わせる/無料
  • TEL: 0258-86-6934

物件詳細情報

所在階/階数 - 号室 -
販売価格 800,000円 方位 南西
間取り 6DK
専有面積 - バルコニー面積 -
その他面積 - 駐車場 -
管理費 - 修繕積立金 -
現況 空家
仲介手数料 330,000円
利用制限 -
設備 日当り良好、閑静な住宅街、駐車2台可能、バス1坪以上、上水道、下水道
取引態様 専任
備考 現況有姿での引渡しとなり売主による保証はありません。敷地内融雪井戸あり。
取り扱い会社

ブレイン・リアルエステート合同会社

新潟県長岡市大島本町3丁目10番8号202号室

情報登録日 2025/10/14 次回更新予定日 2025/11/19
取引条件有効期限 2025/11/30
  • 魚沼市堀之内 中古住宅
    ブレイン・リアルエステート合同会社
  • この物件を問い合わせる/無料
  • TEL: 0258-86-6934

この物件の地図・周辺情報・行政情報

この物件の周辺情報・行政情報を詳しく見る
【周辺情報】
物件の近くにあるコンビニや銀行・学校など、アイコン付のマップで詳しく表示できます!
【行政情報】
水道料や下水道料・ガス料金など、暮らしに関係のある情報を表示しています。

担当取扱い店舗情報

取扱い店舗画像
ブレイン・リアルエステート合同会社
TEL: 0258-86-6934
所在地: 新潟県長岡市大島本町3丁目10番8号202号室
交通:
営業時間: 9:30~18:00/定休日:水曜日、日曜日
免許番号: 新潟県知事(3)第4978号 この会社の情報を詳しく見る
所属団体名: ブレインリアルエステート合同会社
取引態様: 専任
ホームページ: http://www.brain-niigata.co.jp