物件掲載企業数:295|賃貸物件:3,617件|売買物件:3,315件|今週の登録物件:212
閲覧中のブラウザ(インターネットエクスプローラー)は非推奨ブラウザです。
物件が正しく表示されなかったり、正しく検索されない場合があります。最新のブラウザ(Google Chrome・Edgeなど)にてご利用お願いいたします。
  

新潟県魚沼市中家652-5 中古一戸建て 7DK 3,800,000円の物件情報

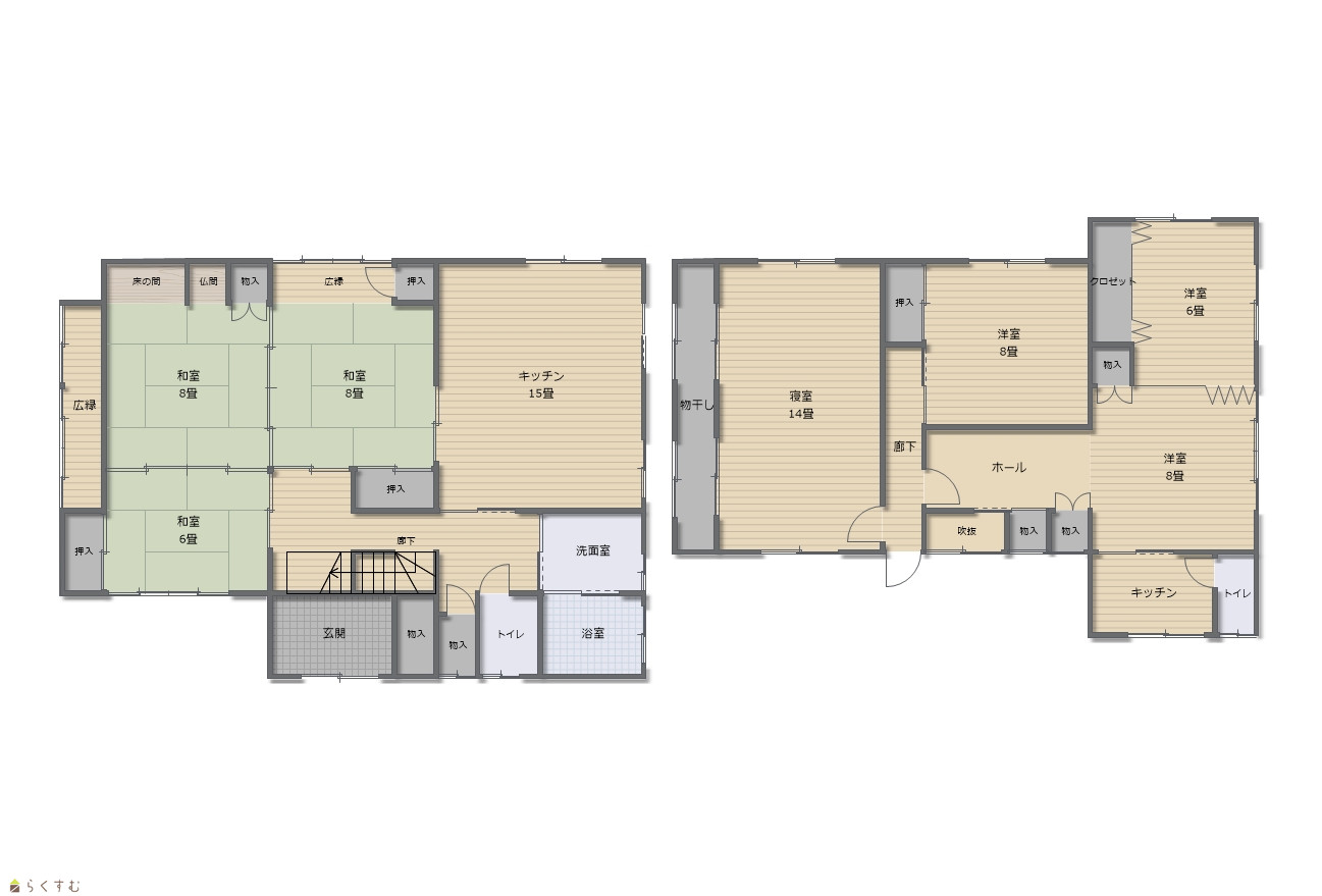
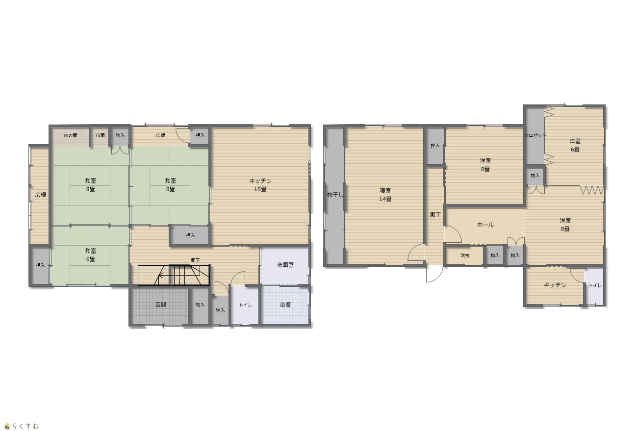
2部屋を一つの大きな寝室にリフォーム!アルミカーポート新設

物件名/所在地 詳細 価格
魚沼市中家 オール電化住宅 商談中
新潟県魚沼市中家652-5
  • 土地面積
    :512.86㎡ /155.14坪
  • 建物面積
    :198.9㎡ /60.16坪
  • 間取り
    :7DK
  • 築年月
    :1972年9月
3,800,000
  • 魚沼市中家 オール電化住宅 商談中
    ブレイン・リアルエステート合同会社
  • この物件を問い合わせる/無料
  • TEL: 0258-86-6934

物件画像

外観 間取り
物件画像
※画像クリックで拡大表示
外観
物件画像
※画像クリックで拡大表示
間取
詳細画像


物件概要

物件コード 00044-200679
物件名 魚沼市中家 オール電化住宅 商談中
交通 駅:只見線 藪神駅から徒歩52分、バス:新保から徒歩40分
物件所在地 新潟県魚沼市中家652-5
物件種別 中古一戸建て
構造 木造 階建 地上2階建
建ぺい率/容積率 70%/200%
建物面積 1階 107.3㎡/ 2階 91.6㎡/ 計 198.9㎡ /60.16坪
土地面積 512.86㎡ /155.14坪
築年月 1972年9月(築53年)
入居(引き渡し)時期 相談
用途地域 無指定 地目 宅地
都市計画 非線引き都市計画区域 学校区 広神東小学校(2,192m)・広神中学校(3,862m)
形状 間口 28m × 奥行 13.8m 道路 東側:県道 幅員11.5m 北側:県道 幅員7.2m
私道 - その他の制限 -
  • 魚沼市中家 オール電化住宅 商談中
    ブレイン・リアルエステート合同会社
  • この物件を問い合わせる/無料
  • TEL: 0258-86-6934

物件詳細情報

所在階/階数 - 号室 -
販売価格 3,800,000円 方位 -
間取り 7DK
2階リフォーム済み
専有面積 - バルコニー面積 -
その他面積 - 駐車場 -
管理費 - 修繕積立金 -
現況 居住中
仲介手数料 330,000円
利用制限 -
設備 角地、日当り良好、閑静な住宅街、駐車3台以上可能、駐車場融雪設備あり、TVインターホン、バス1坪以上、温水洗浄便座、トイレ2か所以上、エアコンあり、LPG、上水道、下水道、内装リフォーム済み
取引態様 専任
備考 ・現況有姿の引き渡しとなり、契約不適合責任免責
取り扱い会社

ブレイン・リアルエステート合同会社

新潟県長岡市大島本町3丁目10番8号202号室

情報登録日 2025/08/08 次回更新予定日 2025/11/19
取引条件有効期限 2025/09/18
  • 魚沼市中家 オール電化住宅 商談中
    ブレイン・リアルエステート合同会社
  • この物件を問い合わせる/無料
  • TEL: 0258-86-6934

この物件の地図・周辺情報・行政情報

この物件の周辺情報・行政情報を詳しく見る
【周辺情報】
物件の近くにあるコンビニや銀行・学校など、アイコン付のマップで詳しく表示できます!
【行政情報】
水道料や下水道料・ガス料金など、暮らしに関係のある情報を表示しています。

担当取扱い店舗情報

取扱い店舗画像
ブレイン・リアルエステート合同会社
TEL: 0258-86-6934
所在地: 新潟県長岡市大島本町3丁目10番8号202号室
交通:
営業時間: 9:30~18:00/定休日:水曜日、日曜日
免許番号: 新潟県知事(3)第4978号 この会社の情報を詳しく見る
所属団体名: ブレインリアルエステート合同会社
取引態様: 専任
ホームページ: http://www.brain-niigata.co.jp