物件掲載企業数:301|賃貸物件:3,261件|売買物件:3,251件|今週の登録物件:245
閲覧中のブラウザ(インターネットエクスプローラー)は非推奨ブラウザです。
物件が正しく表示されなかったり、正しく検索されない場合があります。最新のブラウザ(Google Chrome・Edgeなど)にてご利用お願いいたします。
  

新潟県見附市学校町2-6-12 中古一戸建て 10LDK 13,800,000円の物件情報

部屋数が多い中古住宅です、一階のフリースペースを事務所としても使えます。

物件名/所在地 詳細 価格
見附市学校町2丁目 中古住宅 大家族向、事務所兼住宅
新潟県見附市学校町2-6-12
  • 土地面積
    :413.32㎡ /125.02坪
  • 建物面積
    :341.17㎡ /103.2坪
  • 間取り
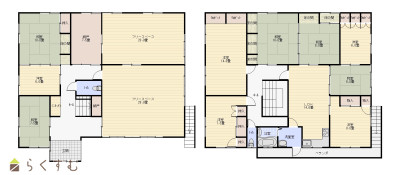
    :10LDK
  • 築年月
    :1990年7月
13,800,000
  • 見附市学校町2丁目 中古住宅 大家族向、事務所兼住宅
    ブレイン・リアルエステート合同会社
  • この物件を問い合わせる/無料
  • TEL: 0258-86-6934

物件画像

外観 間取り
物件画像
※画像クリックで拡大表示
外観
物件画像
※画像クリックで拡大表示
間取
詳細画像


物件概要

2世帯住宅にお勧めです!
物件コード 00044-200614
物件名 見附市学校町2丁目 中古住宅 大家族向、事務所兼住宅
交通 駅:信越線 見附駅から徒歩18分、バス:ネーブルみつけ前から徒歩5分
物件所在地 新潟県見附市学校町2-6-12
物件種別 中古一戸建て
構造 木造 階建 地上2階建
建ぺい率/容積率 60%/200%
建物面積 1階 168.93㎡/ 2階 172.24㎡/ 計 341.17㎡ /103.2坪
土地面積 413.32㎡ /125.02坪
築年月 1990年7月(築35年)
入居(引き渡し)時期 相談
用途地域 第1種住居地域 地目 宅地
都市計画 市街化区域 学校区 見附小学校(612m)・見附中学校(1,468m)
形状 - 道路 北側:4m
私道 - その他の制限 -
  • 見附市学校町2丁目 中古住宅 大家族向、事務所兼住宅
    ブレイン・リアルエステート合同会社
  • この物件を問い合わせる/無料
  • TEL: 0258-86-6934

物件詳細情報

所在階/階数 - 号室 -
販売価格 13,800,000円 方位
間取り 10LDK
専有面積 - バルコニー面積 -
その他面積 - 駐車場 -
管理費 - 修繕積立金 -
現況 居住中
仲介手数料 521,400円
利用制限 -
設備 日当り良好、閑静な住宅街、スーパー近く、駐車3台以上可能、システムキッチン、温水洗浄便座、都市ガス、上水道、下水道
取引態様 一般
備考 ■現況有姿での引渡しとなります■売主による境界非明示■現在居住中、内覧をご希望の方は事前予約が必要となります■道路持分有り
取り扱い会社

ブレイン・リアルエステート合同会社

新潟県長岡市大島本町3丁目10番8号202号室

情報登録日 2024/12/03 次回更新予定日 2026/06/06
取引条件有効期限 2025/01/21
  • 見附市学校町2丁目 中古住宅 大家族向、事務所兼住宅
    ブレイン・リアルエステート合同会社
  • この物件を問い合わせる/無料
  • TEL: 0258-86-6934

この物件の地図・周辺情報・行政情報

この物件の周辺情報・行政情報を詳しく見る
【周辺情報】
物件の近くにあるコンビニや銀行・学校など、アイコン付のマップで詳しく表示できます!
【行政情報】
水道料や下水道料・ガス料金など、暮らしに関係のある情報を表示しています。

担当取扱い店舗情報

取扱い店舗画像
ブレイン・リアルエステート合同会社
TEL: 0258-86-6934
所在地: 新潟県長岡市大島本町3丁目10番8号202号室
交通:
営業時間: 9:30~18:00/定休日:水曜日、日曜日
免許番号: 新潟県知事(4)第4978号 この会社の情報を詳しく見る
所属団体名: ブレインリアルエステート合同会社
取引態様: 一般
ホームページ: http://www.brain-niigata.co.jp