物件掲載企業数:299|賃貸物件:3,027件|売買物件:3,228件|今週の登録物件:311
閲覧中のブラウザ(インターネットエクスプローラー)は非推奨ブラウザです。
物件が正しく表示されなかったり、正しく検索されない場合があります。最新のブラウザ(Google Chrome・Edgeなど)にてご利用お願いいたします。
  

新潟県長岡市旭町1丁目1-11サーパス旭町804 中古マンション 2LDK 18,500,000円の物件情報

長岡駅から徒歩10分の立地です。

物件名/所在地 詳細 価格
サーパス旭町 804
804号室
新潟県長岡市旭町1丁目1-11サーパス旭町804
  • 専有面積
    :68.74㎡ /20.79坪
  • 間取り
    :2LDK
  • 築年月
    :2006年1月
18,500,000
  • サーパス旭町 804
    株式会社 高野不動産販売
  • この物件を問い合わせる/無料
  • TEL: 0258-33-7711

物件画像

外観 間取り
物件画像
※画像クリックで拡大表示
外観
物件画像
※画像クリックで拡大表示
リビングと和室をつなげてあります。
詳細画像


物件概要

角部屋で日当たり良好!駐車場空きあり
物件コード 00041-200933
物件名 サーパス旭町 804
交通 駅:上越新幹線 長岡駅から徒歩8分、バス:南町1丁目から徒歩1分
物件所在地 新潟県長岡市旭町1丁目1-11サーパス旭町804
物件種別 中古マンション
構造 鉄筋コン 階建 地上10階地下1階建
建ぺい率/容積率 90%/399%
建物面積 計 3,551.97㎡ /1,074.47坪
土地面積 640.32㎡ /193.69坪
築年月 2006年1月(築20年)
入居(引き渡し)時期 随時入居(引き渡し)可
用途地域 商業地域 地目 宅地  (現状:宅地)
都市計画 市街化区域 学校区 阪之上小学校(756m)・南中学校(403m)
形状 - 道路 -
私道 - その他の制限 -
  • サーパス旭町 804
    株式会社 高野不動産販売
  • この物件を問い合わせる/無料
  • TEL: 0258-33-7711

物件詳細情報

所在階/階数 8階/10階 号室 804号室
販売価格 18,500,000円 方位
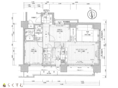
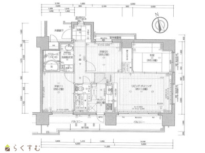
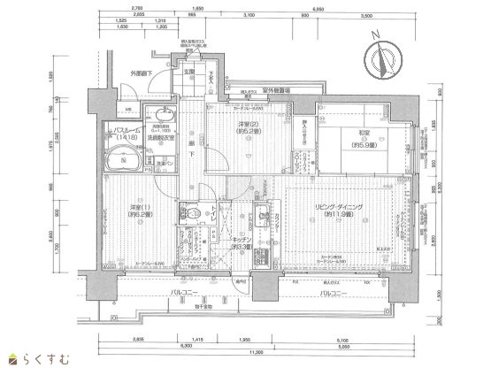
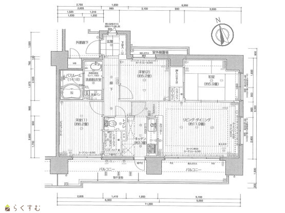
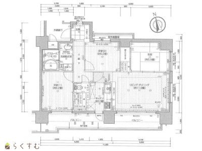
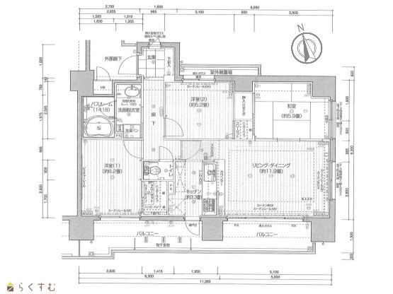
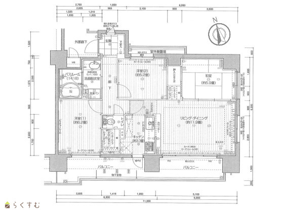
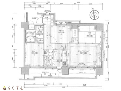
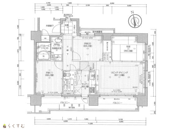
間取り 2LDK (和室:5.9畳) (洋室:6.2、5.2)
LDK11.9
専有面積 68.74㎡ /20.79坪 バルコニー面積 15.42㎡ /4.66坪
その他面積 - 駐車場 13,000円~
管理費 14,900円 修繕積立金 17,600円
現況 空家
仲介手数料 676,500円
CATV 770円
インターネット 2,835円
警備料 692円
町内費 500円
利用制限 ペット:相談、楽器:相談
設備 角部屋、2階以上、日当り良好、最寄駅近く、洗濯機置き場、エレベーター、和室あり、駐車場空きあり、平面駐車場、南向き、管理人常駐(日中)、TV付きインターホン、エントランスオートロック、ガスコンロ設置済み、温水洗浄便座、シャワー付き洗面台、床暖房、都市ガス、公営水道、下水道、ウォークインクローゼット、シューズBOX、CATV、即入居可能、ペット相談、楽器相談
取引態様 一般
備考 -
取り扱い会社

株式会社 高野不動産販売

新潟県長岡市柏町1丁目4-33

情報登録日 2026/01/08 次回更新予定日 2026/04/21
取引条件有効期限 2026/04/08
  • サーパス旭町 804
    株式会社 高野不動産販売
  • この物件を問い合わせる/無料
  • TEL: 0258-33-7711

この物件の地図・周辺情報・行政情報

この物件の周辺情報・行政情報を詳しく見る
【周辺情報】
物件の近くにあるコンビニや銀行・学校など、アイコン付のマップで詳しく表示できます!
【行政情報】
水道料や下水道料・ガス料金など、暮らしに関係のある情報を表示しています。
セブン-イレブン 長岡旭町店(コンビニ)まで170m
ファミリーマート 長岡弓町店(コンビニ)まで310m
柏薬局(ドラッグストア)まで490m
悠久調剤薬局(ドラッグストア)まで430m
渡辺医院(病院)まで500m
内科 高野医院(病院)まで490m
長岡信用金庫 台町支店(銀行)まで450m
第四北越銀行 長岡市役所支店(銀行)まで420m
郵便ポスト(郵便局)まで620m

※カメラのアイコンがある場合は、マウスをポイントするとその施設の画像がご覧いただけます。


担当取扱い店舗情報

取扱い店舗画像
株式会社 高野不動産販売
TEL: 0258-33-7711
所在地: 新潟県長岡市柏町1丁目4-33
交通: 長岡駅
営業時間: 9:00~17:30/定休日:土曜日・日曜日・祝日・お盆・年末年始
免許番号: 新潟県知事(1)第5568号 この会社の情報を詳しく見る
所属団体名: (公社)新潟県宅地建物取引業協会,(公社)首都圏不動産公正取引協議会,(公財)日本賃貸住宅管理協会
取引態様: 一般
ホームページ: https://www.tknf.co.jp