物件掲載企業数:295|賃貸物件:3,620件|売買物件:3,318件|今週の登録物件:226
閲覧中のブラウザ(インターネットエクスプローラー)は非推奨ブラウザです。
物件が正しく表示されなかったり、正しく検索されない場合があります。最新のブラウザ(Google Chrome・Edgeなど)にてご利用お願いいたします。
  

新潟県長岡市今井2丁目187-2 新築一戸建て 3LDK 22,550,000円の物件情報

【価格改定】 完成済物件なのでご案内可能です!

物件名/所在地 詳細 価格
【価格改定】今井2丁目B棟(学区:宮内小・宮内中)
新潟県長岡市今井2丁目187-2
  • 土地面積
    :150.44㎡ /45.5坪
  • 建物面積
    :91.08㎡ /27.55坪
  • 間取り
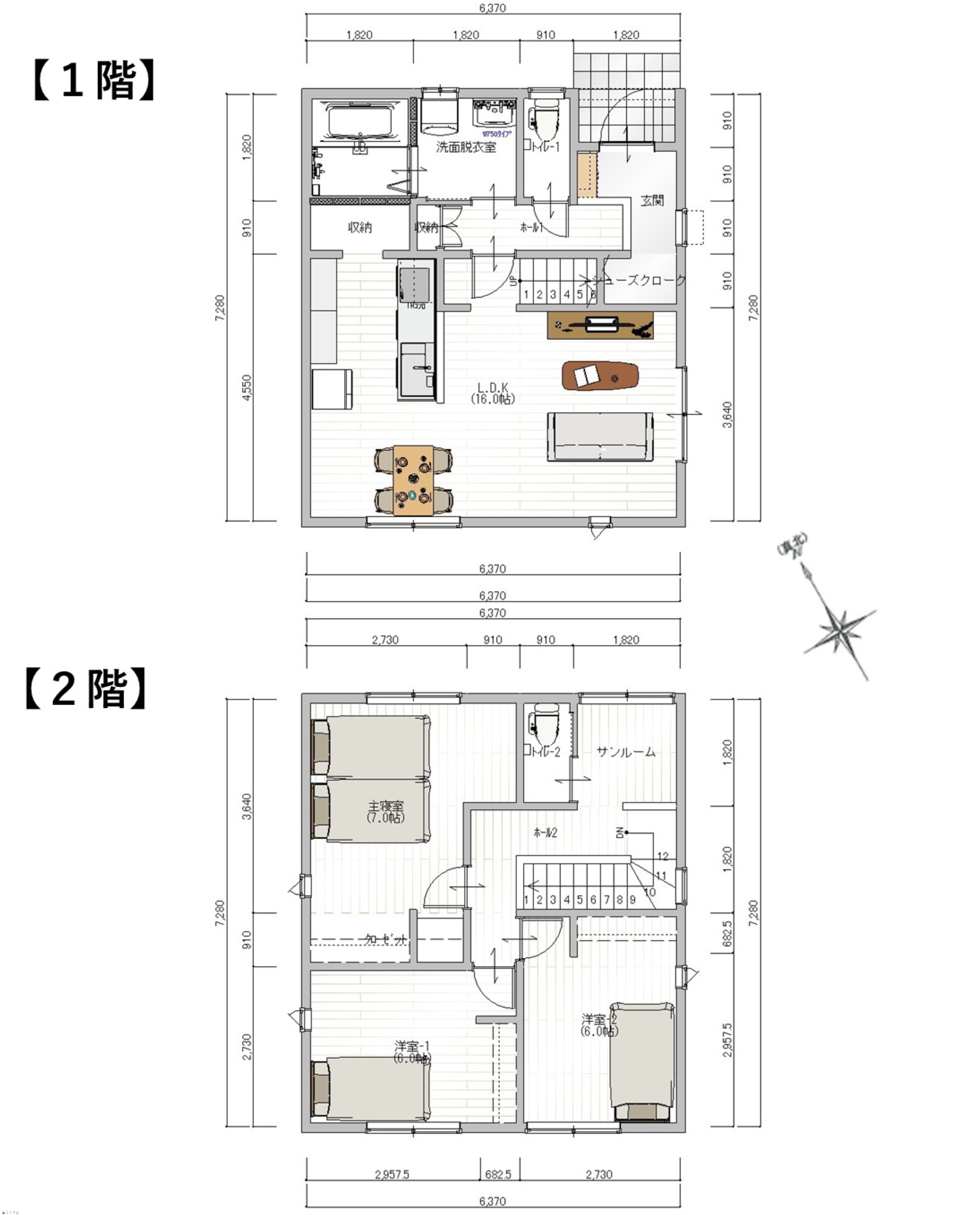
    :3LDK
  • 築年月
    :2023年12月
22,550,000
  • 【価格改定】今井2丁目B棟(学区:宮内小・宮内中)
    株式会社 高野不動産販売
  • この物件を問い合わせる/無料
  • TEL: 0258-33-7711

物件画像

外観 間取り
物件画像
※画像クリックで拡大表示
外観写真
物件画像
※画像クリックで拡大表示
2階各居室は全て角部屋となり2方向に窓があります。
詳細画像


物件概要

宮内小学校まで徒歩17分、宮内中学校まで徒歩15分です。
物件コード 00041-200831
物件名 【価格改定】今井2丁目B棟(学区:宮内小・宮内中)
交通 駅:信越線 宮内駅から徒歩20分、バス:今宮橋から徒歩5分
物件所在地 新潟県長岡市今井2丁目187-2
物件種別 新築一戸建て
構造 木造 階建 地上2階建
建ぺい率/容積率 50%/80%
建物面積 1階 44.71㎡/ 2階 46.37㎡/ 計 91.08㎡ /27.55坪
土地面積 150.44㎡ /45.5坪
築年月 2023年12月(築1年)
入居(引き渡し)時期 随時入居(引き渡し)可
用途地域 第1種低層住居専用地域 地目 宅地  (現状:宅地)
都市計画 市街化区域 学校区 宮内小学校(1,300m)・宮内中学校(1,200m)
形状 - 道路 北側/公道/幅員 約6.0m
私道 - その他の制限 外壁後退1.0m
  • 【価格改定】今井2丁目B棟(学区:宮内小・宮内中)
    株式会社 高野不動産販売
  • この物件を問い合わせる/無料
  • TEL: 0258-33-7711

物件詳細情報

所在階/階数 - 号室 -
販売価格 22,550,000円 方位
間取り 3LDK (洋室:7、6、6)
LDK16.0
専有面積 - バルコニー面積 -
その他面積 - 駐車場 -
管理費 - 修繕積立金 -
現況 空家
仲介手数料 なし
利用制限 -
設備 整形地、前面道路6m以上、日当り良好、閑静な住宅街、瑕疵担保保険付き、建物確認・完了検査済証あり、LDK15畳以上、全室フローリング、駐車場2台以上、庭あり、TVインターホン、複層ガラス、システムキッチン、IHクッキングヒーター、浄水器、食器洗浄乾燥機、追いだき機能付き、バス1坪以上、温水洗浄便座、シャワー付き洗面台、エアコン、24時間換気システム、オール電化、省エネ給湯、上水道、下水道、電気、全居室収納あり、BS端子、照明器具付き
取引態様 売主
備考 ■令和7年9月価格改定(旧価格2,355万円)
■キッチンには収納付で、食品や飲料のストック場所には困りません♪
■細かい収納が豊富で収納スペースには困りません♪
■2階には広々サンルームがあり、物干しスペースも充実♪

■宮内小学校、宮内中学校共に徒歩20分圏内です♪
■ウオロク要町店、クスリのアオキ西宮内店、車で5分圏内で買い物施設も充実♪

【月々5万円台~返済可能】
※借入額:2,355万円、借入年数:40年、金利:0.825%、銀行:第四北越銀行
以上の条件算出した場合月々返済額:58,165円
取り扱い会社

株式会社 高野不動産販売

新潟県長岡市柏町1丁目4-33

情報登録日 2025/09/29 次回更新予定日 2025/11/18
取引条件有効期限 2025/12/31
  • 【価格改定】今井2丁目B棟(学区:宮内小・宮内中)
    株式会社 高野不動産販売
  • この物件を問い合わせる/無料
  • TEL: 0258-33-7711

この物件の地図・周辺情報・行政情報

この物件の周辺情報・行政情報を詳しく見る
【周辺情報】
物件の近くにあるコンビニや銀行・学校など、アイコン付のマップで詳しく表示できます!
【行政情報】
水道料や下水道料・ガス料金など、暮らしに関係のある情報を表示しています。

担当取扱い店舗情報

取扱い店舗画像
株式会社 高野不動産販売
TEL: 0258-33-7711
所在地: 新潟県長岡市柏町1丁目4-33
交通: 長岡駅
営業時間: 9:00~17:30/定休日:土曜日・日曜日・祝日・お盆・年末年始
免許番号: 新潟県知事(1)第5568号 この会社の情報を詳しく見る
所属団体名: (公社)新潟県宅地建物取引業協会,(公社)首都圏不動産公正取引協議会,(公財)日本賃貸住宅管理協会
取引態様: 売主
ホームページ: https://www.tknf.co.jp