現在賃貸にてご入居中。オーナーチェンジ物件
| 物件名/所在地 | 詳細 | 価格
							 表面利回り  | 
						
|---|---|---|
| ドーン・レジデンス 412
														 412号室 新潟県長岡市宮内7丁目3番9号ドーン・レジデンス 412号  | 
							
								
  | 
							
															4,500,000円
																						 13.3% (満室想定時)  | 
						
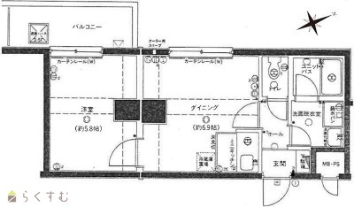
| 外観 | 間取り | 
|---|---|
								![]() ※画像クリックで拡大表示  | 
							
								![]() ※画像クリックで拡大表示  | 
						
| 詳細画像 | |
| 
								 | 
						|
| 物件コード | 00041-200755 | ||
|---|---|---|---|
| 物件名 | ドーン・レジデンス 412 | ||
| 交通 | 駅:上越新幹線 長岡駅から徒歩28分、バス:宮内7丁目から徒歩1分 | ||
| 物件所在地 | 新潟県長岡市宮内7丁目3番9号ドーン・レジデンス 412号 | ||
| 物件種別 | 投資物件・その他 | ||
| 物件区分 | マンション(区分所有) | ||
| 構造 | 鉄筋コン | 階建 | 地上9階建 | 
| 建ぺい率/容積率 | 60%/200% | ||
| 建物面積 | - | ||
| 土地面積 | - | ||
| 築年月 | 1992年8月(築33年) | ||
| 入居(引き渡し)時期 | 相談 | ||
| 用途地域 | 第1種住居地域 | 地目 | 宅地 (現状:宅地) | 
| 都市計画 | 市街化区域 | 学校区 | 宮内小学校・宮内中学校 | 
| 形状 | - | 道路 | - | 
| 私道 | - | その他の制限 | - | 
| 所在階/階数 | 4階/9階 | 号室 | 412号室 | 
|---|---|---|---|
| 販売価格 | 4,500,000円 | 方位 | - | 
| 表面利回り(満室想定時) | 13.3% | 満室想定年収 | 600,000円 (想定月収: 50,000円 ) | 
| 現行利回り | - | 現行年間年収 | - | 
| 住戸数 | 1 | ||
| 間取り | 1DK | ||
| 専有面積 | 30.87㎡ /9.33坪 ~ 30.87㎡ /9.33坪 | バルコニー面積 | 5.6㎡ /1.69坪 | 
| その他面積 | - | 駐車場 | - | 
| 管理費 | 7,100円 | 修繕積立金 | 3,550円 | 
| 現況 | 賃貸中 | ||
| 仲介手数料 | なし | ||
| 利用制限 | ペット:不可、楽器:不可 | ||
| 設備 | エレベーター | ||
| 取引態様 | 売主 | ||
| 備考 | ①水道子メーター制 ②ケーブルTV視聴料2,200円(税別)/月がかかります。  | 
						||
| 取り扱い会社 | 
								 株式会社 高野不動産販売 新潟県長岡市柏町1丁目4-33  | 
						||
| 情報登録日 | 2022/12/05 | 次回更新予定日 | 2025/11/18 | 
| 取引条件有効期限 | - | ||
| 
																		ローソン 長岡笹崎一丁目店(コンビニ)まで700m ウオロク 要町店(スーパー)まで700m ウエルシア長岡笹崎店(ドラッグストア)まで640m  | 
																
																		(生協)こどもクリニック(病院)まで940m さの整形外科クリニック(病院)まで670m 長岡宮原郵便局(郵便局)まで690m  | 
															
※カメラのアイコンがある場合は、マウスをポイントするとその施設の画像がご覧いただけます。
						| TEL: | 0258-33-7711 | |
|---|---|---|
| 所在地: | 新潟県長岡市柏町1丁目4-33 | |
| 交通: | 長岡駅 | |
| 営業時間: | 9:00~17:30/定休日:土曜日・日曜日・祝日・お盆・年末年始 | |
| 免許番号: | 新潟県知事(1)第5568号 | 
										
											 | 
								
| 所属団体名: | (公社)新潟県宅地建物取引業協会,(公社)首都圏不動産公正取引協議会,(公財)日本賃貸住宅管理協会 | |
| 取引態様: | 売主 | |
| ホームページ: | https://www.tknf.co.jp | |