物件掲載企業数:301|賃貸物件:3,262件|売買物件:3,252件|今週の登録物件:248
閲覧中のブラウザ(インターネットエクスプローラー)は非推奨ブラウザです。
物件が正しく表示されなかったり、正しく検索されない場合があります。最新のブラウザ(Google Chrome・Edgeなど)にてご利用お願いいたします。
  

新潟県長岡市黒津町58番地19 中古一戸建て 3LDK 25,980,000円の物件情報

☆価格改定しました☆★にいがた安心こむすび住宅★自社物件につき仲介手数料不要★3LDKフルリフォーム済み★カーポート2台分★二面接道(消雪パイプあり)で日当り・風通し良好★黒条小学校まで徒歩11分★お気軽にお問い合わせください★

物件名/所在地 詳細 価格
長岡市黒津町【3LDK フルリフォーム住宅】
新潟県長岡市黒津町58番地19
  • 土地面積
    :205.07㎡ /62.03坪
  • 建物面積
    :121.66㎡ /36.8坪
  • 間取り
    :3LDK
  • 築年月
    :2005年3月
25,980,000
  • 長岡市黒津町【3LDK フルリフォーム住宅】
    髙頭不動産 株式会社
  • この物件を問い合わせる/無料
  • TEL: 0120-1818-27

物件画像

外観 間取り
物件画像
※画像クリックで拡大表示
外観
物件画像
※画像クリックで拡大表示
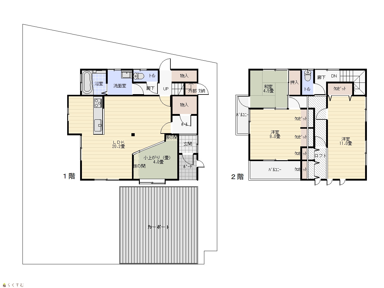
間取り
詳細画像
動画


物件概要

対面キッチン×LDK約20帖で家族とのコミュニケーションの場に♪小上がりスペースはお子様のリビング学習にも使えます♪2階洋室11帖は用途に合わせて分割可能♪
物件コード 00040-201161
物件名 長岡市黒津町【3LDK フルリフォーム住宅】
交通 駅:信越線 押切駅から徒歩45分、バス:黒条小学校前から徒歩11分
物件所在地 新潟県長岡市黒津町58番地19
物件種別 中古一戸建て
構造 木造 階建 地上2階建
建ぺい率/容積率 60%/200%
建物面積 1階 63.31㎡/ 2階 58.35㎡/ 計 121.66㎡ /36.8坪
土地面積 205.07㎡ /62.03坪
築年月 2005年3月(築21年)
入居(引き渡し)時期 随時入居(引き渡し)可
用途地域 第1種中高層住居専用地域 地目 宅地
都市計画 市街化区域 学校区 黒条小学校(604m)・堤岡中学校(906m)
形状 間口 12m 道路 東側 公道 幅員8m、西側 公道 幅員6m
私道 - その他の制限 -
  • 長岡市黒津町【3LDK フルリフォーム住宅】
    髙頭不動産 株式会社
  • この物件を問い合わせる/無料
  • TEL: 0120-1818-27

物件詳細情報

所在階/階数 - 号室 -
販売価格 25,980,000円 方位
間取り 3LDK (和室:4.5畳) (洋室:11、8)
LDK20.2
専有面積 - バルコニー面積 -
その他面積  小上がり(畳)4帖 駐車場 -
管理費 - 修繕積立金 -
現況 空家
仲介手数料 なし
利用制限 -
設備 日当り良好、新築時図面あり、インスペクション報告書あり、瑕疵担保保険付き、LDK15帖以上、駐車2台可能、TVインターホン、複層ガラス、デインプルキー、システムキッチン、カウンターキッチン、IHクッキングヒーター、3口コンロ、追いだき機能付き、バス1坪以上、温水洗浄便座、トイレ2か所以上、シャワー付き洗面台、エアコンあり、オール電化、都市ガス、上水道、下水道、全居室収納あり、床下収納、内装リフォーム済み、外装リフォーム済み、即引き渡し可能
取引態様 売主
備考 ■にいがた安心こむすび住宅推進事業 適用住宅■
 この住宅は、新潟県の「にいがた安心こむすび住宅推進事業」の補助対象となっている子育て世帯に優しいフルリフォーム住宅です。この住宅販売対象は子育て世帯等*のみとなっております。
 *子育て世帯等
  子育て世帯:売買契約時に15歳以下の子を有する世帯
  若者夫婦世帯:売買契約時に、夫婦いずれかが39歳以下の世帯

■リフォーム内容■
<外装関連>カーポート新設(並列2台)、屋根・外壁塗装、バルコニー防水塗膜工事
<内装・1階>フローリング上貼り、CF上貼り、壁紙全交換、LED照明器具全交換、カーテンレール一部交換、天井換気扇・給気口交換、畳表替え、システムキッチン入替、システムバス入替、洗面化粧台入替、トイレ入替、エコキュート入替
<内装・2階>壁紙全交換、LED照明器具全交換、畳表替え、カーテンレール一部交換、和→洋室変更、オープンクローゼット新設、トイレ入替
取り扱い会社

髙頭不動産 株式会社

新潟県長岡市千歳1-3-25

情報登録日 2026/03/27 次回更新予定日 2026/06/06
取引条件有効期限 2026/01/14
  • 長岡市黒津町【3LDK フルリフォーム住宅】
    髙頭不動産 株式会社
  • この物件を問い合わせる/無料
  • TEL: 0120-1818-27

この物件の地図・周辺情報・行政情報

この物件の周辺情報・行政情報を詳しく見る
【周辺情報】
物件の近くにあるコンビニや銀行・学校など、アイコン付のマップで詳しく表示できます!
【行政情報】
水道料や下水道料・ガス料金など、暮らしに関係のある情報を表示しています。
セブン-イレブン 長岡高見町店(コンビニ)まで730m
黒条内科・消化器クリニック(病院)まで850m

※カメラのアイコンがある場合は、マウスをポイントするとその施設の画像がご覧いただけます。


担当取扱い店舗情報

取扱い店舗画像
髙頭不動産 株式会社
TEL: 0120-1818-27
所在地: 新潟県長岡市千歳1-3-25
交通: 長岡駅
営業時間: 8時30分~17時30分(大手支店は9時~18時)/定休日:本社:土日祝日(事前予約での対応可能)、支店:日曜祝日第5土曜(毎年2月下旬から3月は休みなし)
免許番号: 新潟県知事(17)第191号 この会社の情報を詳しく見る
所属団体名: 新潟県宅地建物取引協会 長岡支部
取引態様: 売主
ホームページ: http://www.takato-f.com