物件掲載企業数:295|賃貸物件:3,617件|売買物件:3,315件|今週の登録物件:212
閲覧中のブラウザ(インターネットエクスプローラー)は非推奨ブラウザです。
物件が正しく表示されなかったり、正しく検索されない場合があります。最新のブラウザ(Google Chrome・Edgeなど)にてご利用お願いいたします。
  

新潟県長岡市江陽2-12-21 中古一戸建て 4LDK 15,000,000円の物件情報

事務所併用住宅です。1階は事務所仕様となっており、フリースペースとしてご使用いただけます。

物件名/所在地 詳細 価格
江陽売住宅
新潟県長岡市江陽2-12-21
  • 土地面積
    :225㎡ /68.06坪
  • 建物面積
    :203.77㎡ /61.64坪
  • 間取り
    :4LDK
  • 築年月
    :1985年5月
15,000,000
  • 江陽売住宅
    髙頭不動産 株式会社
  • この物件を問い合わせる/無料
  • TEL: 0120-1818-27

物件画像

外観 間取り
物件画像
※画像クリックで拡大表示
外観
物件画像
※画像クリックで拡大表示
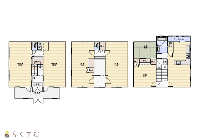
間取り
詳細画像


物件概要

駐車スペースは4台~5台、消雪設備あります。
物件コード 00040-201135
物件名 江陽売住宅
交通 バス:堤町から徒歩2分
物件所在地 新潟県長岡市江陽2-12-21
物件種別 中古一戸建て
構造 鉄骨 階建 地上3階建
建ぺい率/容積率 80%/200%
建物面積 1階 66.24㎡/ 2階 66.24㎡/ 3階 71.29㎡/ 計 203.77㎡ /61.64坪
土地面積 225㎡ /68.06坪
築年月 1985年5月(築40年)
入居(引き渡し)時期 随時入居(引き渡し)可
用途地域 近隣商業地域 地目 宅地  (現状:宅地)
都市計画 市街化区域 学校区 上川西小学校(639m)・江陽中学校(465m)
形状 間口 10m × 奥行 21m 道路 公道
私道 - その他の制限 準防火地域
  • 江陽売住宅
    髙頭不動産 株式会社
  • この物件を問い合わせる/無料
  • TEL: 0120-1818-27

物件詳細情報

所在階/階数 - 号室 -
販売価格 15,000,000円 方位
間取り 4LDK (和室:6畳) (洋室:7、14.5、14.5)
LDK13
1階事務所仕様スペースあり。 サンルームあり。
専有面積 - バルコニー面積 -
その他面積 - 駐車場 -
管理費 - 修繕積立金 -
現況 -
仲介手数料 561,000円
利用制限 -
設備 日当り良好、駐車3台以上可能、駐車場融雪設備あり、システムキッチン、都市ガス、上水道、下水道、即引き渡し可能、事業向け
取引態様 専任
備考 増築部分は未登記です。
陽当たりの良い住宅です。
取り扱い会社

髙頭不動産 株式会社

新潟県長岡市千歳1-3-25

情報登録日 2025/07/01 次回更新予定日 2025/11/19
取引条件有効期限 2025/09/26
  • 江陽売住宅
    髙頭不動産 株式会社
  • この物件を問い合わせる/無料
  • TEL: 0120-1818-27

この物件の地図・周辺情報・行政情報

この物件の周辺情報・行政情報を詳しく見る
【周辺情報】
物件の近くにあるコンビニや銀行・学校など、アイコン付のマップで詳しく表示できます!
【行政情報】
水道料や下水道料・ガス料金など、暮らしに関係のある情報を表示しています。
セブン-イレブン 長岡堤町店(コンビニ)まで270m
JAえちご中越 上川西支店(銀行)まで150m
第四北越銀行 江陽支店(銀行)まで560m
大光銀行 長岡西支店(銀行)まで540m
長岡信用金庫 江陽支店(銀行)まで730m
上川西簡易郵便局(郵便局)まで270m

※カメラのアイコンがある場合は、マウスをポイントするとその施設の画像がご覧いただけます。


担当取扱い店舗情報

取扱い店舗画像
髙頭不動産 株式会社
TEL: 0120-1818-27
所在地: 新潟県長岡市千歳1-3-25
交通: 長岡駅
営業時間: 8時30分~17時30分(大手支店は9時~18時)/定休日:本社:土日祝日(事前予約での対応可能)、支店:日曜祝日第5土曜(毎年2月下旬から3月は休みなし)
免許番号: 新潟県知事(17)第191号 この会社の情報を詳しく見る
所属団体名: 新潟県宅地建物取引協会 長岡支部
取引態様: 専任
ホームページ: http://www.takato-f.com