物件掲載企業数:299|賃貸物件:3,597件|売買物件:3,321件|今週の登録物件:263
閲覧中のブラウザ(インターネットエクスプローラー)は非推奨ブラウザです。
物件が正しく表示されなかったり、正しく検索されない場合があります。最新のブラウザ(Google Chrome・Edgeなど)にてご利用お願いいたします。
  

新潟県長岡市前田2丁目8-16 中古一戸建て 5LDK 42,000,000円の物件情報

【更に価格改定しました!】4,500万円(R7.3.24)→4,200万円(R7.9.22)三井ホーム様施工の南西角地、5LDKの広々住宅です!前面道路が融雪道路、2台分電動シャッター付インナーガレージで冬場も安心です☆彡

物件名/所在地 詳細 価格
前田二丁目 売住宅
新潟県長岡市前田2丁目8-16
  • 土地面積
    :396.7㎡ /120坪
  • 建物面積
    :345.29㎡ /104.45坪
  • 間取り
    :5LDK
  • 築年月
    :1999年11月
42,000,000
  • 前田二丁目 売住宅
    髙頭不動産 株式会社
  • この物件を問い合わせる/無料
  • TEL: 0120-1818-27

物件画像

外観 間取り
物件画像
※画像クリックで拡大表示
外観
物件画像
※画像クリックで拡大表示
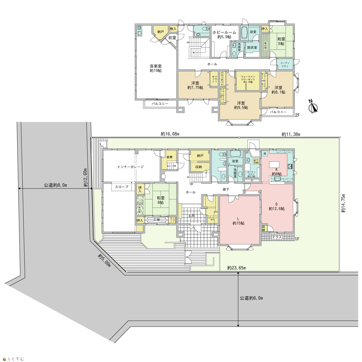
間取
詳細画像
動画


物件概要

2階にも洗面所・浴室・トイレがあり、2世帯としてもお住まいになれます♪
物件コード 00040-201012
物件名 前田二丁目 売住宅
交通 駅:信越線 長岡駅から徒歩24分、バス:前田町から徒歩3分
物件所在地 新潟県長岡市前田2丁目8-16
物件種別 中古一戸建て
構造 木造 階建 地上2階建
建ぺい率/容積率 70%/200%
建物面積 1階 190.05㎡/ 2階 155.24㎡/ 計 345.29㎡ /104.45坪
土地面積 396.7㎡ /120坪
築年月 1999年11月(築25年)
入居(引き渡し)時期 相談
用途地域 第1種中高層住居専用地域 地目 宅地  (現状:宅地)
都市計画 市街化区域 学校区 四郎丸小学校(551m)・南中学校(1,409m)
形状 間口 23.6m × 奥行 14.7m 道路 南側 公道 幅員約6m、西側 公道 幅員約8m
私道 - その他の制限 -
  • 前田二丁目 売住宅
    髙頭不動産 株式会社
  • この物件を問い合わせる/無料
  • TEL: 0120-1818-27

物件詳細情報

所在階/階数 - 号室 -
販売価格 42,000,000円 方位
間取り 5LDK (和室:8畳、6畳) (洋室:9.5、8.1、7.75)
L15 D12.6 K8
音楽室19帖、ホビールーム5.9帖、納戸あり
専有面積 - バルコニー面積 -
その他面積 - 駐車場 -
管理費 - 修繕積立金 -
現況 空家
仲介手数料 1,452,000円
利用制限 -
設備 角地、日当り良好、閑静な住宅街、スーパー近く、フラット35S適合、修繕記録あり、瑕疵担保保険付き、LDK15帖以上、駐車2台可能、南向き、TVインターホン、複層ガラス、食器洗浄乾燥機、3口コンロ、追いだき機能付き、バス1坪以上、温水洗浄便座、トイレ2か所以上、都市ガス、上水道、下水道、ウォークインクローゼット、全居室収納あり、シューズBOX、シューズインクローゼット、2世帯向き
取引態様 一般
備考 ※第二種高度地区、建築基準法第22条区域、まちなか居住区域に該当します。
取り扱い会社

髙頭不動産 株式会社

新潟県長岡市千歳1-3-25

情報登録日 2025/09/29 次回更新予定日 2025/10/25
取引条件有効期限 2025/06/06
  • 前田二丁目 売住宅
    髙頭不動産 株式会社
  • この物件を問い合わせる/無料
  • TEL: 0120-1818-27

この物件の地図・周辺情報・行政情報

この物件の周辺情報・行政情報を詳しく見る
【周辺情報】
物件の近くにあるコンビニや銀行・学校など、アイコン付のマップで詳しく表示できます!
【行政情報】
水道料や下水道料・ガス料金など、暮らしに関係のある情報を表示しています。

担当取扱い店舗情報

取扱い店舗画像
髙頭不動産 株式会社
TEL: 0120-1818-27
所在地: 新潟県長岡市千歳1-3-25
交通: 長岡駅
営業時間: 8時30分~17時30分(大手支店は9時~18時)/定休日:本社:土日祝日(事前予約での対応可能)、支店:日曜祝日第5土曜(毎年2月下旬から3月は休みなし)
免許番号: 新潟県知事(17)第191号 この会社の情報を詳しく見る
所属団体名: 新潟県宅地建物取引協会 長岡支部
取引態様: 一般
ホームページ: http://www.takato-f.com