物件掲載企業数:297|賃貸物件:3,610件|売買物件:3,333件|今週の登録物件:272
閲覧中のブラウザ(インターネットエクスプローラー)は非推奨ブラウザです。
物件が正しく表示されなかったり、正しく検索されない場合があります。最新のブラウザ(Google Chrome・Edgeなど)にてご利用お願いいたします。
  

新潟県柏崎市四谷2丁目2-11 投資物件・その他 33,000,000円の物件情報

エレベーター、配膳用昇降機あり

物件名/所在地 詳細 価格
表面利回り
四谷2丁目 割烹・料亭向き
新潟県柏崎市四谷2丁目2-11
  • 土地面積
    :654.54㎡ /197.99坪
  • 建ぺい率
    :60%
  • 容積率
    :200%
33,000,000
-
  • 四谷2丁目 割烹・料亭向き
    株式会社 ai-will
  • この物件を問い合わせる/無料
  • TEL: 0257-35-5370

物件画像

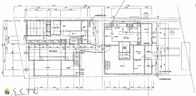
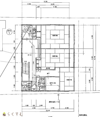
外観 間取り
物件画像
※画像クリックで拡大表示
外観
物件画像
※画像クリックで拡大表示
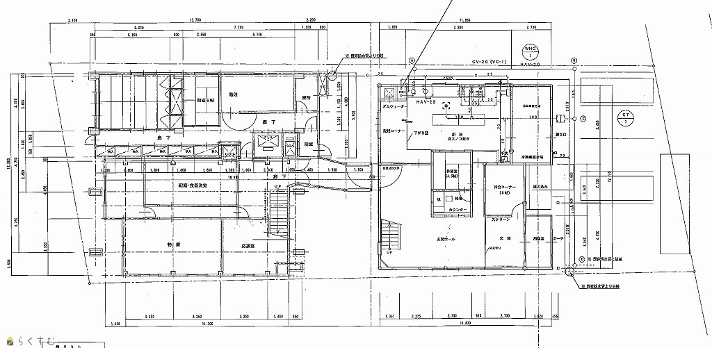
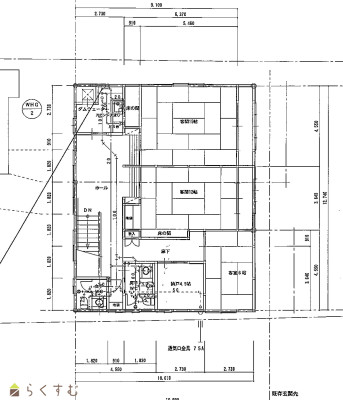
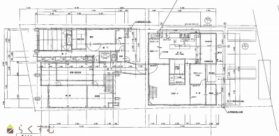
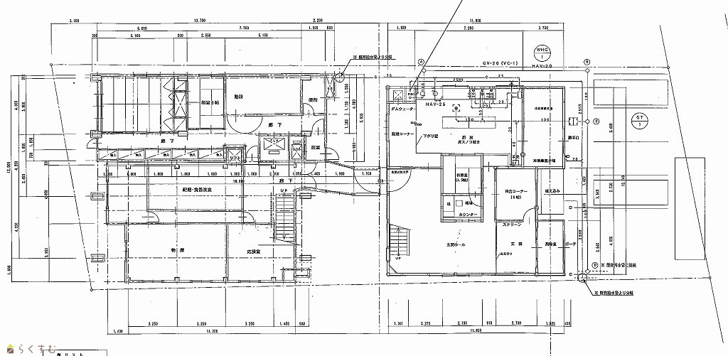
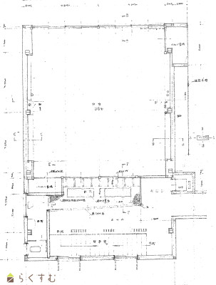
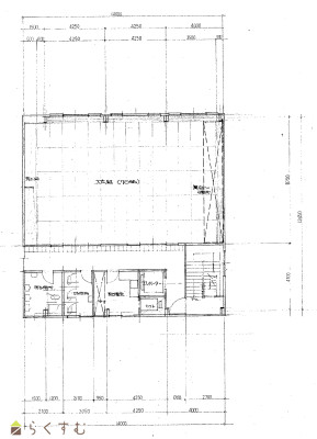
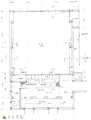
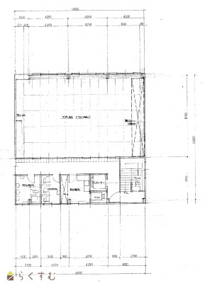
1階平面図
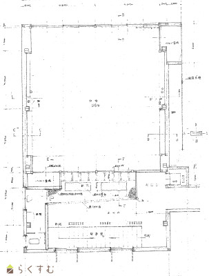
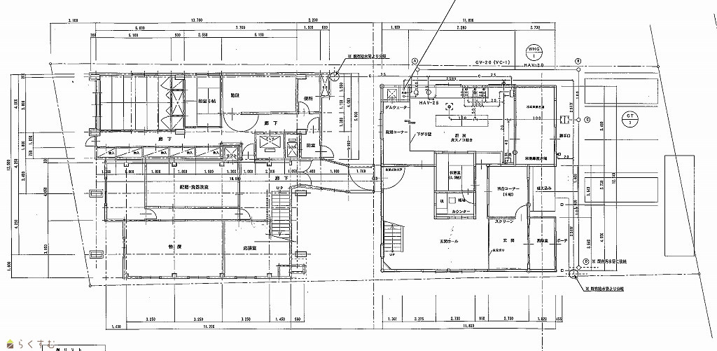
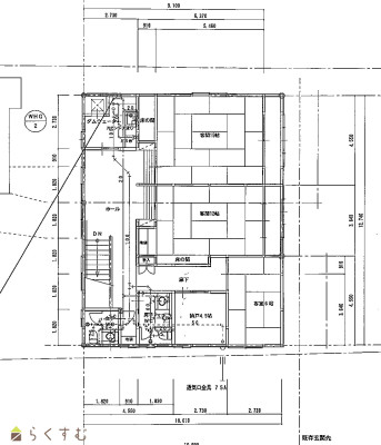
詳細画像


物件概要

手前が2階建、奥が4階建て 渡り廊下で繋がっています
物件コード 00037-200171
物件名 四谷2丁目 割烹・料亭向き
交通 駅:越後線 東柏崎駅から徒歩9分、バス:四谷から徒歩2分
物件所在地 新潟県柏崎市四谷2丁目2-11
物件種別 投資物件・その他
物件区分 その他
構造 鉄骨 階建 地上4階建
建ぺい率/容積率 60%/200%
建物面積 1階 457.66㎡/ 2階 392.74㎡/ 3階 197.23㎡/ 4階 186.32㎡/ 計 1,233.95㎡ /373.26坪
土地面積 654.54㎡ /197.99坪
築年月 1967年1月(築58年)
入居(引き渡し)時期 相談
用途地域 第1種住居地域 地目 宅地  (現状:宅地)
都市計画 非線引き都市計画区域 学校区 比角小学校(232m)・第二中学校(247m)
形状 - 道路 北側県道
私道 - その他の制限 -
  • 四谷2丁目 割烹・料亭向き
    株式会社 ai-will
  • この物件を問い合わせる/無料
  • TEL: 0257-35-5370

物件詳細情報

所在階/階数 - 号室 -
販売価格 33,000,000円 方位 -
表面利回り(満室想定時) - 満室想定年収 - (想定月収: - )
現行利回り - 現行年間年収 -
住戸数 -
間取り -
専有面積 - バルコニー面積 -
その他面積 - 駐車場 4~5台可能
管理費 - 修繕積立金 -
現況 指定なし
仲介手数料 1,155,000円
利用制限 -
設備 エレベーター、駐車場(近隣含む)、公営水道、下水道、事業向け
取引態様 一般
備考 築年月は目安です。  
新館2階建、旧館4階建て鉄骨造
取り扱い会社

株式会社 ai-will

新潟県柏崎市田中10-31

情報登録日 2025/07/12 次回更新予定日 2026/01/13
取引条件有効期限 2025/12/31
  • 四谷2丁目 割烹・料亭向き
    株式会社 ai-will
  • この物件を問い合わせる/無料
  • TEL: 0257-35-5370

この物件の地図・周辺情報・行政情報

この物件の周辺情報・行政情報を詳しく見る
【周辺情報】
物件の近くにあるコンビニや銀行・学校など、アイコン付のマップで詳しく表示できます!
【行政情報】
水道料や下水道料・ガス料金など、暮らしに関係のある情報を表示しています。
セブン-イレブン 柏崎四谷3丁目店(コンビニ)まで420m
クスリのアオキ 柏崎中央店(ドラッグストア)まで570m
柏崎信用金庫 四谷支店(銀行)まで70m
大光銀行 柏崎南支店(銀行)まで520m
柏崎四谷郵便局(郵便局)まで70m

※カメラのアイコンがある場合は、マウスをポイントするとその施設の画像がご覧いただけます。


担当取扱い店舗情報

取扱い店舗画像
株式会社 ai-will
TEL: 0257-35-5370
所在地: 新潟県柏崎市田中10-31
交通: 国道8号線よりすぐ
営業時間: 平日9:00~18:00土日祝10:00~16:0/定休日:当社規定 (お盆・年末年始・GW)
免許番号: 新潟県知事(4)4821号 この会社の情報を詳しく見る
所属団体名: 新潟県宅地建物取引協会 柏崎支部
取引態様: 一般
ホームページ: http://www.ai-will.co.jp/