物件掲載企業数:295|賃貸物件:3,620件|売買物件:3,318件|今週の登録物件:227
閲覧中のブラウザ(インターネットエクスプローラー)は非推奨ブラウザです。
物件が正しく表示されなかったり、正しく検索されない場合があります。最新のブラウザ(Google Chrome・Edgeなど)にてご利用お願いいたします。
  

新潟県西蒲原郡弥彦村山崎1256-9 中古一戸建て 4LDK 9,500,000円の物件情報

小学校に近いです。

物件名/所在地 詳細 価格
弥彦村大字山崎中古住宅
新潟県西蒲原郡弥彦村山崎1256-9
  • 土地面積
    :157.22㎡ /47.55坪
  • 建物面積
    :99.36㎡ /30.05坪
  • 間取り
    :4LDK
  • 築年月
    :1999年7月
9,500,000
  • 弥彦村大字山崎中古住宅
    青旺不動産 株式会社
  • この物件を問い合わせる/無料
  • TEL: 0258-47-8113

物件画像

外観 間取り
物件画像
※画像クリックで拡大表示
外観
物件画像
※画像クリックで拡大表示
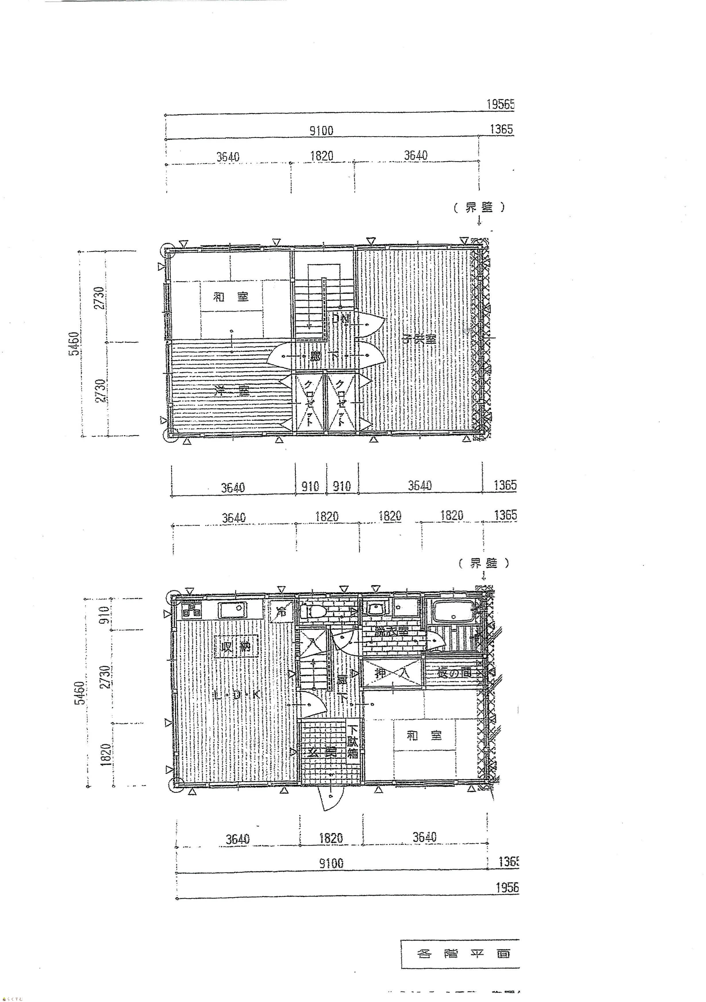
間取り図
詳細画像


物件概要

物件コード 00032-200114
物件名 弥彦村大字山崎中古住宅
交通 駅:弥彦線 矢作駅から徒歩9分、バス:水道町から徒歩35分
物件所在地 新潟県西蒲原郡弥彦村山崎1256-9
物件種別 中古一戸建て
構造 木造 階建 地上2階建
建ぺい率/容積率 70%/200%
建物面積 1階 49.68㎡/ 2階 49.68㎡/ 計 99.36㎡ /30.05坪
土地面積 157.22㎡ /47.55坪
築年月 1999年7月(築26年)
入居(引き渡し)時期 随時入居(引き渡し)可
用途地域 用途の指定のない地域 地目 宅地  (現状:宅地)
都市計画 市街化区域 学校区 弥彦小学校(227m)・弥彦中学校(721m)
形状 間口 2.6m × 奥行 18.5m 道路 私道
私道 接道は私道(位置指定道路)の為所有権(1/2)を取得します。 その他の制限 -
  • 弥彦村大字山崎中古住宅
    青旺不動産 株式会社
  • この物件を問い合わせる/無料
  • TEL: 0258-47-8113

物件詳細情報

所在階/階数 - 号室 -
販売価格 9,500,000円 方位 南西
間取り 4LDK (和室:6畳、6畳) (洋室:6、12)
12
専有面積 - バルコニー面積 -
その他面積 - 駐車場 -
管理費 - 修繕積立金 -
現況 空家
仲介手数料 379,500円
利用制限 -
設備 日当り良好、閑静な住宅街、駐車3台以上可能、ガスコンロ設置可能、追いだき機能付き、温水洗浄便座、シャワー付き洗面台、エアコンあり、都市ガス、上水道、下水道、床下収納、シューズBOX、内装リフォーム済み、即引き渡し可能
取引態様 一般
備考 旗竿地ですので縦列駐車となります。
取り扱い会社

青旺不動産 株式会社

新潟県長岡市関原町1-5335

情報登録日 2025/04/28 次回更新予定日 2025/11/18
取引条件有効期限 2025/07/25
  • 弥彦村大字山崎中古住宅
    青旺不動産 株式会社
  • この物件を問い合わせる/無料
  • TEL: 0258-47-8113

この物件の地図・周辺情報・行政情報

この物件の周辺情報・行政情報を詳しく見る
【周辺情報】
物件の近くにあるコンビニや銀行・学校など、アイコン付のマップで詳しく表示できます!
【行政情報】
水道料や下水道料・ガス料金など、暮らしに関係のある情報を表示しています。
JA新潟かがやき 弥彦支店(銀行)まで660m

※カメラのアイコンがある場合は、マウスをポイントするとその施設の画像がご覧いただけます。


担当取扱い店舗情報

取扱い店舗画像
青旺不動産 株式会社
TEL: 0258-47-8113
所在地: 新潟県長岡市関原町1-5335
交通:
営業時間: 9:00~18:00/定休日:日曜・祭日
免許番号: 新潟県知事(4)4890号 この会社の情報を詳しく見る
所属団体名: 公益社団法人 全日本不動産協会
取引態様: 一般
ホームページ: http://www.seiou-re.co.jp