国道117号線に面する好立地 賃貸として貸出し中の為、投資物件にもおすすめ♪ 敷地内17台駐車可能、融雪設備有り
| 物件名/所在地 | 詳細 | 価格
							 表面利回り  | 
						
|---|---|---|
| 小千谷 平沢テナント
														 新潟県小千谷市平沢2丁目789番地2  | 
							
								
  | 
							
															49,800,000円
																						 -  | 
						
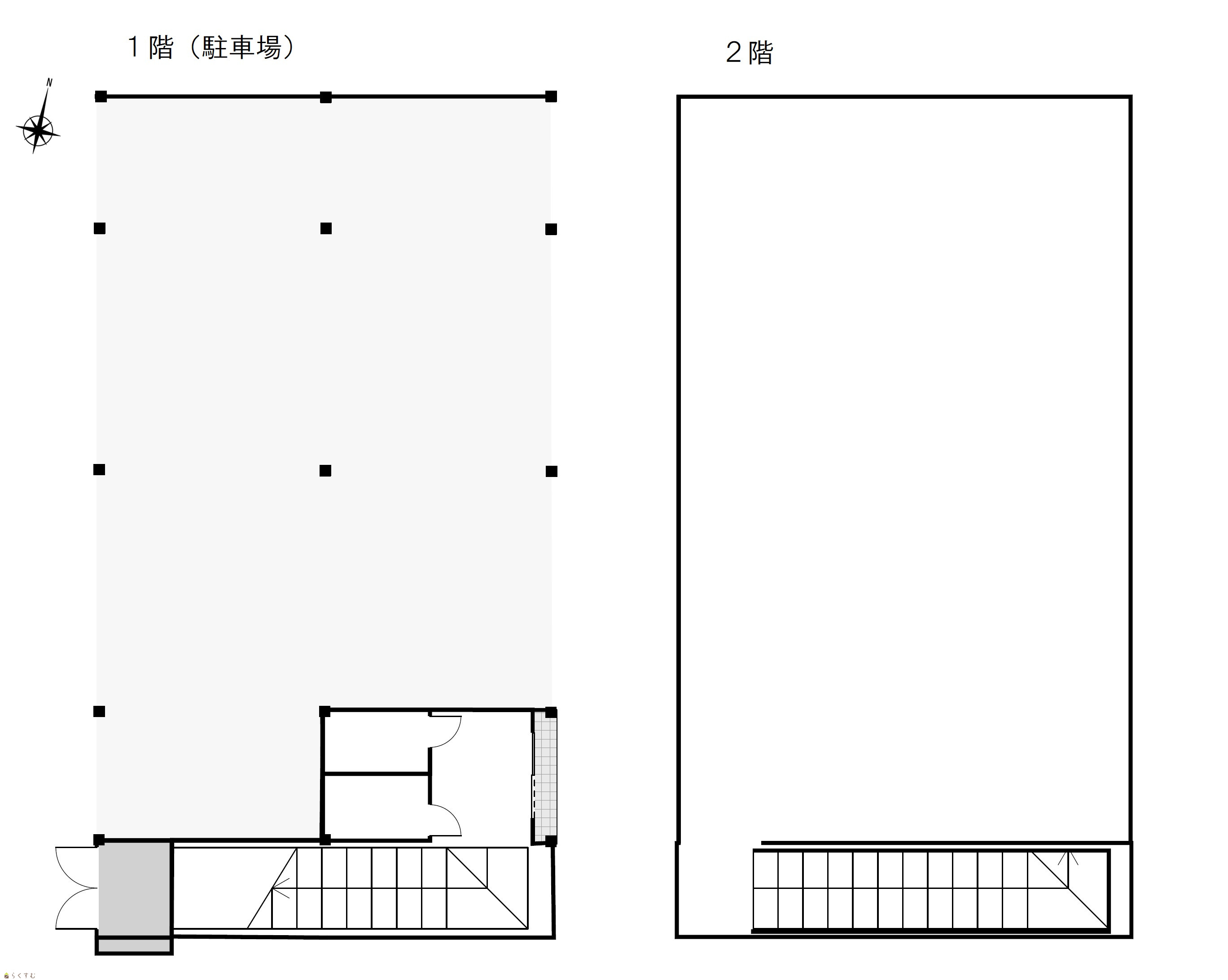
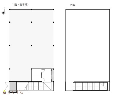
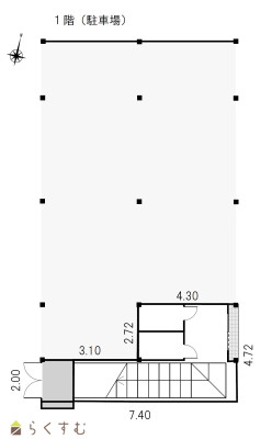
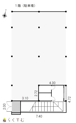
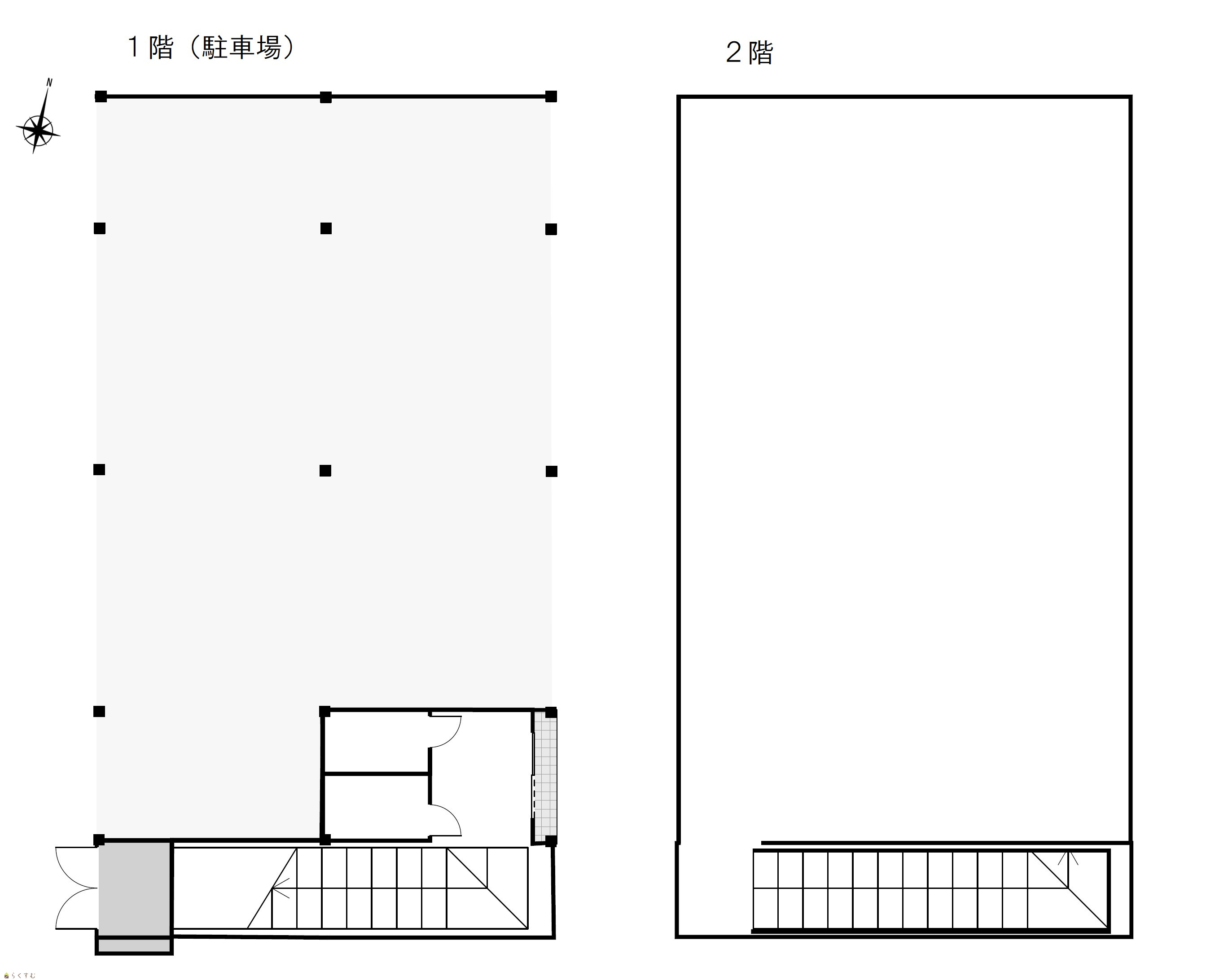
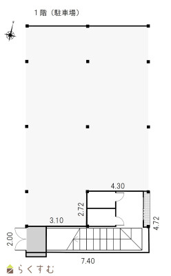
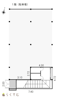
| 外観 | 間取り | 
|---|---|
| 
								 ※画像クリックで拡大表示 外観 
							 | 
							
								![]() ※画像クリックで拡大表示 間取図 
							 | 
						
| 詳細画像 | |
| 
								 | 
						|
| 交通量の多い道路に面している為、商業利用に最適♪築浅の為、内観も綺麗です♪ | |||
| 物件コード | 00024-200851 | ||
|---|---|---|---|
| 物件名 | 小千谷 平沢テナント | ||
| 交通 | 駅:上越線 小千谷駅から徒歩39分、バス:平沢町から徒歩4分 | ||
| 物件所在地 | 新潟県小千谷市平沢2丁目789番地2 | ||
| 物件種別 | 投資物件・その他 | ||
| 物件区分 | その他 | ||
| 構造 | 鉄骨 | 階建 | 地上2階建 | 
| 建ぺい率/容積率 | 60%/200% | ||
| 建物面積 | 1階 26.49㎡/ 2階 164.5㎡/ 計 190.99㎡ /57.77坪 | ||
| 土地面積 | 409㎡ /123.72坪 | ||
| 築年月 | 2011年10月(築14年) | ||
| 入居(引き渡し)時期 | 相談 | ||
| 用途地域 | 準住居地域 | 地目 | 宅地 | 
| 都市計画 | 非線引き都市計画区域 | 学校区 | 小千谷小学校(1,279m)・小千谷中学校(668m) | 
| 形状 | - | 道路 | 国道117号線 幅員18m | 
| 私道 | - | その他の制限 | - | 
| 所在階/階数 | - | 号室 | - | 
|---|---|---|---|
| 販売価格 | 49,800,000円 | 方位 | - | 
| 表面利回り(満室想定時) | - | 満室想定年収 | - (想定月収: - ) | 
| 現行利回り | - | 現行年間年収 | - | 
| 住戸数 | - | ||
| 間取り | - | ||
| 専有面積 | - | バルコニー面積 | - | 
| その他面積 | - | 駐車場 | 屋外6台、屋根付11台 | 
| 管理費 | - | 修繕積立金 | - | 
| 現況 | 賃貸中 | ||
| 仲介手数料 | 1,650,000円 | ||
| 利用制限 | - | ||
| 設備 | 角地、南側道路面す、駐車場(近隣含む)、事業向け | ||
| 取引態様 | 一般 | ||
| 備考 | ・現況有姿でのお引渡しと致します。 ・公簿面積売買と致します。 ・現在賃貸中 ・内見をご希望の方は事前にご連絡下さい。  | 
						||
| 取り扱い会社 | 
								 株式会社 エヌ・アール・ケー総合企画 新潟県長岡市与板町与板119番地  | 
						||
| 情報登録日 | 2024/04/19 | 次回更新予定日 | 2025/11/18 | 
| 取引条件有効期限 | 2030/09/30 | ||
| TEL: | 0258-41-5336 | |
|---|---|---|
| 所在地: | 新潟県長岡市与板町与板119番地 | |
| 交通: | ||
| 営業時間: | 9:30~17:30/定休日:土日・祝祭日 (電話対応しております) | |
| 免許番号: | 新潟県知事(4)第4750号 | 
										
											 | 
								
| 所属団体名: | 新潟県宅地建物取引業協会 長岡支部 | |
| 取引態様: | 一般 | |
| ホームページ: | http://www.nrk-sogo.jp | |