物件掲載企業数:301|賃貸物件:3,261件|売買物件:3,251件|今週の登録物件:246
閲覧中のブラウザ(インターネットエクスプローラー)は非推奨ブラウザです。
物件が正しく表示されなかったり、正しく検索されない場合があります。最新のブラウザ(Google Chrome・Edgeなど)にてご利用お願いいたします。
  

新潟県長岡市十日町1228番4 中古一戸建て 4LDK 23,000,000円の物件情報

築浅中古住宅♪小学校隣で通学も楽々♪敷地も広々、カーポート2台付

物件名/所在地 詳細 価格
【中古住宅】長岡市十日町 中古住宅
新潟県長岡市十日町1228番4
  • 土地面積
    :251.84㎡ /76.18坪
  • 建物面積
    :115.66㎡ /34.98坪
  • 間取り
    :4LDK
  • 築年月
    :2018年1月
23,000,000
  • 【中古住宅】長岡市十日町 中古住宅
    有限会社 ABCホーム
  • この物件を問い合わせる/無料
  • TEL: 0258-35-6682

物件画像

外観 間取り
物件画像
※画像クリックで拡大表示
外観
物件画像
※画像クリックで拡大表示
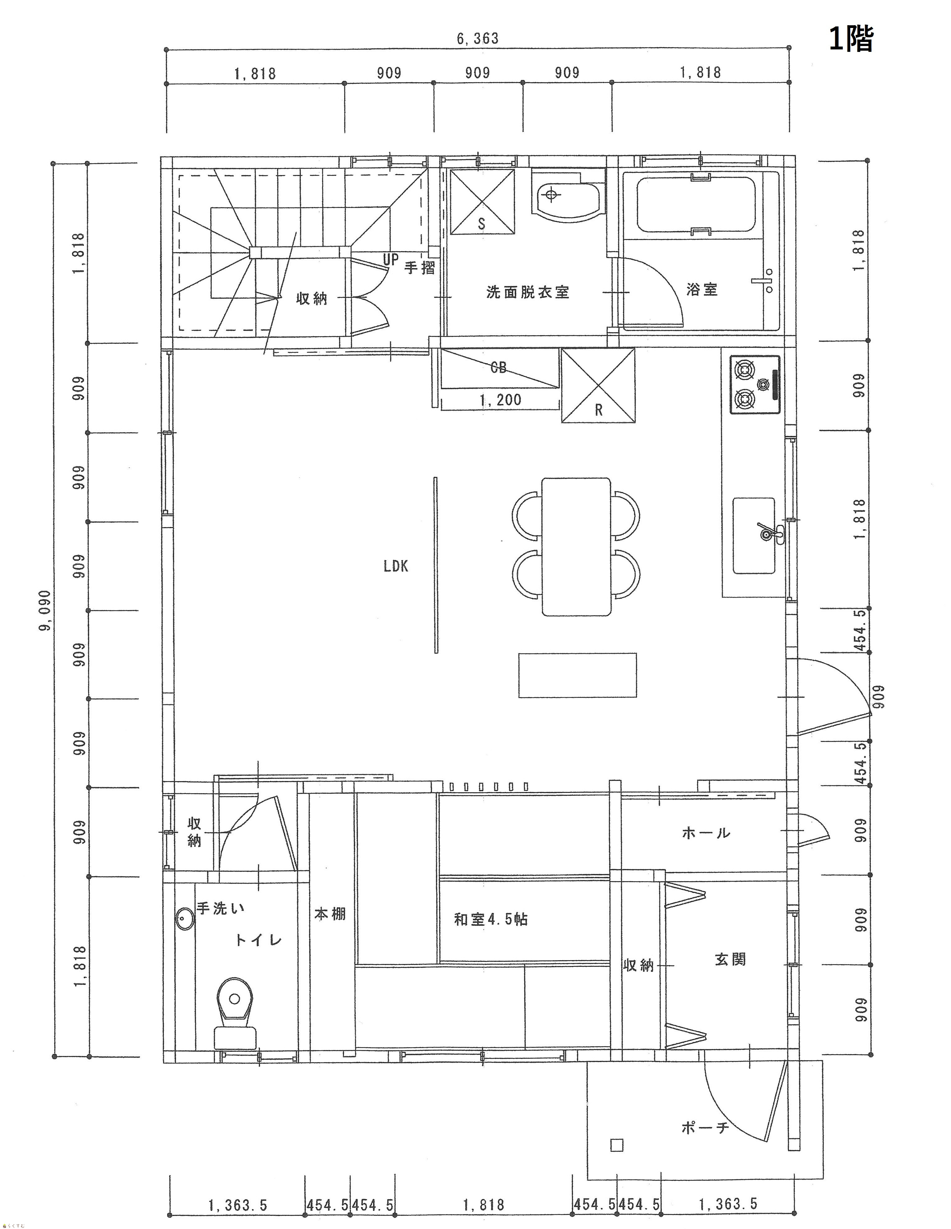
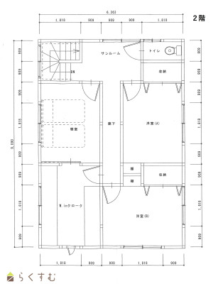
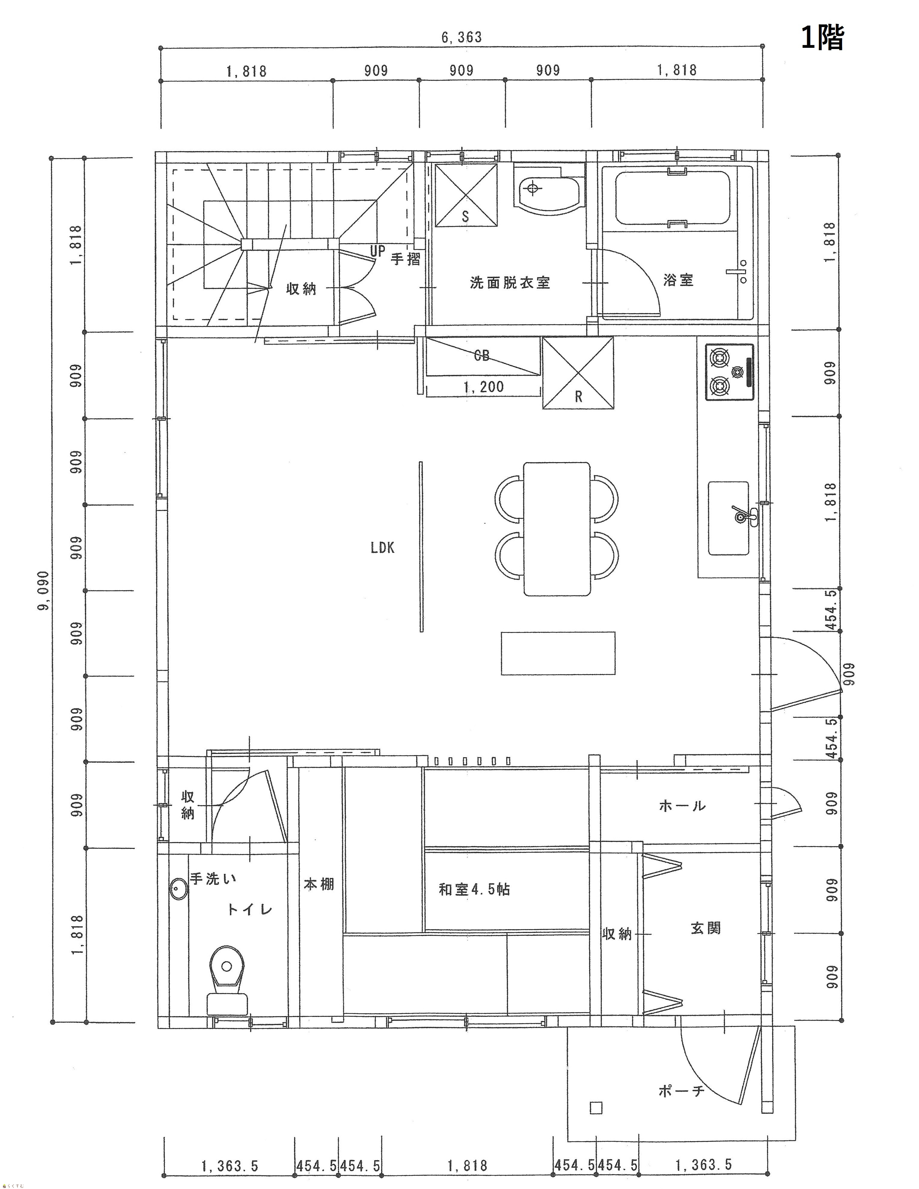
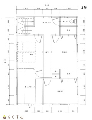
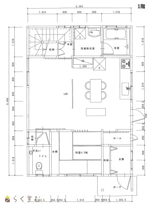
1階 平面図
詳細画像


物件概要

敷地の一部はアンテナ基地局として借地しております。※賃料については調査中
物件コード 00017-200357
物件名 【中古住宅】長岡市十日町 中古住宅
交通 駅:上越線 越後滝谷駅から徒歩29分、バス:十日町局前から徒歩3分
物件所在地 新潟県長岡市十日町1228番4
物件種別 中古一戸建て
構造 木造 階建 地上2階建
建ぺい率/容積率 70%/200%
建物面積 1階 57.83㎡/ 2階 57.83㎡/ 計 115.66㎡ /34.98坪
土地面積 251.84㎡ /76.18坪
築年月 2018年1月(築8年)
入居(引き渡し)時期 相談
用途地域 用途の指定のない地域 地目 宅地  (現状:宅地)
都市計画 市街化調整区域 学校区 十日町小学校(54m)・岡南中学校(1,250m)
形状 間口 11.9m × 奥行 22.9m 道路 北側:長岡市道幅員約6m/南側:長岡市道幅員約5.1m
私道 - その他の制限 -
  • 【中古住宅】長岡市十日町 中古住宅
    有限会社 ABCホーム
  • この物件を問い合わせる/無料
  • TEL: 0258-35-6682

物件詳細情報

所在階/階数 - 号室 -
販売価格 23,000,000円 方位
間取り 4LDK (和室:4.5畳) (洋室:6、6、6)
LDK17.5
3帖:サンルーム
専有面積 - バルコニー面積 -
その他面積 9.91㎡ /2.99坪  ウォークインクローゼット 駐車場 -
管理費 - 修繕積立金 -
現況 空家
仲介手数料 825,000円
利用制限 -
設備 日当り良好、閑静な住宅街、新築時図面あり、建物確認・完了検査済証あり、LDK15帖以上、築10年以内、駐車3台以上可能、南向き、TVインターホン、複層ガラス、システムキッチン、IHクッキングヒーター、食器洗浄乾燥機、3口コンロ、追いだき機能付き、バス1坪以上、温水洗浄便座、トイレ2か所以上、シャワー付き洗面台、エアコンあり、24時間換気システム、オール電化、上水道、下水道、ウォークインクローゼット、全居室収納あり、シューズBOX
取引態様 一般
備考 ●内覧希望の方は家財搬出後となりますので要相談●水道管は隣地の水道管を共用しているため、お住まいになる前に水道管引込付替え工事が必要となります●現況渡し●契約不適合責任免責
取り扱い会社

有限会社 ABCホーム

新潟県長岡市曙1-1-7

情報登録日 2026/02/12 次回更新予定日 2026/06/06
取引条件有効期限 2026/03/31
  • 【中古住宅】長岡市十日町 中古住宅
    有限会社 ABCホーム
  • この物件を問い合わせる/無料
  • TEL: 0258-35-6682

この物件の地図・周辺情報・行政情報

この物件の周辺情報・行政情報を詳しく見る
【周辺情報】
物件の近くにあるコンビニや銀行・学校など、アイコン付のマップで詳しく表示できます!
【行政情報】
水道料や下水道料・ガス料金など、暮らしに関係のある情報を表示しています。

担当取扱い店舗情報

取扱い店舗画像
有限会社 ABCホーム
TEL: 0258-35-6682
所在地: 新潟県長岡市曙1-1-7
交通:
営業時間: 9:00~18:00/定休日:
免許番号: 新潟県知事(4)4781号 この会社の情報を詳しく見る
所属団体名: 新潟県宅地建物取引業協会 長岡支部
取引態様: 一般
ホームページ: http://abc-home.d.dooo.jp/