物件掲載企業数:301|賃貸物件:3,262件|売買物件:3,252件|今週の登録物件:248
閲覧中のブラウザ(インターネットエクスプローラー)は非推奨ブラウザです。
物件が正しく表示されなかったり、正しく検索されない場合があります。最新のブラウザ(Google Chrome・Edgeなど)にてご利用お願いいたします。
  

新潟県長岡市寿1丁目2-51 中古一戸建て 1R 150,000,000円の物件情報

2.8tクレーン付きです。

物件名/所在地 詳細 価格
中古倉庫『寿1丁目』
新潟県長岡市寿1丁目2-51
  • 土地面積
    :1,658.5㎡ /501.69坪
  • 建物面積
    :730㎡ /220.82坪
  • 間取り
    :1R
  • 築年月
    :1986年3月
150,000,000
  • 中古倉庫『寿1丁目』
    ㈱スタッフサイトウ不動産部
  • この物件を問い合わせる/無料
  • TEL: 0258-24-0623

物件画像

外観 間取り
物件画像
※画像クリックで拡大表示
外観
物件画像
※画像クリックで拡大表示
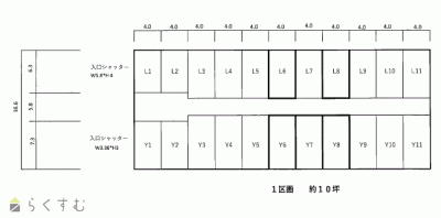
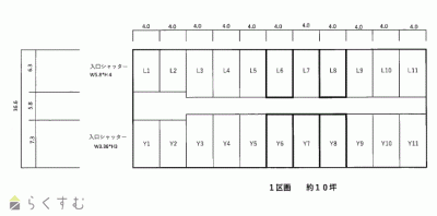
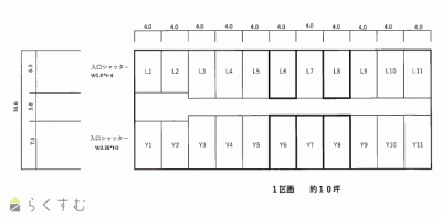
間取り
詳細画像


物件概要

只今賃貸中です。
物件コード 00011-200225
物件名 中古倉庫『寿1丁目』
交通 駅:信越線 北長岡駅から徒歩25分、バス:北中学校前から徒歩5分
物件所在地 新潟県長岡市寿1丁目2-51
物件種別 中古一戸建て
構造 鉄骨 階建 地上1階建
建ぺい率/容積率 60%/200%
建物面積 1階 730㎡/ 計 730㎡ /220.82坪
土地面積 1,658.5㎡ /501.69坪
築年月 1986年3月(築40年)
入居(引き渡し)時期 相談
用途地域 準工業地域 地目 宅地  (現状:宅地)
都市計画 市街化区域 学校区 新町小学校(1,114m)・北中学校(384m)
形状 間口 20m 道路 長岡286号
私道 - その他の制限 -
  • 中古倉庫『寿1丁目』
    ㈱スタッフサイトウ不動産部
  • この物件を問い合わせる/無料
  • TEL: 0258-24-0623

物件詳細情報

所在階/階数 1階/1階 号室 -
販売価格 150,000,000円 方位 指定なし
間取り 1R
専有面積 - バルコニー面積 -
その他面積 - 駐車場 -
管理費 - 修繕積立金 -
現況 賃貸中
仲介手数料 5,016,000円
利用制限 -
設備 日当り良好
取引態様 一般
備考 2.8tクレーン付きです。建物W16.6m*D44m
取り扱い会社

㈱スタッフサイトウ不動産部

新潟県長岡市蔵王2丁目4番17号

情報登録日 2025/11/18 次回更新予定日 2026/06/06
取引条件有効期限 2026/09/30
  • 中古倉庫『寿1丁目』
    ㈱スタッフサイトウ不動産部
  • この物件を問い合わせる/無料
  • TEL: 0258-24-0623

この物件の地図・周辺情報・行政情報

この物件の周辺情報・行政情報を詳しく見る
【周辺情報】
物件の近くにあるコンビニや銀行・学校など、アイコン付のマップで詳しく表示できます!
【行政情報】
水道料や下水道料・ガス料金など、暮らしに関係のある情報を表示しています。
セブン-イレブン 長岡北中学校前店(コンビニ)まで490m
新潟県立精神医療センター(病院)まで640m
新潟県病院同仁会(病院)まで880m

※カメラのアイコンがある場合は、マウスをポイントするとその施設の画像がご覧いただけます。


担当取扱い店舗情報

取扱い店舗画像
㈱スタッフサイトウ不動産部
TEL: 0258-24-0623
所在地: 新潟県長岡市蔵王2丁目4番17号
交通: JR北長岡駅
営業時間: 8:30~17:30/定休日:第2・4土曜・日曜・祭日
免許番号: 新潟県知事(2)第5364号 この会社の情報を詳しく見る
所属団体名: 新潟県宅地建物取引業協会 長岡支部
取引態様: 一般
ホームページ: http://hokuetsu-fudousan.com