物件掲載企業数:295|賃貸物件:3,617件|売買物件:3,315件|今週の登録物件:212
閲覧中のブラウザ(インターネットエクスプローラー)は非推奨ブラウザです。
物件が正しく表示されなかったり、正しく検索されない場合があります。最新のブラウザ(Google Chrome・Edgeなど)にてご利用お願いいたします。
  

新潟県長岡市本町2丁目1番5 中古マンション 3LDK 30,900,000円の物件情報

長岡駅徒歩圏内に総戸数45戸、築浅マンション出ました! 広めの居室、3LDK間取りです。角部屋で2方にバルコニーがあり、長岡花火が良く見える部屋です♪

物件名/所在地 詳細 価格
長岡市本町2丁目 アルファステイツ長岡本町
新潟県長岡市本町2丁目1番5
  • 専有面積
    :72.16㎡ /21.82坪
  • 間取り
    :3LDK
  • 築年月
    :2019年8月
30,900,000
  • 長岡市本町2丁目 アルファステイツ長岡本町
    有限会社 一代工務店
  • この物件を問い合わせる/無料
  • TEL: 0258-34-2221

物件画像

外観 間取り
物件画像
※画像クリックで拡大表示
現地外観写真
物件画像
※画像クリックで拡大表示
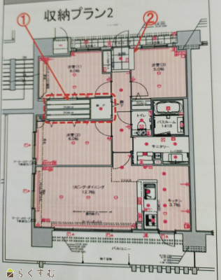
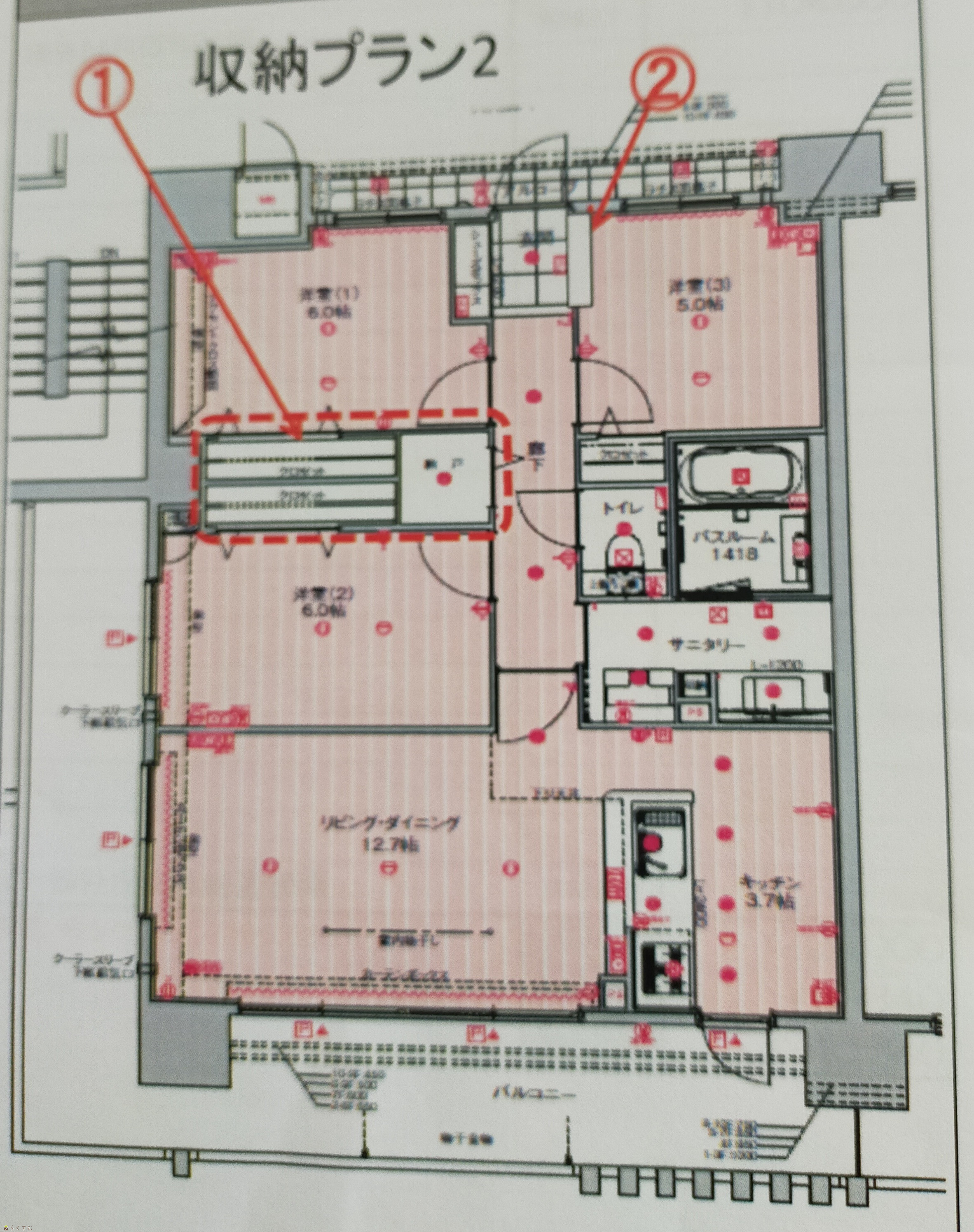
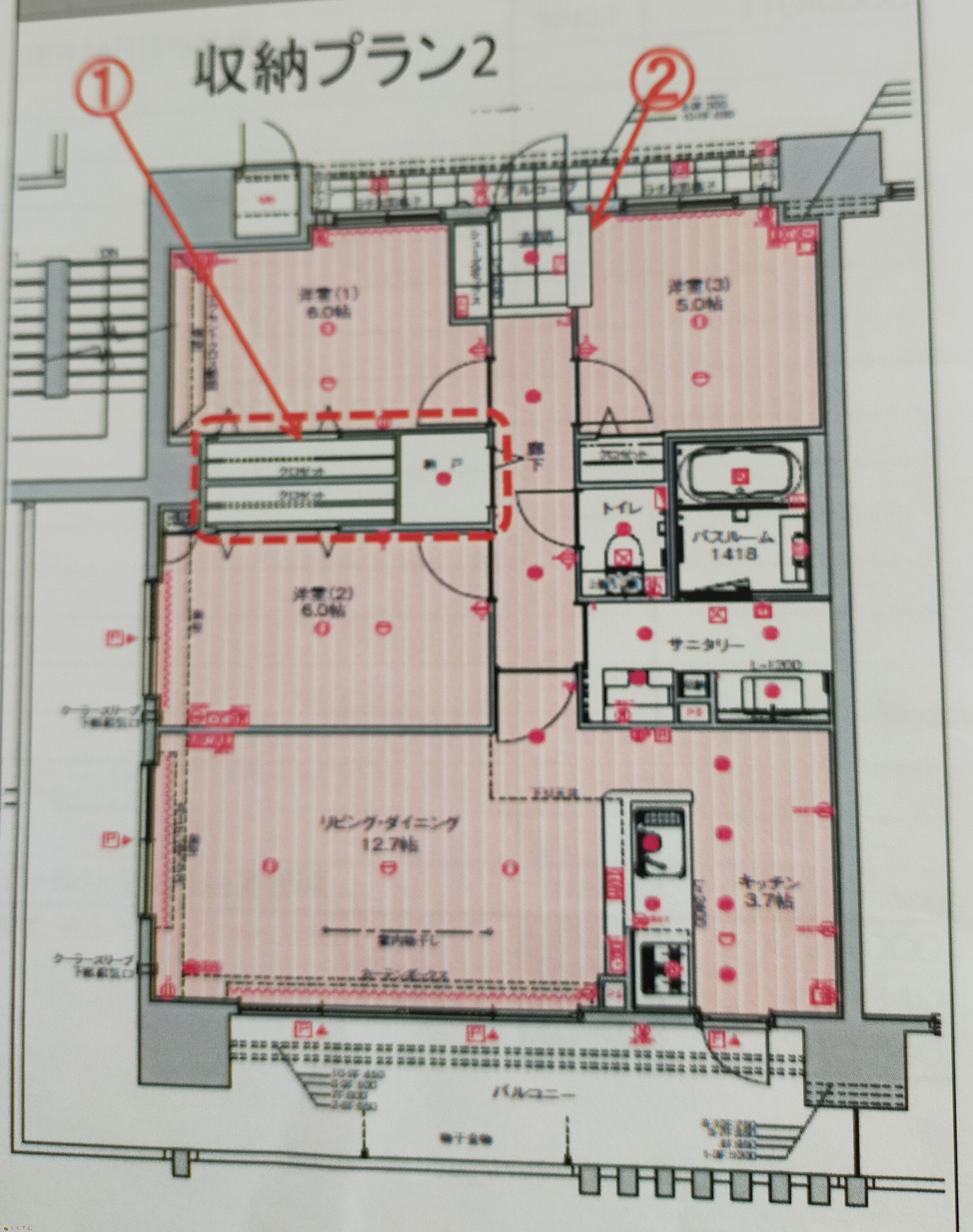
間取り図
詳細画像


物件概要

LDKと廊下のフローリングはコーティング施工されています。
物件コード 00007-200724
物件名 長岡市本町2丁目 アルファステイツ長岡本町
交通 駅:信越線 長岡駅から徒歩18分、バス:上田町から徒歩3分
物件所在地 新潟県長岡市本町2丁目1番5
物件種別 中古マンション
構造 鉄筋コン 階建 地上10階建
建ぺい率/容積率 80%/300%
建物面積 -
土地面積 -
築年月 2019年8月(築6年)
入居(引き渡し)時期 相談
用途地域 近隣商業地域 地目 宅地
都市計画 市街化区域 学校区 表町小学校(517m)・東中学校(1,119m)
形状 - 道路 北西側:市道 7.8m、南東側:市道 15.1m
私道 - その他の制限 -
  • 長岡市本町2丁目 アルファステイツ長岡本町
    有限会社 一代工務店
  • この物件を問い合わせる/無料
  • TEL: 0258-34-2221

物件詳細情報

所在階/階数 3階/10階 号室 -
販売価格 30,900,000円 方位 -
間取り 3LDK (洋室:6、6、5)
LDK16.4
専有面積 72.16㎡ /21.82坪 バルコニー面積 26.16㎡ /7.91坪
その他面積 - 駐車場 -
管理費 5,100円/月 修繕積立金 8,300円/月
現況 居住中
仲介手数料 1,085,700円
災害積立金 300円
/月
本町2丁目町内費 6,000円
/年
利用制限 ペット:相談
設備 10階建て以上、角部屋、2階以上、日当り良好、スーパー近く、最寄駅近く、洗濯機置き場、エレベーター、宅配BOX、LDK15帖以上、全室フローリング、築10年以内、バイク置き場、駐輪場、管理人常駐(日中)、TV付きインターホン、システムキッチン、対面式キッチン、食器洗浄乾燥機、浄水器、3口コンロ、ガスコンロ設置済み、浴室乾燥機、浴室1坪以上、温水洗浄便座、シャワー付き洗面台、エアコン、全室エアコン、都市ガス、公営水道、下水道、バルコニー2面以上、全室収納あり、シューズBOX、CATV、高速ネット対応、ペット相談
取引態様 一般
備考 現在居住中です。内覧ご希望の方はご予約をお願い致します。
●バイク置場使用料:1,000円/月

※物件掲載内容と現況に相違がある場合は現況を優先と致します。
詳細はお気軽にお問い合わせください。
担当:藤崎
携帯:090-2763-5443
取り扱い会社

有限会社 一代工務店

新潟県長岡市信濃2-5-36

情報登録日 2025/11/01 次回更新予定日 2025/11/19
取引条件有効期限 2026/01/01
  • 長岡市本町2丁目 アルファステイツ長岡本町
    有限会社 一代工務店
  • この物件を問い合わせる/無料
  • TEL: 0258-34-2221

この物件の地図・周辺情報・行政情報

この物件の周辺情報・行政情報を詳しく見る
【周辺情報】
物件の近くにあるコンビニや銀行・学校など、アイコン付のマップで詳しく表示できます!
【行政情報】
水道料や下水道料・ガス料金など、暮らしに関係のある情報を表示しています。
セブン-イレブン 長岡表町店(コンビニ)まで190m
ウオロク 長岡店(スーパー)まで750m
りそな銀行 長岡支店(銀行)まで290m
長岡信用金庫 本店(銀行)まで420m
(株)大光銀行 千手支店(銀行)まで590m
長岡郵便局(郵便局)まで430m
セブン-イレブン 長岡表町店(コンビニ)まで190m
ウオロク 長岡店(スーパー)まで750m
長岡信用金庫 本店(銀行)まで420m
(株)大光銀行 千手支店(銀行)まで590m
長岡郵便局(郵便局)まで430m

※カメラのアイコンがある場合は、マウスをポイントするとその施設の画像がご覧いただけます。


担当取扱い店舗情報

取扱い店舗画像
有限会社 一代工務店
TEL: 0258-34-2221
所在地: 新潟県長岡市信濃2-5-36
交通: 長岡駅
営業時間: 9:00~18:00/定休日:
免許番号: 新潟県知事(12)2196号 この会社の情報を詳しく見る
所属団体名: 新潟県宅地建物取引業協会 長岡支部
取引態様: 一般
ホームページ: http://www.ichidai-k.co.jp/