物件掲載企業数:295|賃貸物件:3,620件|売買物件:3,318件|今週の登録物件:226
閲覧中のブラウザ(インターネットエクスプローラー)は非推奨ブラウザです。
物件が正しく表示されなかったり、正しく検索されない場合があります。最新のブラウザ(Google Chrome・Edgeなど)にてご利用お願いいたします。
  

新潟県燕市吉田春日町612番78 新築一戸建て 3LDK 23,800,000円の物件情報

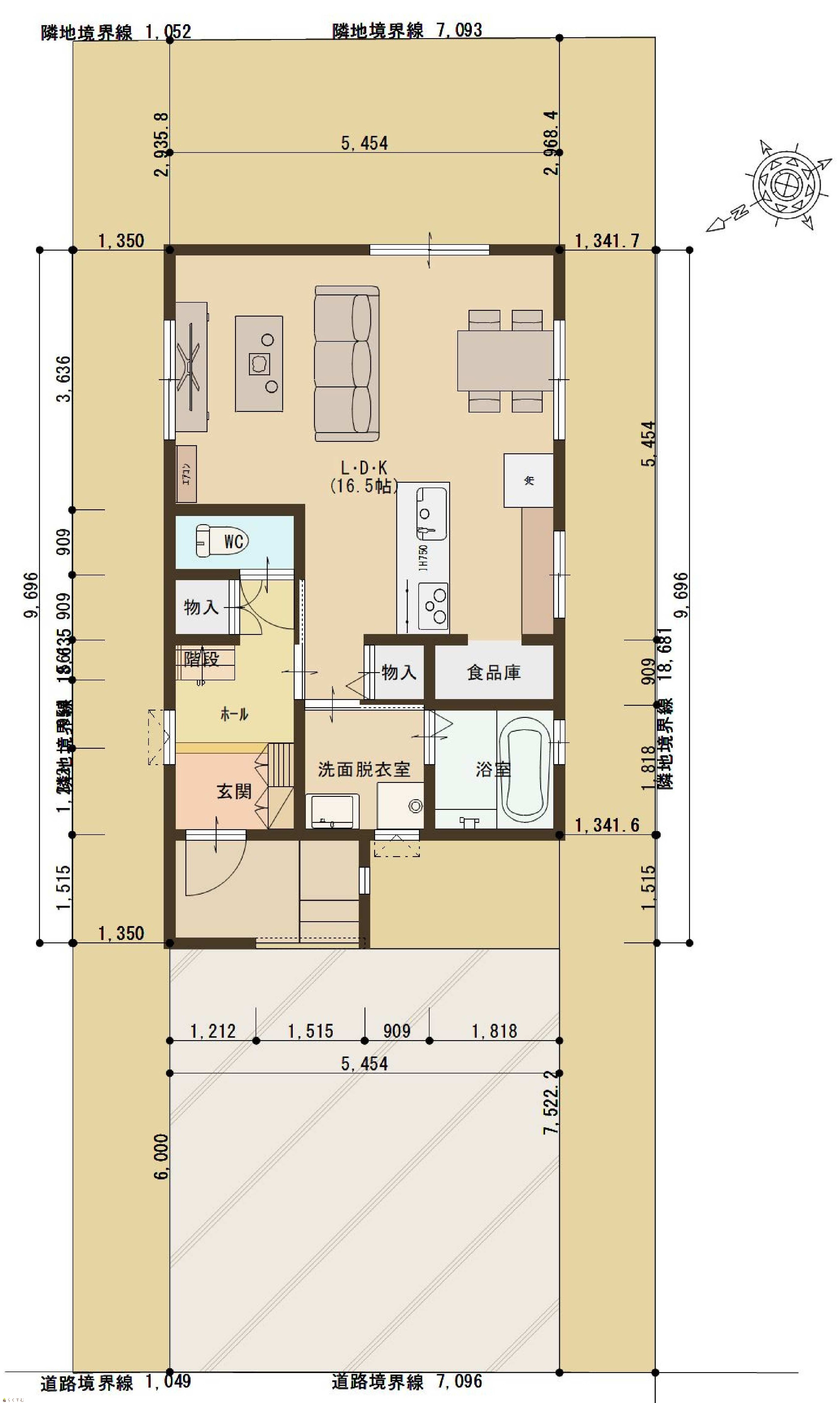
スーパー・コンビニ・ドラッグストア・駅など近く、生活しやすい立地です。 LDKは3面採光で明るさを確保しました。水回りをまとめることで、家事動線を短くし家事の負担を軽減。

物件名/所在地 詳細 価格
燕市吉田春日町 建売住宅 1号棟
新潟県燕市吉田春日町612番78
  • 土地面積
    :151.93㎡ /45.95坪
  • 建物面積
    :89.22㎡ /26.98坪
  • 間取り
    :3LDK
  • 築年月
    :2025年9月
23,800,000
  • 燕市吉田春日町 建売住宅 1号棟
    有限会社 一代工務店
  • この物件を問い合わせる/無料
  • TEL: 0258-34-2221

物件画像

外観 間取り
物件画像
※画像クリックで拡大表示
外観
物件画像
※画像クリックで拡大表示
地型付間取り図
詳細画像


物件概要

「子育てグリーン住宅支援事業」対象物件。家族団欒を眺めながら料理ができる、開放感のある対面キッチンを採用。 主寝室にはウォークインクロークを設けましたので、洋服の多い方にもしっかり対応できます。
物件コード 00007-200720
物件名 燕市吉田春日町 建売住宅 1号棟
交通 駅:弥彦線 吉田駅から徒歩10分、バス:吉田庁舎前から徒歩6分
物件所在地 新潟県燕市吉田春日町612番78
物件種別 新築一戸建て
構造 木造 階建 地上2階建
建ぺい率/容積率 60%/200%
建物面積 計 89.22㎡ /26.98坪
土地面積 151.93㎡ /45.95坪
築年月 2025年9月(築2ヶ月)
入居(引き渡し)時期 随時入居(引き渡し)可
用途地域 第1種住居地域 地目 宅地
都市計画 非線引き都市計画区域 学校区 吉田南小学校(862m)・吉田中学校(2,068m)
形状 - 道路 北西側:市道6.8m
私道 - その他の制限 -
  • 燕市吉田春日町 建売住宅 1号棟
    有限会社 一代工務店
  • この物件を問い合わせる/無料
  • TEL: 0258-34-2221

物件詳細情報

所在階/階数 - 号室 -
販売価格 23,800,000円 方位 北西
間取り 3LDK (洋室:8、6、6)
LDK16.5
専有面積 - バルコニー面積 -
その他面積 - 駐車場 -
管理費 - 修繕積立金 -
現況 指定なし
仲介手数料 なし
利用制限 -
設備 前面道路6m以上、日当り良好、閑静な住宅街、スーパー近く、BELS/省エネ基準適合認定建物、フラット35S適合、LDK15畳以上、全室フローリング、駐車場2台以上、南向き、庭あり、TVインターホン、複層ガラス、ディンプルキー、システムキッチン、IHクッキングヒーター、3口コンロ、追いだき機能付き、バス1坪以上、温水洗浄便座、シャワー付き洗面台、エアコン、24時間換気システム、省エネ給湯、高気密高断熱住宅、都市ガス、上水道、下水道、電気、ウォークインクローゼット、全居室収納あり、床下収納、シューズBOX、照明器具付き、即引き渡し可能
取引態様 売主
備考 ※物件掲載内容と現況に相違がある場合は現況を優先と致します。
詳細はお気軽にお問い合わせください。
担当:竹之内
携帯:090-7815-6720
取り扱い会社

有限会社 一代工務店

新潟県長岡市信濃2-5-36

情報登録日 2025/11/01 次回更新予定日 2025/11/18
取引条件有効期限 2026/01/01
  • 燕市吉田春日町 建売住宅 1号棟
    有限会社 一代工務店
  • この物件を問い合わせる/無料
  • TEL: 0258-34-2221

この物件の地図・周辺情報・行政情報

この物件の周辺情報・行政情報を詳しく見る
【周辺情報】
物件の近くにあるコンビニや銀行・学校など、アイコン付のマップで詳しく表示できます!
【行政情報】
水道料や下水道料・ガス料金など、暮らしに関係のある情報を表示しています。

担当取扱い店舗情報

取扱い店舗画像
有限会社 一代工務店
TEL: 0258-34-2221
所在地: 新潟県長岡市信濃2-5-36
交通: 長岡駅
営業時間: 9:00~18:00/定休日:
免許番号: 新潟県知事(12)2196号 この会社の情報を詳しく見る
所属団体名: 新潟県宅地建物取引業協会 長岡支部
取引態様: 売主
ホームページ: http://www.ichidai-k.co.jp/