物件掲載企業数:295|賃貸物件:3,347件|売買物件:3,307件|今週の登録物件:319
閲覧中のブラウザ(インターネットエクスプローラー)は非推奨ブラウザです。
物件が正しく表示されなかったり、正しく検索されない場合があります。最新のブラウザ(Google Chrome・Edgeなど)にてご利用お願いいたします。
  

新潟県長岡市曲新町1丁目1574番4、1574番5 新築一戸建て 3LDK 19,800,000円の物件情報

【2/16価格改定】2180万円⇒1980万円●オープンハウス開催● 2/21(土)~23(月) 10~17時  スタッフ常駐!ご予約は不要です!お気軽にご来場ください♪

物件名/所在地 詳細 価格
長岡市曲新町1丁目 建売住宅
新潟県長岡市曲新町1丁目1574番4、1574番5
  • 土地面積
    :165㎡ /49.91坪
  • 建物面積
    :86.75㎡ /26.24坪
  • 間取り
    :3LDK
  • 築年月
    :2025年9月
19,800,000
  • 長岡市曲新町1丁目 建売住宅
    有限会社 一代工務店
  • この物件を問い合わせる/無料
  • TEL: 0258-34-2221

物件画像

外観 間取り
物件画像
※画像クリックで拡大表示
外観
物件画像
※画像クリックで拡大表示
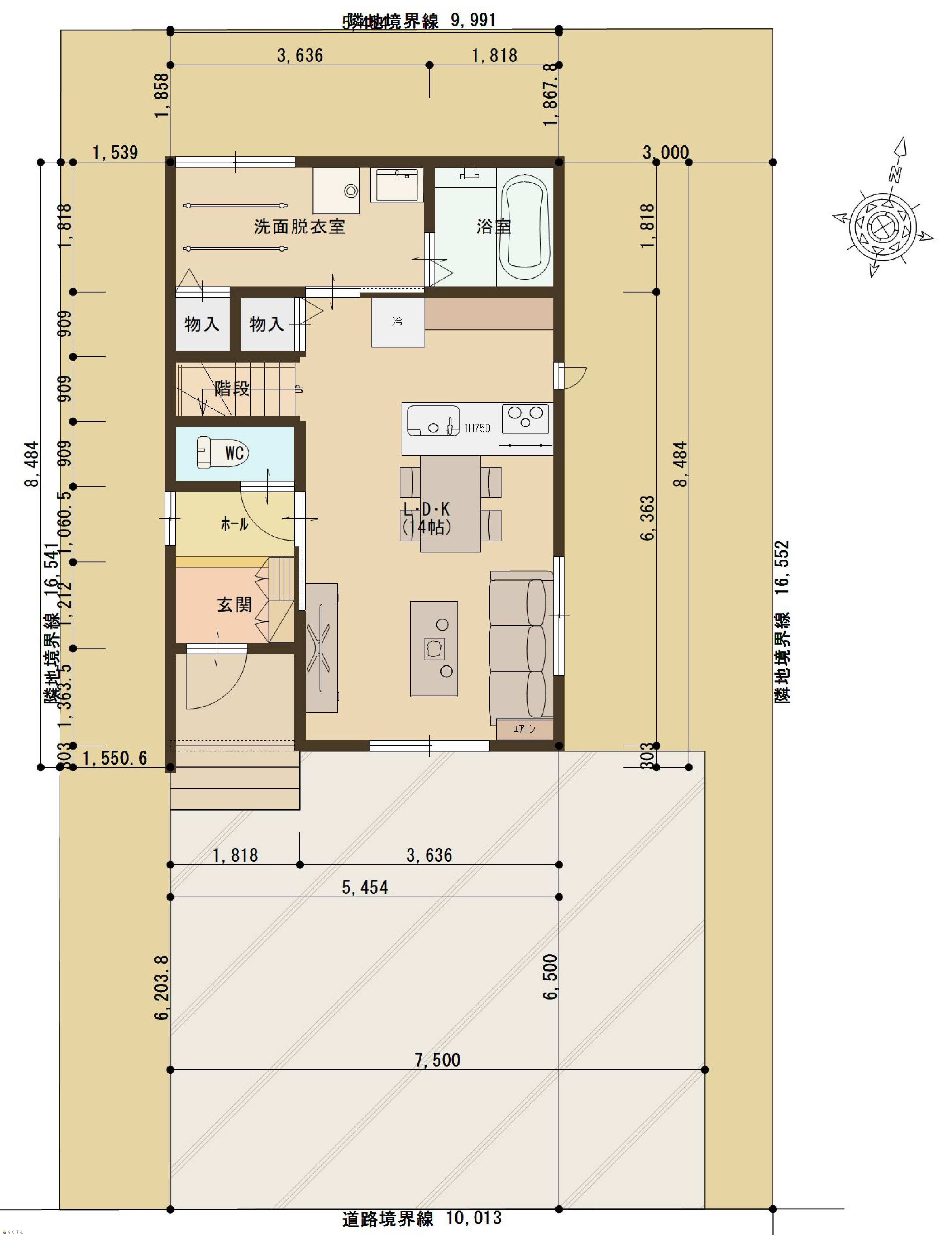
地型付間取り図
詳細画像
動画


物件概要

並列駐車3台可!近隣商業施設充実! 上組小学校、宮内中学校区の新築3LDK♪ 前面道路には消雪パイプ完備で冬も安心!広々とした洗面脱衣室は物干しスペースとしても利用可。2階洋室にウォークインクローゼット完備で収納スペースも充実。 家族同士のコミュニケーションが取りやすい対面キッチン、リビング階段。
物件コード 00007-200718
物件名 長岡市曲新町1丁目 建売住宅
交通 駅:信越線 宮内駅から徒歩12分、バス:曲新町1丁目から徒歩4分
物件所在地 新潟県長岡市曲新町1丁目1574番4、1574番5
物件種別 新築一戸建て
構造 木造 階建 地上2階建
建ぺい率/容積率 50%/100%
建物面積 計 86.75㎡ /26.24坪
土地面積 165㎡ /49.91坪
築年月 2025年9月(築5ヶ月)
入居(引き渡し)時期 随時入居(引き渡し)可
用途地域 第1種低層住居専用地域 地目 宅地
都市計画 市街化区域 学校区 上組小学校(888m)・宮内中学校(851m)
形状 - 道路 -
私道 南側:位置指定道路 約4m その他の制限 -
  • 長岡市曲新町1丁目 建売住宅
    有限会社 一代工務店
  • この物件を問い合わせる/無料
  • TEL: 0258-34-2221

物件詳細情報

所在階/階数 - 号室 -
販売価格 19,800,000円 方位
間取り 3LDK (洋室:8、6、6)
LDK14
専有面積 - バルコニー面積 -
その他面積 - 駐車場 -
管理費 - 修繕積立金 -
現況 指定なし
仲介手数料 なし
利用制限 -
設備 整形地、日当り良好、閑静な住宅街、BELS/省エネ基準適合認定建物、フラット35S適合、全室フローリング、駐車場2台以上、駐車場3台以上、南向き、庭あり、TVインターホン、複層ガラス、ディンプルキー、システムキッチン、IHクッキングヒーター、3口コンロ、追いだき機能付き、バス1坪以上、温水洗浄便座、シャワー付き洗面台、エアコン、24時間換気システム、省エネ給湯、高気密高断熱住宅、都市ガス、上水道、下水道、電気、ウォークインクローゼット、全居室収納あり、床下収納、シューズBOX、照明器具付き、即引き渡し可能
取引態様 売主
備考 【R8年2月16日価格改定しました】2180万円⇒1980万円
※旧価格公開日 R7年3月18日
 新価格公開日 R8年2月16日

・絶対高さの制限:10m
・外壁後退:なし
・第一種高度地区
・22条指定区域
・位置指定道路あり:20㎡(6.05坪)

※物件掲載内容と現況に相違がある場合は現況を優先と致します。
詳細はお気軽にお問い合わせください。
担当:沼田
携帯:070-8449-3715
取り扱い会社

有限会社 一代工務店

新潟県長岡市信濃2-5-36

情報登録日 2026/02/16 次回更新予定日 2026/03/07
取引条件有効期限 2026/04/01
  • 長岡市曲新町1丁目 建売住宅
    有限会社 一代工務店
  • この物件を問い合わせる/無料
  • TEL: 0258-34-2221

この物件の地図・周辺情報・行政情報

この物件の周辺情報・行政情報を詳しく見る
【周辺情報】
物件の近くにあるコンビニや銀行・学校など、アイコン付のマップで詳しく表示できます!
【行政情報】
水道料や下水道料・ガス料金など、暮らしに関係のある情報を表示しています。
セブン-イレブン 長岡宮内駅前通り店(コンビニ)まで790m
セブン-イレブン 長岡摂田屋店(コンビニ)まで650m
保川内科医院(病院)まで630m
第四北越銀行 宮内支店(銀行)まで700m

※カメラのアイコンがある場合は、マウスをポイントするとその施設の画像がご覧いただけます。


担当取扱い店舗情報

取扱い店舗画像
有限会社 一代工務店
TEL: 0258-34-2221
所在地: 新潟県長岡市信濃2-5-36
交通: 長岡駅
営業時間: 9:00~18:00/定休日:
免許番号: 新潟県知事(12)2196号 この会社の情報を詳しく見る
所属団体名: 新潟県宅地建物取引業協会 長岡支部
取引態様: 売主
ホームページ: http://www.ichidai-k.co.jp/