1
物件掲載企業数:
297
社
|賃貸物件:
3,610
件|売買物件:
3,333
件|今週の登録物件:
271
件
閲覧中のブラウザ(インターネットエクスプローラー)は非推奨ブラウザです。
物件が正しく表示されなかったり、正しく検索されない場合があります。最新のブラウザ(Google Chrome・Edgeなど)にてご利用お願いいたします。
Google Chrome
Microsoft Edge
アパート・マンション・一戸建て
駐車場
貸土地
店舗
事務所
倉庫・工場
新築分譲マンション
中古マンション
新築一戸建て
中古一戸建て
売土地・分譲地
その他(投資物件など)
マンション
一戸建て
土地
ホーム
>
検索方法選択
>
エリア選択
> 物件一覧
三条市
の
中古一戸建て
一覧
33件
該当しました。
1
2
次のページ>
表示切替:
一覧表示
/
地図表示
並び替え:
指定なし
新着順
価格が安い順
価格が高い順
画像
物件名/所在地/取扱店
詳細
保内駅まで徒歩5分の便利な立地です!高基礎の空間は荷物置場に使えます!現況渡しとなります!
上保内 中古住宅
新潟県三条市上保内乙490-3
ふどうさんの相談所 (ライフデザイン合同会社 イオン長岡店)
価格
:
1,000,000
円
土地面積
:260.18㎡ /78.7坪
建物面積
:227.72㎡ /68.88坪
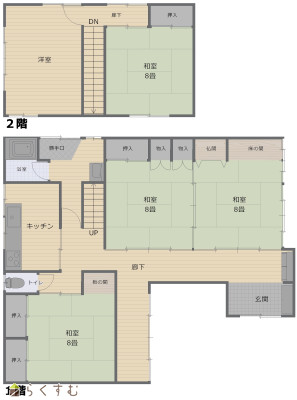
間取り
:6DK
築年月
:1958年12月
一ノ木戸小学校迄徒歩約15分!近隣月極駐車場有!
◆売中古戸建て◆三条市嘉坪川二丁目
新潟県三条市嘉坪川2丁目12番地31号
株式会社 ユタカ不動産
価格
:
1,000,000
円
土地面積
:82.64㎡ /24.99坪
建物面積
:85.38㎡ /25.82坪
間取り
:5DK
築年月
:1962年11月
車庫付き(軽自動車専用)!上下水道!都市ガス引込有!
◆中古戸建◆三条市荒町一丁目
新潟県三条市荒町1丁目9-12
株式会社 ユタカ不動産
価格
:
3,000,000
円
土地面積
:199.89㎡ /60.46坪
建物面積
:152.5㎡ /46.13坪
間取り
:7DK
築年月
:1967年8月
保内駅徒歩約8分!
◆中古戸建◆三条市上保内
新潟県三条市上保内乙104番8号
株式会社 ユタカ不動産
価格
:
3,000,000
円
土地面積
:171㎡ /51.72坪
建物面積
:85.55㎡ /25.87坪
間取り
:4DK
築年月
:1977年4月
前面道路消雪パイプ有り!
◆中古住宅◆三条市四日町
新潟県三条市四日町19番19号
株式会社 ユタカ不動産
価格
:
3,980,000
円
土地面積
:148㎡ /44.77坪
建物面積
:119.47㎡ /36.13坪
間取り
:5DK
築年月
:1981年11月
東光寺駅から徒歩約13分!!
三条市袋 中古住宅
新潟県三条市袋349-1
ハウスドゥ 長岡中央店
価格
:
3,980,000
円
土地面積
:174㎡ /52.63坪
建物面積
:89.42㎡ /27.04坪
間取り
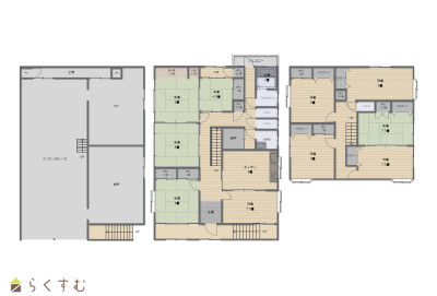
:2DK
築年月
:1981年8月
車庫付き!広々7DK
桜木町 中古戸建
新潟県三条市桜木町26番6号
株式会社 ユタカ不動産
価格
:
4,000,000
円
土地面積
:220.13㎡ /66.58坪
建物面積
:161.68㎡ /48.9坪
間取り
:7DK
築年月
:1976年10月
1.2階部分両方にキッチン有!寮・二世帯住宅として♪
◆中古戸建◆三条市石上二丁目
新潟県三条市石上2丁目2番地23号
株式会社 ユタカ不動産
価格
:
4,000,000
円
土地面積
:185.1㎡ /55.99坪
建物面積
:96.6㎡ /29.22坪
間取り
:7LDK
築年月
:1967年10月
静かな暮らしにピッタリ!
◆月岡二丁目 中古戸建◆
新潟県三条市月岡二丁目13-12
株式会社 ユタカ不動産
価格
:
4,000,000
円
土地面積
:253.71㎡ /76.74坪
建物面積
:118.38㎡ /35.8坪
間取り
:5DK
築年月
:1982年1月
◆戸建て◆三条市月岡二丁目
新潟県三条市月岡2丁目165番6
株式会社 ユタカ不動産
価格
:
4,200,000
円
土地面積
:150㎡ /45.37坪
建物面積
:57.85㎡ /17.49坪
間取り
:1K
築年月
:1986年1月
建物脇に約3台分の駐車スペース有
◆中古戸建◆三条市島田二丁目
新潟県三条市島田2丁目4-4
株式会社 ユタカ不動産
価格
:
4,600,000
円
土地面積
:130.35㎡ /39.43坪
建物面積
:108.02㎡ /32.67坪
間取り
:4DK
築年月
:1977年1月
利便性の良い石上1丁目の中古住宅!庭付きの日本家屋
三条市石上中古住宅
新潟県三条市石上1丁目2-20
髙頭不動産 株式会社
価格
:
4,980,000
円
土地面積
:198.51㎡ /60.04坪
建物面積
:131.9㎡ /39.89坪
間取り
:5K
築年月
:1981年7月
R7.8.29価格改定しました!土地面積130坪!
三条市鶴田 中古住宅
新潟県三条市鶴田3-13-52
ハウスドゥ 長岡中央店
価格
:
5,000,000
円
土地面積
:429.84㎡ /130.02坪
建物面積
:142.42㎡ /43.08坪
間取り
:5DK
築年月
:1972年10月
◆中古住宅◆三条市嘉坪川一丁目
新潟県三条市嘉坪川1丁目123-1、123-4
株式会社 ユタカ不動産
価格
:
5,800,000
円
土地面積
:191.72㎡ /57.99坪
建物面積
:92.56㎡ /27.99坪
間取り
:6DK
築年月
:1965年12月
◆戸建て◆三条市田屋
新潟県三条市田屋663番、664番1、665番1、666番1
株式会社 ユタカ不動産
価格
:
6,500,000
円
土地面積
:1,528.75㎡ /462.44坪
建物面積
:144.05㎡ /43.57坪
間取り
:5LDK
築年月
:1998年10月
全室フローリング!※敷地内駐車場はございません!
◆中古戸建◆三条市塚野目二丁目
新潟県三条市塚野目2丁目6番地26号
株式会社 ユタカ不動産
価格
:
7,000,000
円
土地面積
:69.43㎡ /21坪
建物面積
:81㎡ /24.5坪
間取り
:3DK
築年月
:2000年3月
建物状態良好♪全室ペアガラスです
◆売中古戸建◆三条市林町二丁目
新潟県三条市林町2丁目9番地2号
株式会社 ユタカ不動産
価格
:
7,800,000
円
土地面積
:184.6㎡ /55.84坪
建物面積
:116.45㎡ /35.22坪
間取り
:4DK
築年月
:1979年8月
三条市東新保売家
新潟県三条市東新保14番28ー3号
有限会社 原不動産
価格
:
8,000,000
円
土地面積
:209.92㎡ /63.5坪
建物面積
:122.54㎡ /37.06坪
間取り
:3LDK
築年月
:2010年8月
価格改定【リセットハウス 予約制オープンハウス開催中!】閑静な住宅街♪3LDK・駐車3台(うち車庫1台分)せひご覧になってください。ご連絡お待ちしております。
三条市中新 リセットハウス
新潟県三条市中新5番4号
株式会社リアルト・ハーツ 長岡支店
価格
:
11,980,000
円
土地面積
:196.8㎡ /59.53坪
建物面積
:95.21㎡ /28.8坪
間取り
:3LDK
築年月
:1980年7月
キャンプ場、温泉施設近く。有名アウトドアショップ近く
三条市中野原売り住宅
新潟県三条市中野原301番123
柏越建設 株式会社
価格
:
13,400,000
円
土地面積
:936.79㎡ /283.37坪
建物面積
:348.62㎡ /105.45坪
間取り
:10DK
築年月
:1993年3月
表示切替:
一覧表示
/
地図表示
並び替え:
指定なし
新着順
価格が安い順
価格が高い順
価格は物件の代金総額を表示しており、消費税が課税される場合は税込み価格です。
建築条件付き土地価格には、建物価格は含まれません。
物件情報の詳細については取り扱い店までお問い合わせください。
完成予想図はいずれも外構・植栽・外観等実際のものと異なることが多少あります。
CG合成の画像の場合実際と異なることが多少あります。
完成後1年以上経過したものが未入居として記載される場合があります。ご了承ください。
販売予定物件は販売開始するまで契約または予約の申し込みはできません。
ご購入の場合物件詳細や契約内容についてご自身で十分ご確認いただきますようよろしく御願いします。
建築条件付きとは…その土地に建築する建物の建築請負契約が、一定期間内に成立することを条件として売買される土地のことをいいます。請負契約成立に向けて設計プランを協議するため、土地購入者が希望する建物にするために一定の期間(概ね3ヶ月)交渉期間としその期間内に希望するプランが実現できたかどうかによって土地の購入の判断をします。納得のいくプランができず請負契約が未成立になった場合、土地契約にかかった代金(手付金など)は、すべて返却されます。
33件
該当しました。
1
2
次のページ>
0件
がマッチ
基本条件
物件種別
中古一戸建て
価格
下限なし
100万円
250万円
500万円
1000万円
1500万円
2000万円
2500万円
3000万円
3500万円
4000万円
4500万円
5000万円
5500万円
6000万円
6500万円
7000万円
7500万円
8000万円
8500万円
9000万円
9500万円
1億円
~
上限なし
100万円
250万円
500万円
1000万円
1500万円
2000万円
2500万円
3000万円
3500万円
4000万円
4500万円
5000万円
5500万円
6000万円
6500万円
7000万円
7500万円
8000万円
8500万円
9000万円
9500万円
1億円
間取り
ワンルーム
1K
1DK
1LDK
2K
2DK
2LDK
3K
3DK
3LDK
4K
4DK
4LDK以上
専有面積
下限なし
20㎡
30㎡
40㎡
50㎡
60㎡
70㎡
80㎡
90㎡
100㎡
~
上限なし
20㎡
30㎡
40㎡
50㎡
60㎡
70㎡
80㎡
90㎡
100㎡
土地面積
下限なし
60㎡ (約18坪)
70㎡ (約21坪)
80㎡ (約24坪)
90㎡ (約27坪)
100㎡ (約30坪)
110㎡ (約33坪)
120㎡ (約36坪)
130㎡ (約39坪)
140㎡ (約42坪)
150㎡ (約45坪)
160㎡ (約48坪)
170㎡ (約51坪)
180㎡ (約54坪)
190㎡ (約57坪)
200㎡ (約60坪)
250㎡ (約75坪)
300㎡ (約90坪)
~
上限なし
60㎡ (約18坪)
70㎡ (約21坪)
80㎡ (約24坪)
90㎡ (約27坪)
100㎡ (約30坪)
110㎡ (約33坪)
120㎡ (約36坪)
130㎡ (約39坪)
140㎡ (約42坪)
150㎡ (約45坪)
160㎡ (約48坪)
170㎡ (約51坪)
180㎡ (約54坪)
190㎡ (約57坪)
200㎡ (約60坪)
250㎡ (約75坪)
300㎡ (約90坪)
建物面積
下限なし
60㎡ (約18坪)
70㎡ (約21坪)
80㎡ (約24坪)
90㎡ (約27坪)
100㎡ (約30坪)
110㎡ (約33坪)
120㎡ (約36坪)
130㎡ (約39坪)
140㎡ (約42坪)
150㎡ (約45坪)
160㎡ (約48坪)
170㎡ (約51坪)
180㎡ (約54坪)
190㎡ (約57坪)
200㎡ (約60坪)
250㎡ (約75坪)
300㎡ (約90坪)
~
上限なし
60㎡ (約18坪)
70㎡ (約21坪)
80㎡ (約24坪)
90㎡ (約27坪)
100㎡ (約30坪)
110㎡ (約33坪)
120㎡ (約36坪)
130㎡ (約39坪)
140㎡ (約42坪)
150㎡ (約45坪)
160㎡ (約48坪)
170㎡ (約51坪)
180㎡ (約54坪)
190㎡ (約57坪)
200㎡ (約60坪)
250㎡ (約75坪)
300㎡ (約90坪)
坪単価
下限なし
5万円
10万円
15万円
20万円
25万円
30万円
35万円
40万円
45万円
50万円
~
上限なし
5万円
10万円
15万円
20万円
25万円
30万円
35万円
40万円
45万円
50万円
築年数
指定なし
新築
3年以内
5年以内
10年以内
15年以内
20年以内
方位
北
北東
東
南東
南
南西
西
北西
おすすめ条件
ペット可・相談
楽器可・相談
情報公開日
指定なし
本日
3日以内
1週間以内
1ヶ月以内
0件
がマッチ
人気のあるこだわり条件
角地(5)
日当り良好(11)
閑静な住宅街(18)
スーパー近く(6)
フラット35S適合(1)
新築時図面あり(2)
BELS/省エネ基準適合認定建物(2)
建物確認・完了検査済証あり(4)
LDK15帖以上(5)
全室フローリング(5)
築10年以内(1)
築15年以内(2)
駐車2台可能(13)
駐車3台以上可能(13)
南向き(6)
TVインターホン(5)
複層ガラス(7)
デインプルキー(3)
システムキッチン(12)
カウンターキッチン(6)
IHクッキングヒーター(5)
浄水器(2)
3口コンロ(10)
2口コンロ(5)
ガスコンロ設置可能(2)
ガスコンロ設置済み(2)
追いだき機能付き(15)
浴室乾燥機(3)
バス1坪以上(15)
温水洗浄便座(22)
トイレ2か所以上(7)
シャワー付き洗面台(13)
エアコンあり(10)
床暖房(2)
24時間換気システム(5)
オール電化(3)
省エネ給湯機(6)
ウッドデッキ・テラス(2)
ルーフバルコニー(1)
都市ガス(23)
LPG(4)
上水道(29)
下水道(6)
浄化槽(21)
バリアフリー(2)
ウォークインクローゼット(5)
全居室収納あり(8)
床下収納(1)
シューズBOX(8)
シューズインクローゼット(3)
内装リフォーム済み(4)
外装リフォーム済み(3)
リノベーション物件(4)
2世帯向き(1)
即引き渡し可能(10)
田舎暮らし(4)
事業向け(3)
条件に合った物件数は、
0 件
です。
立地・環境
角地(5)
日当り良好(11)
閑静な住宅街(18)
スーパー近く(6)
構造・工法・仕様
フラット35S適合(1)
新築時図面あり(2)
BELS/省エネ基準適合認定建物(2)
建物確認・完了検査済証あり(4)
面積・間取り
LDK15帖以上(5)
全室フローリング(5)
築年
築10年以内(1)
築15年以内(2)
駐車・駐輪
駐車2台可能(13)
駐車3台以上可能(13)
採光・向き
南向き(6)
管理・防犯
TVインターホン(5)
複層ガラス(7)
デインプルキー(3)
キッチン
システムキッチン(12)
カウンターキッチン(6)
IHクッキングヒーター(5)
浄水器(2)
3口コンロ(10)
2口コンロ(5)
ガスコンロ設置可能(2)
ガスコンロ設置済み(2)
浴室
追いだき機能付き(15)
浴室乾燥機(3)
バス1坪以上(15)
トイレ
温水洗浄便座(22)
トイレ2か所以上(7)
洗面所
シャワー付き洗面台(13)
冷暖房・空調
エアコンあり(10)
床暖房(2)
24時間換気システム(5)
光熱設備
オール電化(3)
省エネ給湯機(6)
バルコニー・テラス
ウッドデッキ・テラス(2)
ルーフバルコニー(1)
室内仕様・設備
都市ガス(23)
LPG(4)
上水道(29)
下水道(6)
浄化槽(21)
バリアフリー(2)
収納
ウォークインクローゼット(5)
全居室収納あり(8)
床下収納(1)
シューズBOX(8)
シューズインクローゼット(3)
リフォーム
内装リフォーム済み(4)
外装リフォーム済み(3)
リノベーション物件(4)
費用・入居・引渡・条件
2世帯向き(1)
即引き渡し可能(10)
その他
田舎暮らし(4)
事業向け(3)
条件に合った物件数は、
0 件
です。
アパート・マンション・一戸建て
/
駐車場
/
貸土地
/
店舗
/
事務所
/
倉庫・工場
新築分譲マンション
/
中古マンション
/
新築一戸建て
/
中古一戸建て
/
売土地
/
投資物件・その他
マンション
/
一戸建て
/
土地
建てる・リフォーム
物件掲載企業一覧
掲載希望の企業様へ
新潟の不動産情報サイト
サービス利用規約
運営会社
サイトマップ
プライバシーポリシー
お問い合わせ
リンク
Copyright (C)
株式会社 コモンライフ・コーポレーション
. All Rights Reserved.
新潟・長岡・柏崎の賃貸・マンション・アパート・住宅の不動産物件情報サイト
不動産検索サイト「らくすむ」及び関連サイトに記載の不動産情報は、会員規約に則り、情報提供会社様の責任のもとに発信されております。
不動産の賃借、購入に関しては賃借者、購入者ご自身が情報を確認され、会社企業様から説明を受けられたうえで判断をお願いいたします。
不動産検索サイト「らくすむ」及び関連サイトに記載の不動産情報、写真、デザイン、コンテンツなどの
無断転載・転用・複製
など禁止します。