1
物件掲載企業数:
299
社
|賃貸物件:
3,049
件|売買物件:
3,235
件|今週の登録物件:
333
件
閲覧中のブラウザ(インターネットエクスプローラー)は非推奨ブラウザです。
物件が正しく表示されなかったり、正しく検索されない場合があります。最新のブラウザ(Google Chrome・Edgeなど)にてご利用お願いいたします。
Google Chrome
Microsoft Edge
アパート・マンション・一戸建て
駐車場
貸土地
店舗
事務所
倉庫・工場
新築分譲マンション
中古マンション
新築一戸建て
中古一戸建て
売土地・分譲地
その他(投資物件など)
マンション
一戸建て
土地
ホーム
>
検索方法選択
>
エリア選択
> 物件一覧
寺泊町
の
中古一戸建て
一覧
9件
該当しました。
表示切替:
一覧表示
/
地図表示
並び替え:
指定なし
新着順
価格が安い順
価格が高い順
画像
物件名/所在地/取扱店
詳細
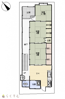
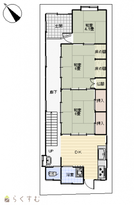
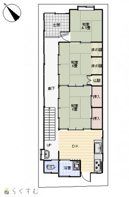
寺泊駅まで徒歩約8分です
売住宅 長岡市寺泊竹森
新潟県長岡市寺泊竹森1309番
有限会社 粉川不動産コミュニティ
価格
:
1,300,000
円
土地面積
:132.23㎡ /39.99坪
建物面積
:165.68㎡ /50.11坪
間取り
:7DK
築年月
:1972年3月
寺泊中心部高台の閑静な住宅街 海まで徒歩約5分 5SDK 土地建物総額150万円
寺泊上田町 中古住宅
新潟県長岡市寺泊上田町8204
株式会社 エヌ・アール・ケー総合企画
価格
:
1,500,000
円
土地面積
:89.25㎡ /26.99坪
建物面積
:109.58㎡ /33.14坪
間取り
:5DK
築年月
:1960年8月
長岡市寺泊大町の箱庭付き6DK中古戸建
長岡市寺泊大町 中古戸建
新潟県長岡市寺泊大町7751
長岡不動産販売株式会社
価格
:
1,800,000
円
土地面積
:135.53㎡ /40.99坪
建物面積
:114.06㎡ /34.5坪
間取り
:6DK
築年月
:1967年7月
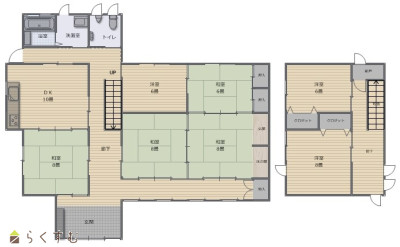
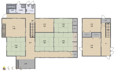
海の寺泊、魚のアメ横近く、 マリンスポーツ・海のレジャーの拠点に最適
中古建て『寺泊蔵場町』
長岡市寺泊蔵場町8361
㈱スタッフサイトウ不動産部
価格
:
1,980,000
円
土地面積
:135.53㎡ /40.99坪
建物面積
:165.61㎡ /50.09坪
間取り
:5K
築年月
:1975年3月
海岸地域の物件です。大和田海岸まで徒歩約2分
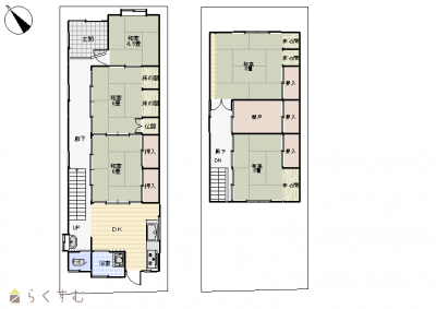
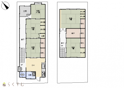
売住宅 長岡市寺泊郷本
新潟県長岡市寺泊郷本380番地
有限会社 粉川不動産コミュニティ
価格
:
2,300,000
円
土地面積
:211.57㎡ /63.99坪
建物面積
:172.55㎡ /52.19坪
間取り
:8DK
築年月
:1961年12月
寺泊魚の市場通りまで徒歩約16分!海も近く、別荘にいかがでしょうか♪
長岡市寺泊白岩 売住宅
新潟県長岡市寺泊白岩7235-3
髙頭不動産 株式会社
価格
:
5,000,000
円
土地面積
:124.15㎡ /37.55坪
建物面積
:143.99㎡ /43.55坪
間取り
:6DK
築年月
:1972年4月
寺泊魚市場まで徒歩3分!海の匂いを感じながらお散歩もできます♪
長岡市寺泊坂井町 売住宅
新潟県長岡市寺泊坂井町9769-43
髙頭不動産 株式会社
価格
:
8,900,000
円
土地面積
:453.87㎡ /137.29坪
建物面積
:207.51㎡ /62.77坪
間取り
:7DK
築年月
:1978年3月
【価格改定してお求めやすくなりました♪】1,580万円(R6.7.10)→1,080万円(R7.9.1)車2台分駐車スペース(車庫1台分含む)あり!海が近く、別荘としてもお住まいになれます♪
長岡市寺泊野積 売住宅
新潟県長岡市寺泊野積559-1
髙頭不動産 株式会社
価格
:
10,800,000
円
土地面積
:522.8㎡ /158.14坪
建物面積
:167.5㎡ /50.66坪
間取り
:7DK
築年月
:2000年7月
ミサワホームのインナーガレージ付コンパクト住宅 築5年オーシャンビューの定住・別荘・民泊向け 新築時から別荘利用なので、すぐにそのままお住まいいただけます
【ミサワホームのスムストック:築5年】長岡市寺泊大和田
新潟県長岡市寺泊大和田1277-15
ミサワホーム北越 株式会社
価格
:
23,000,000
円
土地面積
:255.6㎡ /77.31坪
建物面積
:96.07㎡ /29.06坪
間取り
:3LDK
築年月
:2020年5月
表示切替:
一覧表示
/
地図表示
並び替え:
指定なし
新着順
価格が安い順
価格が高い順
価格は物件の代金総額を表示しており、消費税が課税される場合は税込み価格です。
建築条件付き土地価格には、建物価格は含まれません。
物件情報の詳細については取り扱い店までお問い合わせください。
完成予想図はいずれも外構・植栽・外観等実際のものと異なることが多少あります。
CG合成の画像の場合実際と異なることが多少あります。
完成後1年以上経過したものが未入居として記載される場合があります。ご了承ください。
販売予定物件は販売開始するまで契約または予約の申し込みはできません。
ご購入の場合物件詳細や契約内容についてご自身で十分ご確認いただきますようよろしく御願いします。
建築条件付きとは…その土地に建築する建物の建築請負契約が、一定期間内に成立することを条件として売買される土地のことをいいます。請負契約成立に向けて設計プランを協議するため、土地購入者が希望する建物にするために一定の期間(概ね3ヶ月)交渉期間としその期間内に希望するプランが実現できたかどうかによって土地の購入の判断をします。納得のいくプランができず請負契約が未成立になった場合、土地契約にかかった代金(手付金など)は、すべて返却されます。
9件
該当しました。
0件
がマッチ
基本条件
物件種別
中古一戸建て
価格
下限なし
100万円
250万円
500万円
1000万円
1500万円
2000万円
2500万円
3000万円
3500万円
4000万円
4500万円
5000万円
5500万円
6000万円
6500万円
7000万円
7500万円
8000万円
8500万円
9000万円
9500万円
1億円
~
上限なし
100万円
250万円
500万円
1000万円
1500万円
2000万円
2500万円
3000万円
3500万円
4000万円
4500万円
5000万円
5500万円
6000万円
6500万円
7000万円
7500万円
8000万円
8500万円
9000万円
9500万円
1億円
間取り
ワンルーム
1K
1DK
1LDK
2K
2DK
2LDK
3K
3DK
3LDK
4K
4DK
4LDK以上
専有面積
下限なし
20㎡
30㎡
40㎡
50㎡
60㎡
70㎡
80㎡
90㎡
100㎡
~
上限なし
20㎡
30㎡
40㎡
50㎡
60㎡
70㎡
80㎡
90㎡
100㎡
土地面積
下限なし
60㎡ (約18坪)
70㎡ (約21坪)
80㎡ (約24坪)
90㎡ (約27坪)
100㎡ (約30坪)
110㎡ (約33坪)
120㎡ (約36坪)
130㎡ (約39坪)
140㎡ (約42坪)
150㎡ (約45坪)
160㎡ (約48坪)
170㎡ (約51坪)
180㎡ (約54坪)
190㎡ (約57坪)
200㎡ (約60坪)
250㎡ (約75坪)
300㎡ (約90坪)
~
上限なし
60㎡ (約18坪)
70㎡ (約21坪)
80㎡ (約24坪)
90㎡ (約27坪)
100㎡ (約30坪)
110㎡ (約33坪)
120㎡ (約36坪)
130㎡ (約39坪)
140㎡ (約42坪)
150㎡ (約45坪)
160㎡ (約48坪)
170㎡ (約51坪)
180㎡ (約54坪)
190㎡ (約57坪)
200㎡ (約60坪)
250㎡ (約75坪)
300㎡ (約90坪)
建物面積
下限なし
60㎡ (約18坪)
70㎡ (約21坪)
80㎡ (約24坪)
90㎡ (約27坪)
100㎡ (約30坪)
110㎡ (約33坪)
120㎡ (約36坪)
130㎡ (約39坪)
140㎡ (約42坪)
150㎡ (約45坪)
160㎡ (約48坪)
170㎡ (約51坪)
180㎡ (約54坪)
190㎡ (約57坪)
200㎡ (約60坪)
250㎡ (約75坪)
300㎡ (約90坪)
~
上限なし
60㎡ (約18坪)
70㎡ (約21坪)
80㎡ (約24坪)
90㎡ (約27坪)
100㎡ (約30坪)
110㎡ (約33坪)
120㎡ (約36坪)
130㎡ (約39坪)
140㎡ (約42坪)
150㎡ (約45坪)
160㎡ (約48坪)
170㎡ (約51坪)
180㎡ (約54坪)
190㎡ (約57坪)
200㎡ (約60坪)
250㎡ (約75坪)
300㎡ (約90坪)
坪単価
下限なし
5万円
10万円
15万円
20万円
25万円
30万円
35万円
40万円
45万円
50万円
~
上限なし
5万円
10万円
15万円
20万円
25万円
30万円
35万円
40万円
45万円
50万円
築年数
指定なし
新築
3年以内
5年以内
10年以内
15年以内
20年以内
方位
北
北東
東
南東
南
南西
西
北西
おすすめ条件
ペット可・相談
楽器可・相談
情報公開日
指定なし
本日
3日以内
1週間以内
1ヶ月以内
0件
がマッチ
人気のあるこだわり条件
角地(1)
高台に立地(2)
日当り良好(3)
閑静な住宅街(3)
新築時図面あり(1)
修繕記録あり(1)
築10年以内(1)
駐車2台可能(2)
駐車3台以上可能(1)
TVインターホン(1)
複層ガラス(1)
デインプルキー(1)
システムキッチン(3)
IHクッキングヒーター(2)
食器洗浄乾燥機(1)
2口コンロ(1)
追いだき機能付き(1)
バス1坪以上(2)
温水洗浄便座(2)
トイレ2か所以上(2)
シャワー付き洗面台(2)
エアコンあり(4)
24時間換気システム(1)
省エネ給湯機(1)
ウッドデッキ・テラス(1)
LPG(6)
上水道(5)
下水道(4)
浄化槽(2)
全居室収納あり(1)
床下収納(1)
シューズBOX(2)
即引き渡し可能(3)
別荘(4)
田舎暮らし(5)
事業向け(1)
条件に合った物件数は、
0 件
です。
立地・環境
角地(1)
高台に立地(2)
日当り良好(3)
閑静な住宅街(3)
構造・工法・仕様
新築時図面あり(1)
修繕記録あり(1)
築年
築10年以内(1)
駐車・駐輪
駐車2台可能(2)
駐車3台以上可能(1)
管理・防犯
TVインターホン(1)
複層ガラス(1)
デインプルキー(1)
キッチン
システムキッチン(3)
IHクッキングヒーター(2)
食器洗浄乾燥機(1)
2口コンロ(1)
浴室
追いだき機能付き(1)
バス1坪以上(2)
トイレ
温水洗浄便座(2)
トイレ2か所以上(2)
洗面所
シャワー付き洗面台(2)
冷暖房・空調
エアコンあり(4)
24時間換気システム(1)
光熱設備
省エネ給湯機(1)
バルコニー・テラス
ウッドデッキ・テラス(1)
室内仕様・設備
LPG(6)
上水道(5)
下水道(4)
浄化槽(2)
収納
全居室収納あり(1)
床下収納(1)
シューズBOX(2)
費用・入居・引渡・条件
即引き渡し可能(3)
その他
別荘(4)
田舎暮らし(5)
事業向け(1)
条件に合った物件数は、
0 件
です。
アパート・マンション・一戸建て
/
駐車場
/
貸土地
/
店舗
/
事務所
/
倉庫・工場
新築分譲マンション
/
中古マンション
/
新築一戸建て
/
中古一戸建て
/
売土地
/
投資物件・その他
マンション
/
一戸建て
/
土地
建てる・リフォーム
物件掲載企業一覧
掲載希望の企業様へ
新潟の不動産情報サイト
サービス利用規約
運営会社
サイトマップ
プライバシーポリシー
お問い合わせ
リンク
Copyright (C)
株式会社 コモンライフ・コーポレーション
. All Rights Reserved.
新潟・長岡・柏崎の賃貸・マンション・アパート・住宅の不動産物件情報サイト
不動産検索サイト「らくすむ」及び関連サイトに記載の不動産情報は、会員規約に則り、情報提供会社様の責任のもとに発信されております。
不動産の賃借、購入に関しては賃借者、購入者ご自身が情報を確認され、会社企業様から説明を受けられたうえで判断をお願いいたします。
不動産検索サイト「らくすむ」及び関連サイトに記載の不動産情報、写真、デザイン、コンテンツなどの
無断転載・転用・複製
など禁止します。