物件掲載企業数:299|賃貸物件:3,028件|売買物件:3,227件|今週の登録物件:302
閲覧中のブラウザ(インターネットエクスプローラー)は非推奨ブラウザです。
物件が正しく表示されなかったり、正しく検索されない場合があります。最新のブラウザ(Google Chrome・Edgeなど)にてご利用お願いいたします。
  
ホーム会社情報物件種別選択 > 物件一覧

全エリア事務所物件情報

物件種別選択へ戻る
表示切替: 一覧表示 地図表示    並び替え:
画像 物件名
所在地
取扱店
面積
間取り
所在階
築年数
賃料
管理費等
共益費
敷金
保証金
礼金
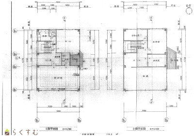
事務所仕様、長岡駅より徒歩圏内
物件画像
物件画像
物件画像
物件画像
詳細☆お気に入り★お気に入り
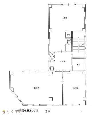
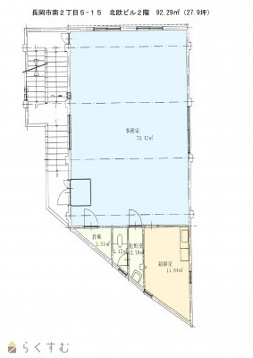
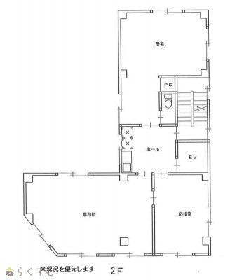
北欧ビル事務所2階
    新潟県長岡市南町2丁目5-15北欧ビル 事務所
    (事務所)
    92.29㎡
    (27.91坪)
    -
    2階
    不詳
    8万円
    なし
    なし
    2ヶ月
    なし
    なし
    写真たくさんあり!!
    山麓線すぐの好立地!
    物件画像
    物件画像
    物件画像
    物件画像
    詳細☆お気に入り★お気に入り
    ハロー心月
    101号室
      新潟県上越市春日野1-5-16ハロー心月101
      (事務所)
      42㎡
      (12.7坪)
      -
      1階
      30年
      8万円
      なし
      なし
      2ヶ月
      なし
      なし
      写真たくさんあり!!
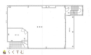
      長岡駅にほど近い貸事務所
      物件画像
      物件画像
      物件画像
      物件画像
      詳細☆お気に入り★お気に入り
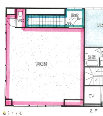
      石丸貸事務所
        新潟県長岡市南町1丁目9番21号
        (事務所)
        99.17㎡
        (29.99坪)
        -
        2階
        56年
        8万円
        なし
        なし
        3ヶ月
        なし
        なし
        写真たくさんあり!!
        南吉田駅、116号線、Next Generation Townにほど近い開発が進んでいるエリアに建つ事務所です。賃料は8万円(税込み)です。内覧も可能ですのでお気軽にご連絡ください。
        物件画像
        物件画像
        物件画像
        物件画像
        詳細☆お気に入り★お気に入り
        燕市吉田貸事務所
          新潟県燕市吉田西太田785番地18
          (事務所)
          238.38㎡
          (72.1坪)
          -
          -
          29年
          8万円
          なし
          なし
          3ヶ月
          なし
          なし
          写真たくさんあり!!
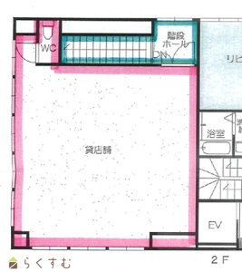
          貸事務所スペース21/2階中央、20.6坪、国道8号線沿い、入居:令和8年4月以降
          物件画像
          物件画像
          物件画像
          物件画像
          詳細☆お気に入り★お気に入り
          柏崎市土合貸事務所スペース21/2階中央
            新潟県柏崎市土合628-1
            (事務所)
            68.12㎡
            (20.6坪)
            -
            2階
            36年
            8万円
            なし
            なし
            1ヶ月
            なし
            1ヶ月
            写真たくさんあり!!
            上越の真ん中にあるテナントビル
            物件画像
            物件画像
            物件画像
            物件画像
            詳細☆お気に入り★お気に入り
            木田中央ビル
              新潟県上越市木田2丁目7-23
              (事務所)
              38.86㎡
              (11.75坪)
              -
              2階
              44年
              8.58万円
              なし
              なし
              2ヶ月
              なし
              1ヶ月
              写真たくさんあり!!
              県道沿いにある事務所の1階部分です。駐車場2台賃料に込。
              物件画像
              物件画像
              物件画像
              物件画像
              詳細☆お気に入り★お気に入り
              春日新田2丁目 貸事務所
                新潟県上越市春日新田2丁目11番11号
                (事務所)
                121.3㎡
                (36.69坪)
                -
                1階
                45年
                8.8万円
                なし
                なし
                2ヶ月
                なし
                0.5ヶ月
                写真たくさんあり!!
                物件画像
                物件画像
                物件画像
                物件画像
                詳細☆お気に入り★お気に入り
                棚橋不動産 関東町ビル(旧斉木ビル)
                301号室
                  新潟県長岡市関東町3番地9
                  (事務所)
                  78.42㎡
                  (23.72坪)
                  -
                  3階
                  52年
                  8.8万円
                  なし
                  なし
                  2ヶ月
                  なし
                  1ヶ月
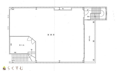
                  事務所の2階部分です。敷地内駐車場4台込みです!
                  物件画像
                  物件画像
                  物件画像
                  物件画像
                  詳細☆お気に入り★お気に入り
                  港町2丁目 貸事務所2階
                    新潟県上越市港町2-10-8
                    (事務所)
                    73.28㎡
                    (22.16坪)
                    -
                    2階
                    29年
                    8.8万円
                    なし
                    なし
                    16万円
                    なし
                    なし
                    写真たくさんあり!!
                    物件画像
                    物件画像
                    物件画像
                    物件画像
                    詳細☆お気に入り★お気に入り
                    諸橋ビル 3階事務所
                    C号室
                      新潟県長岡市坂之上町2丁目3番地他
                      (事務所)
                      50.5㎡
                      (15.27坪)
                      -
                      3階
                      44年
                      8.8万円
                      5,500円/月
                      なし
                      2ヶ月
                      なし
                      なし
                      写真たくさんあり!!
                      駐車場2台家賃込み !
                      物件画像
                      物件画像
                      物件画像
                      物件画像
                      詳細☆お気に入り★お気に入り
                      春日新田2丁目 貸事務所
                        新潟県上越市春日新田2丁目11-11
                        (事務所)
                        121.3㎡
                        (36.69坪)
                        -
                        1階
                        45年
                        8.8万円
                        なし
                        なし
                        2ヶ月
                        なし
                        0.5ヶ月
                        写真たくさんあり!!
                        人通り・車通りの多い488号線にある広めな事務所です!駐車場2台賃料込み★
                        物件画像
                        物件画像
                        物件画像
                        物件画像
                        詳細☆お気に入り★お気に入り
                        【人通り◎】春日新田貸事務所1F
                          新潟県上越市春日新田2丁目11-111F
                          (事務所)
                          121.3㎡
                          (36.69坪)
                          -
                          1階
                          45年
                          8.8万円
                          なし
                          なし
                          2ヶ月
                          なし
                          0.5ヶ月
                          写真たくさんあり!!
                          約24坪の事務所です。
                          物件画像
                          物件画像
                          物件画像
                          物件画像
                          詳細☆お気に入り★お気に入り
                          東蔵王2丁目 『吉沢ビル 左棟 2階』
                            新潟県長岡市東蔵王2-6-20
                            (事務所)
                            79.2㎡
                            (23.95坪)
                            -
                            2階
                            34年
                            8.9万円
                            なし
                            なし
                            2ヶ月
                            なし
                            なし
                            写真たくさんあり!!
                            長岡駅より徒歩5分、事務所に最適。エアコン、敷地内駐車場1台付。
                            物件画像
                            物件画像
                            物件画像
                            物件画像
                            詳細☆お気に入り★お気に入り
                            レーベン長岡
                            202号室
                              新潟県長岡市城内町3丁目5-1
                              (事務所)
                              63.96㎡
                              (19.34坪)
                              -
                              2階
                              41年
                              9万円
                              なし
                              なし
                              2ヶ月
                              なし
                              なし
                              写真たくさんあり!!
                              幹線道路沿い交通アクセス良好!
                              物件画像
                              物件画像
                              物件画像
                              物件画像
                              詳細☆お気に入り★お気に入り
                              妙高市柳井田4丁目 貸事務所 2階
                              2号室
                                新潟県妙高市柳井田町4丁目11番16号
                                (事務所)
                                86.74㎡
                                (26.23坪)
                                -
                                2階
                                不詳
                                9.438万円
                                なし
                                なし
                                25.74万円
                                なし
                                なし
                                写真たくさんあり!!
                                事務所利用や、店舗としても利用できます。
                                物件画像
                                物件画像
                                物件画像
                                物件画像
                                詳細☆お気に入り★お気に入り
                                スノウッド鴨島貸店舗・事務所
                                  上越市鴨島1丁目3番48号
                                  (事務所)
                                  49.5㎡
                                  (14.97坪)
                                  -
                                  1階
                                  28年
                                  9.5万円
                                  なし
                                  あり
                                  3ヶ月
                                  なし
                                  なし
                                  写真たくさんあり!!
                                  物件画像
                                  物件画像
                                  物件画像
                                  物件画像
                                  詳細☆お気に入り★お気に入り
                                  棚橋不動産 関東町ビル(旧斉木ビル)
                                  201号室
                                    新潟県長岡市関東町3番地9
                                    (事務所)
                                    78.42㎡
                                    (23.72坪)
                                    -
                                    2階
                                    52年
                                    9.9万円
                                    なし
                                    なし
                                    2ヶ月
                                    なし
                                    1ヶ月
                                    主要道路沿い 2階貸事務所
                                    物件画像
                                    物件画像
                                    物件画像
                                    物件画像
                                    詳細☆お気に入り★お気に入り
                                    小千谷市城内4丁目ビル2階 貸事務所
                                    A号室
                                      新潟県小千谷市城内4丁目11番23号A室
                                      (事務所)
                                      65.52㎡
                                      (19.81坪)
                                      -
                                      2階
                                      25年
                                      9.9万円
                                      なし
                                      なし
                                      2ヶ月
                                      なし
                                      1ヶ月
                                      写真たくさんあり!!
                                      駐車場1台無料
                                      物件画像
                                      物件画像
                                      物件画像
                                      物件画像
                                      詳細☆お気に入り★お気に入り
                                      坂之上町事務所
                                        新潟県長岡市坂之上町3丁目4番2号
                                        (事務所)
                                        57.5㎡
                                        (17.39坪)
                                        -
                                        2階
                                        27年
                                        10万円
                                        なし
                                        なし
                                        3ヶ月
                                        なし
                                        なし
                                        写真たくさんあり!!
                                        ☆新潟中央ICまで9分 事務所としての利用に☆
                                        物件画像
                                        物件画像
                                        物件画像
                                        物件画像
                                        詳細☆お気に入り★お気に入り
                                        【江南区平賀】 貸事務所 B 28.34坪
                                          新潟市江南区平賀76番地1
                                          (事務所)
                                          93.69㎡
                                          (28.34坪)
                                          -
                                          1階
                                          31年
                                          10万円
                                          なし
                                          なし
                                          2ヶ月
                                          なし
                                          1ヶ月
                                          表示切替: 一覧表示 地図表示    並び替え:
                                          0件がマッチ
                                          基本条件
                                          物件種別 事務所
                                          賃料


                                          間取り
                                          所在階
                                          面積
                                          築年数
                                          方位
                                          おすすめ条件
                                          情報公開日
                                          0件がマッチ
                                          人気のあるこだわり条件