物件掲載企業数:295|賃貸物件:3,620件|売買物件:3,318件|今週の登録物件:227
閲覧中のブラウザ(インターネットエクスプローラー)は非推奨ブラウザです。
物件が正しく表示されなかったり、正しく検索されない場合があります。最新のブラウザ(Google Chrome・Edgeなど)にてご利用お願いいたします。
  

東北中学校区貸事務所一覧

表示切替: 一覧表示 地図表示    並び替え:
画像 物件名
所在地
取扱店
面積
間取り
所在階
築年数
賃料
管理費等
共益費
敷金
保証金
礼金
物件画像
物件画像
物件画像
物件画像
詳細☆お気に入り★お気に入り
シバノビル 2F
    新潟県長岡市福住2丁目5-22シバノビル2F
    (事務所)
    43㎡
    (13坪)
    -
    2階
    不詳
    5万円
    なし
    なし
    1ヶ月
    なし
    なし
    写真たくさんあり!!
    東パイパス、幹線道路すぐそば。
    物件画像
    物件画像
    物件画像
    物件画像
    詳細☆お気に入り★お気に入り
    稲葉 『貸事務所 2階』
      新潟県長岡市稲葉町50-1
      (事務所)
      68㎡
      (20.57坪)
      -
      2階
      51年
      7万円
      なし
      なし
      2ヶ月
      なし
      なし
      愛宕交差点近くです。
      物件画像
      物件画像
      物件画像
      物件画像
      詳細☆お気に入り★お気に入り
      小幡ビル 
      202号室
        新潟県長岡市東神田1丁目4-3
        (事務所)
        44.82㎡
        (13.55坪)
        -
        2階
        38年
        7.15万円
        なし
        なし
        2ヶ月
        なし
        なし
        長岡駅まで徒歩5分以内!駅周辺で事業を始めたい方お勧めです
        物件画像
        物件画像
        物件画像
        物件画像
        詳細☆お気に入り★お気に入り
        サンダイヤビル
        202号室
          新潟県長岡市福住2丁目2番5号
          (事務所)
          66.12㎡
          (20坪)
          -
          -
          46年
          7.7万円
          なし
          なし
          3ヶ月
          なし
          なし
          写真たくさんあり!!
          長岡駅まで徒歩5分以内!駅周辺で事業を始めたい方お勧めです
          物件画像
          物件画像
          物件画像
          物件画像
          詳細☆お気に入り★お気に入り
          サンダイヤビル
            新潟県長岡市福住2丁目2番5号
            (事務所)
            132.24㎡
            (40坪)
            -
            3階
            46年
            12万円
            なし
            なし
            3ヶ月
            なし
            なし
            写真たくさんあり!!
            長岡駅徒歩圏の貸事務所 駐車場2台付(縦列)
            物件画像
            物件画像
            物件画像
            物件画像
            詳細☆お気に入り★お気に入り
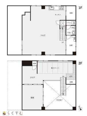
            平井ビル 4階事務所
              新潟県長岡市今朝白1丁目10-7
              (事務所)
              69.52㎡
              (21.02坪)
              -
              4階
              33年
              14.85万円
              なし
              あり
              40.5万円
              なし
              なし
              写真たくさんあり!!
              1階フリースペース+2階個室 ◆事務所利用や様々な用途に最適な多機能レイアウト◆ 
              物件画像
              物件画像
              物件画像
              物件画像
              詳細☆お気に入り★お気に入り
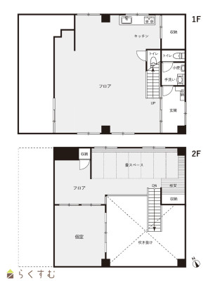
              ADI福住ビル
                新潟県長岡市福住2丁目4-44
                (事務所)
                152.24㎡
                (46.05坪)
                -
                -
                54年
                16.5万円
                なし
                あり
                2ヶ月
                なし
                1ヶ月
                長岡駅から徒歩8分、日当たり良好の角地です。テナントや事務所にちょうど良い広さです。
                物件画像
                物件画像
                物件画像
                物件画像
                詳細☆お気に入り★お気に入り
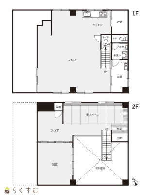
                ADI福住ビル
                  新潟県長岡市福住2丁目4-44
                  (事務所)
                  150㎡
                  (45.37坪)
                  -
                  1.2階
                  54年
                  16.5万円
                  なし
                  あり
                  2ヶ月
                  なし
                  1ヶ月
                  写真たくさんあり!!
                  駅近くで利便性の良い立地♪駐車場5台付きで事務所や倉庫など多様な使い方ができます。
                  物件画像
                  物件画像
                  物件画像
                  物件画像
                  詳細☆お気に入り★お気に入り
                  ADI福住ビル
                  101号室
                    新潟県長岡市福住2-4-44
                    (事務所)
                    150㎡
                    (45.37坪)
                    -
                    1階
                    54年
                    16.5万円
                    なし
                    3300
                    2ヶ月
                    なし
                    1ヶ月
                    写真たくさんあり!!
                    表示切替: 一覧表示 地図表示    並び替え:
                    0件がマッチ
                    基本条件
                    物件種別 事務所
                    賃料


                    間取り
                    所在階
                    面積
                    築年数
                    方位
                    おすすめ条件
                    情報公開日
                    0件がマッチ
                    人気のあるこだわり条件