物件掲載企業数:300|賃貸物件:3,168件|売買物件:3,233件|今週の登録物件:413
閲覧中のブラウザ(インターネットエクスプローラー)は非推奨ブラウザです。
物件が正しく表示されなかったり、正しく検索されない場合があります。最新のブラウザ(Google Chrome・Edgeなど)にてご利用お願いいたします。
  

千手小学校区貸事務所一覧

表示切替: 一覧表示 地図表示    並び替え:
画像 物件名
所在地
取扱店
面積
間取り
所在階
築年数
賃料
管理費等
共益費
敷金
保証金
礼金
7月中旬より入居可能となります。賃料は63000円駐車場は1台につき8000円4台まで利用可能です
物件画像
物件画像
物件画像
物件画像
詳細☆お気に入り★お気に入り
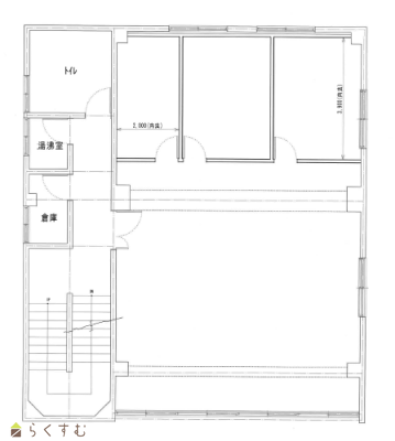
宮原ビル
A号室
    新潟県長岡市宮原3-2-8
    (事務所)
    43.5㎡
    (13.15坪)
    -
    2階
    44年
    6.3万円
    なし
    なし
    3ヶ月
    なし
    なし
    写真たくさんあり!!
    物件画像
    物件画像
    物件画像
    物件画像
    詳細☆お気に入り★お気に入り
    宮原ビル
    C号室
      新潟県長岡市宮原3-2-8
      (事務所)
      57.75㎡
      (17.46坪)
      -
      3階
      44年
      7万円
      なし
      なし
      3ヶ月
      なし
      なし
      写真たくさんあり!!
      長岡駅にほど近い貸事務所
      物件画像
      物件画像
      物件画像
      物件画像
      詳細☆お気に入り★お気に入り
      石丸貸事務所
        新潟県長岡市南町1丁目9番21号
        (事務所)
        99.17㎡
        (29.99坪)
        -
        2階
        56年
        8万円
        なし
        なし
        3ヶ月
        なし
        なし
        写真たくさんあり!!
        事務所仕様、長岡駅より徒歩圏内
        物件画像
        物件画像
        物件画像
        物件画像
        詳細☆お気に入り★お気に入り
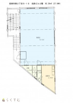
        北欧ビル事務所2階
          新潟県長岡市南町2丁目5-15北欧ビル 事務所
          (事務所)
          92.29㎡
          (27.91坪)
          -
          2階
          不詳
          8万円
          なし
          なし
          2ヶ月
          なし
          なし
          写真たくさんあり!!
          物件画像
          物件画像
          物件画像
          物件画像
          詳細☆お気に入り★お気に入り
          太田ビル、201号
          201号室
          • 新着
          新潟県長岡市南町1丁目7-17太田ビル201
          (事務所)
          35㎡
          (10.58坪)
          -
          2階
          不詳
          10万円
          なし
          なし
          2ヶ月
          なし
          なし
          広くて駐車場2台あり 駅まで徒歩15分
          物件画像
          物件画像
          物件画像
          物件画像
          詳細☆お気に入り★お気に入り
          長岡市南町1丁目1-2-30 TNビル2F
          • 新着
          新潟県長岡市南町1丁目2-30TNビル2F
          (事務所)
          118.08㎡
          (35.71坪)
          -
          2階
          不詳
          14.3万円
          なし
          なし
          2ヶ月
          なし
          なし
          物件画像
          物件画像
          物件画像
          物件画像
          詳細☆お気に入り★お気に入り
          高木商会ビル、1F
            新潟県長岡市千手3丁目2-25
            (事務所)
            168.79㎡
            (51.05坪)
            -
            1階
            不詳
            22万円
            なし
            なし
            1ヶ月
            なし
            なし
            表示切替: 一覧表示 地図表示    並び替え:
            0件がマッチ
            基本条件
            物件種別 事務所
            賃料


            間取り
            所在階
            面積
            築年数
            方位
            おすすめ条件
            情報公開日
            0件がマッチ
            人気のあるこだわり条件