物件掲載企業数:297|賃貸物件:3,610件|売買物件:3,333件|今週の登録物件:271
閲覧中のブラウザ(インターネットエクスプローラー)は非推奨ブラウザです。
物件が正しく表示されなかったり、正しく検索されない場合があります。最新のブラウザ(Google Chrome・Edgeなど)にてご利用お願いいたします。
  

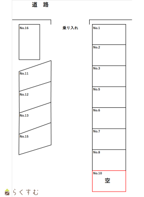
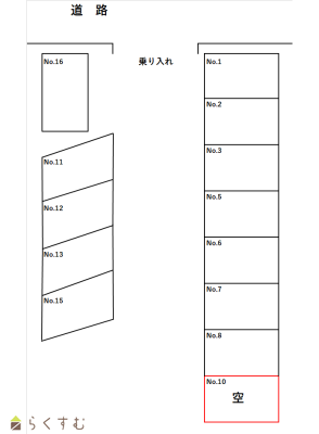
神田小学校区月極駐車場一覧

表示切替: 一覧表示 地図表示    並び替え:
画像 物件名
所在地
取扱店
面積
間取り
所在階
築年数
賃料
管理費等
共益費
敷金
保証金
礼金
物件画像
物件画像
物件画像
物件画像
詳細☆お気に入り★お気に入り
昭和パーキング
    新潟県長岡市昭和2丁目2777-9
    (駐車場)
    -
    -
    -
    -
    0.7万円
    なし
    なし
    なし
    なし
    なし
      西神田1丁目にある駐車場! 月額賃料7,000円★
      物件画像
      物件画像
      物件画像
      物件画像
      詳細☆お気に入り★お気に入り
      高津パーキング
        新潟県長岡市西神田町1丁目6-15
        (駐車場)
        -
        -
        -
        -
        0.7万円
        なし
        なし
        なし
        なし
        なし
          石内1丁目 『柿本貸し駐車場』 国道8号線もすぐそばです。
          物件画像
          物件画像
          物件画像
          物件画像
          詳細☆お気に入り★お気に入り
          石内1 『柿本貸駐車場』
            新潟県長岡市石内1-3-1
            (駐車場)
            -
            -
            -
            -
            0.8万円
            なし
            なし
            なし
            なし
            なし
            写真たくさんあり!!
              敷地内、前面道路に消雪パイプがあるので冬場も安心です♪
              物件画像
              物件画像
              物件画像
              物件画像
              詳細☆お気に入り★お気に入り
              渡辺パーキング No.13
                新潟県長岡市西神田町2-8-3
                (駐車場)
                -
                -
                -
                -
                0.8万円
                なし
                なし
                なし
                なし
                なし
                  バイクガレージ(サイズ制限あり、入庫してお試しください)
                  物件画像
                  物件画像
                  物件画像
                  物件画像
                  詳細☆お気に入り★お気に入り
                  ラッキーガレージ(バイク)No.5
                    新潟県長岡市東新町478-20
                    (駐車場)
                    -
                    -
                    -
                    -
                    0.9万円
                    なし
                    なし
                    なし
                    なし
                    なし
                      物件画像
                      物件画像
                      物件画像
                      物件画像
                      詳細☆お気に入り★お気に入り
                      伊丹駐車場 D区画
                        新潟県長岡市西神田町1丁目2-14
                        (駐車場)
                        -
                        -
                        -
                        -
                        1万円
                        なし
                        なし
                        なし
                        なし
                        なし
                          物件画像
                          物件画像
                          物件画像
                          物件画像
                          詳細☆お気に入り★お気に入り
                          ニチリョウパーキング
                            新潟県長岡市神田町2丁目2-5
                            (駐車場)
                            -
                            -
                            -
                            -
                            1.1万円
                            なし
                            なし
                            なし
                            なし
                            なし
                              シャッター付駐車場空きがでました。
                              物件画像
                              物件画像
                              物件画像
                              物件画像
                              詳細☆お気に入り★お気に入り
                              伊丹駐車場 №3
                                新潟県長岡市西神田町1丁目2-14
                                (駐車場)
                                -
                                -
                                -
                                -
                                1.5万円
                                なし
                                なし
                                1ヶ月
                                なし
                                なし
                                写真たくさんあり!!
                                  表示切替: 一覧表示 地図表示    並び替え:
                                  0件がマッチ
                                  基本条件
                                  物件種別 駐車場
                                  賃料


                                  間取り
                                  所在階
                                  面積
                                  築年数
                                  方位
                                  おすすめ条件
                                  情報公開日
                                  0件がマッチ
                                  人気のあるこだわり条件