| 物件コード | 00368-100001 | ||
|---|---|---|---|
| 物件名 | 春日山管財ビル 1F部分 | ||
| 交通 | 駅:妙高はねうまライン 春日山駅から徒歩16分、バス:春日野一丁目から徒歩2分 | ||
| 所在地 | 新潟県上越市大豆1丁目8-43 | ||
| 物件種別 | 事務所 | ||
| 総戸数 | 1戸 | ||
| 構造 | 鉄骨 | 階建 | 地上2階建 |
| 所在階/階数 | 1階/2階 | 号室 | - |
| 面積 | 404.52㎡ (122.36坪) | 方位 | - |
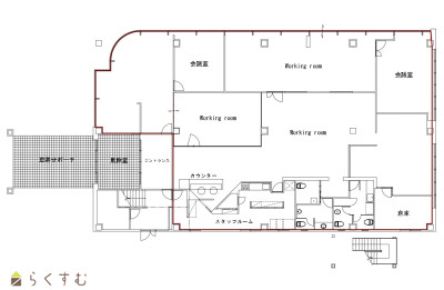
| 間取り |
|
||
| 賃料 | 66万円/月
(税込み金額) |
管理費 |
55,000円/月
共益費含む |
| 礼金 | - | 敷金 | 360万円
家賃の6ヶ月分 |
| ほか初期費用 | - | その他諸費用 | - |
| 更新料 | - | 火災(家財)保険 | - |
| 共益費 | - | 町内費 | - |
| 駐車場 | 専有20台 | バイク料金 | - |
| 鍵交換費 | - | 清掃料 | - |
| 更新事務手数料 | - | ||
| 保証区分 |
保証会社+緊急連絡先 |
||
| 保証会社 |
区分:加入要 保証会社名:その他 (相談の上決定します) - |
||
| 連帯保証人 |
区分:不要 - |
||
| 仲介手数料 | - | ||
| 築年月 | 1997年5月(築29年) | ||
| 利用制限 | ペット:相談 | ||
| 学校区 | 春日小学校(534m)・春日中学校(584m) | ||
| 設備 | 1階、オートロック、24時間セキュリティー、エアコン、男女トイレ別、即引き渡し可、駐車場あり | ||
| 入居時期 | 相談 | ||
| 取引態様 | 貸主 | ||
| 備考 | ※専有部分は、1F間取り図より赤枠で囲われたエリアとなります。車寄せポーチから風除室、エントランスまでのエリアは共有スペースとなります。 ※エアコンは2024年に入れ替え済みです。 ※保証区分についての指定は無く、相談の上内容を決定します。 |
||
| 手数料負担割合/配分割合 | 貸主:-% 借主:-% / 元付:-% 客付:-% | ||
| 情報登録日 | 2025/06/27 | 次回更新予定日 | 2026/06/06 |
|
|
|
|
| TEL: | 025-543-9402 |
|---|---|
| 所在地: | 新潟県上越市五智1-2-19 |
| 交通: | 妙高はねうまライン「直江津駅」より徒歩10分 |
| 営業時間: | 平日9:00~17:00/定休日: |
| 免許番号: | 新潟県知事(1)第5746号 |
| 所属団体名: | 公社 新潟県宅地建物取引協会 上越支部 |
| 取引態様: | 貸主 |