らくすむ
http://www.rakusumu.com
幹線道路(上越大通り)沿い、周辺には多くの商業施設や事業所が立ち並んでいます。
賃料には共益費・駐車料(9台分)が含まれています。使用面積にご希望ありましたらご相談ください。
物件コード 00209-100148
物件名 山吉ビル1F-A
交通 駅:妙高はねうまライン 春日山駅から徒歩25分
所在地 新潟県上越市藤巻8-59山吉ビル1階
物件種別 事務所
総戸数 -
構造 鉄骨 階建 地上2階建
所在階/階数 1階/2階 号室 -
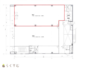
面積 194.96㎡ (58.97坪) 方位 -
間取り

賃料 33万円/月
共益費、駐車料(9台分)込み
管理費 -
礼金 - 敷金 4ヶ月
ほか初期費用 - その他諸費用 -
更新料 - 火災(家財)保険 -
共益費 - 町内費 実費負担
駐車場 - バイク料金 -
鍵交換費 - 清掃料 -
更新事務手数料 -
保証区分 保証会社のみ
保証会社 区分:加入要
保証会社名:その他 (CIZ)
-
家賃保証金 297,000円
別途事務手数料
連帯保証人 区分:不要
-
仲介手数料 330,000円
築年月 1988年6月(築37年)
利用制限 -
学校区 高志小学校(805m)・春日中学校(1,988m)
設備 1階、融雪設備あり、エアコン、OAフロア、駐車場あり
入居時期 相談
取引態様 仲介
備考 間仕切壁設置工事後の引渡し(業種により要相談)
冬期間除雪費の負担あり
物件敷地内に別途駐車場あり(応相談)
手数料負担割合/配分割合 貸主:-%   借主:-% / 元付:-%   客付:-%  
情報登録日 2026/02/17 次回更新予定日 2026/03/07
物件画像 物件画像
物件画像 物件画像
担当取扱い店舗情報
株式会社マルケー不動産
TEL: 025-544-2724
所在地: 新潟県上越市西本町2-3-21
交通: 直江津駅
営業時間: 8:30~17:00/定休日:第2.4土・日・祝
免許番号: 新潟県知事(10)第2765号
所属団体名: 公社新潟県宅地建物取引協会 上越支部
取引態様: 仲介

この物件の地図