| 賃料には共益費・駐車料(7台分)が含まれています。使用面積にご希望ありましたらご相談ください。 | |||
| 物件コード | 00209-100139 | ||
|---|---|---|---|
| 物件名 | 山吉ビル1F-A | ||
| 交通 | 駅:妙高はねうまライン 春日山駅から徒歩25分 | ||
| 所在地 | 新潟県上越市藤巻8-59山吉ビル1階 | ||
| 物件種別 | 店舗 | ||
| 総戸数 | - | ||
| 構造 | 鉄骨 | 階建 | 地上2階建 | 
| 所在階/階数 | 1階/2階 | 号室 | - | 
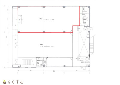
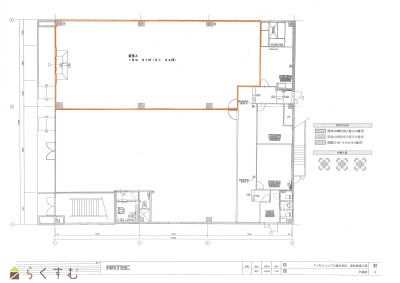
| 面積 | 189.57㎡ (57.34坪) | 方位 | - | 
| 間取り | 
						 | 
					||
| 賃料 | 33万円/月
								
								 共益費、駐車料(7台分)込み  | 
							管理費 | - | 
| 礼金 | - | 敷金 | 4ヶ月
								
								 | 
						
| ほか初期費用 | - | その他諸費用 | - | 
| 更新料 | - | 火災(家財)保険 | - | 
| 共益費 | - | 町内費 | 実費負担 | 
| 駐車場 | - | バイク料金 | - | 
| 鍵交換費 | - | 清掃料 | - | 
| 更新事務手数料 | - | ||
| 保証区分 | 
								保証会社のみ | 
						||
| 保証会社 | 
							   区分:加入要 保証会社名:その他 (CIZ) -  | 
							
						||
| 家賃保証金 | 
							297,000円							
															 別途事務手数料  | 
						||
| 連帯保証人 | 
							   区分:不要 -  | 
						||
| 仲介手数料 | 
								
																	330,000円
									 | 
							
						||
| 築年月 | 1988年6月(築37年) | ||
| 利用制限 | - | ||
| 学校区 | 高志小学校(805m)・春日中学校(1,988m) | ||
| 設備 | 1階、融雪設備あり、エアコン、男女トイレ別、駐車場あり | ||
| 入居時期 | 相談 | ||
| 取引態様 | 仲介 | ||
| 備考 | 共用部(休憩室、更衣室、会議室)の使用は要相談 間仕切壁設置工事後の引渡し(業種により要相談) 冬期間除雪費の負担あり 物件敷地内に別途駐車場あり(応相談)  | 
					||
| 手数料負担割合/配分割合 | 貸主:-% 借主:-% / 元付:-% 客付:-% | ||
| 情報登録日 | 2025/05/02 | 次回更新予定日 | 2025/11/19 | 
							 
						 | 
						
							 
						 | 
					
							 
						 | 
						
							 
						 | 
					
| TEL: | 025-544-2724 | 
|---|---|
| 所在地: | 新潟県上越市西本町2-3-21 | 
| 交通: | 直江津駅 | 
| 営業時間: | 8:30~17:00/定休日:第2.4土・日・祝 | 
| 免許番号: | 新潟県知事(10)第2765号 | 
| 所属団体名: | 公社新潟県宅地建物取引協会 上越支部 | 
| 取引態様: | 仲介 |