| 長岡駅から徒歩8分、日当たり良好の角地です。テナントや事務所にちょうど良い広さです。 | |||
| 物件コード | 00201-100122 | ||
|---|---|---|---|
| 物件名 | ADI福住ビル | ||
| 交通 | 駅:信越線 長岡駅から徒歩6分、バス:福住から徒歩3分 | ||
| 所在地 | 新潟県長岡市福住2丁目4-44 | ||
| 物件種別 | 事務所 | ||
| 総戸数 | - | ||
| 構造 | 鉄筋コン | 階建 | - |
| 所在階/階数 | 1.2階 | 号室 | - |
| 面積 | 150㎡ (45.37坪) | 方位 | - |
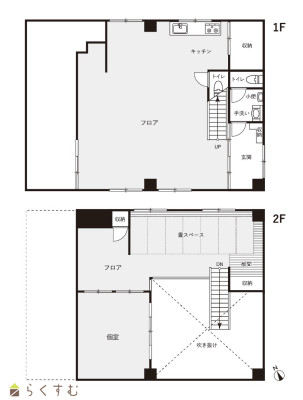
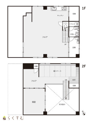
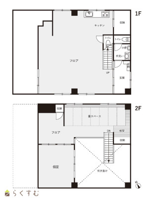
| 間取り |
|
||
| 賃料 | 16.5万円/月
|
管理費 | - |
| 礼金 | 1ヶ月
|
敷金 | 2ヶ月
|
| ほか初期費用 | - | その他諸費用 | - |
| 更新料 | - | 火災(家財)保険 |
18,500円
|
| 共益費 |
3,300円
|
町内費 | - |
| 駐車場 |
敷地内3台駐車可能です |
バイク料金 | - |
| 鍵交換費 | - | 清掃料 | - |
| 更新事務手数料 | - | ||
| 保証区分 |
保証会社のみ |
||
| 保証会社 |
区分:加入要 保証会社名:ジェイリース 各社各プランでご利用いただけます。 |
||
| 連帯保証人 |
区分:不要 - |
||
| 仲介手数料 |
181,500円
|
||
| 築年月 | 1971年6月(築54年) | ||
| 利用制限 | 法人:可、子供:不可、ペット:不可、楽器:不可、事務所利用:可 | ||
| 学校区 | 阪之上小学校(426m)・東北中学校(1,283m) | ||
| 設備 | 1階、エアコン、男女トイレ別、即引き渡し可、駐車場あり | ||
| 入居時期 | 即入居可 | ||
| 取引態様 | 仲介 | ||
| 備考 | 長岡駅から徒歩8分、日当たり良好の角地です。テナントや事務所にちょうど良い広さです。 | ||
| 手数料負担割合/配分割合 | 貸主:0% 借主:100% / 元付:50% 客付:50% | ||
| 情報登録日 | 2026/04/30 | 次回更新予定日 | 2026/06/05 |
|
|
|
|
| TEL: | 0258-94-6123 |
|---|---|
| 所在地: | 新潟県長岡市西神田町1丁目6-23 チサンマンション西神田1階 |
| 交通: | 長岡駅 |
| 営業時間: | 10:00~19:00/定休日:日曜:祝日 |
| 免許番号: | 新潟県知事(2)第5322号 |
| 所属団体名: | 公社新潟県宅地建物取引協会長岡支部 |
| 取引態様: | 仲介 |