| 物件コード | 00160-100021 | ||
|---|---|---|---|
| 物件名 | 春日新田5丁目短期貸家 | ||
| 交通 | 駅:妙高はねうまライン 直江津駅から徒歩25分、バス:春日新田五丁目から徒歩2分 | ||
| 所在地 | 新潟県上越市春日新田5丁目9番13号 | ||
| 物件種別 | アパート・マンション・一戸建て | ||
| 総戸数 | - | ||
| 構造 | 木造 | 階建 | 地上2階建 |
| 所在階/階数 | - | 号室 | - |
| 面積 | 151.15㎡ (45.72坪) | 方位 | - |
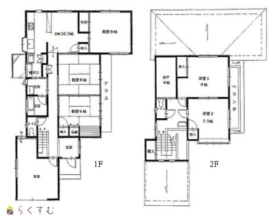
| 間取り | 5DK (和室:8畳、8畳、6畳) (洋室:9、7.5)
DK10.5 |
||
| 賃料 | 7.5万円/月
|
管理費 | - |
| 礼金 | 1ヶ月
|
敷金 | 1ヶ月
|
| ほか初期費用 | - | その他諸費用 | - |
| 更新料 | - | 火災(家財)保険 | 別途借主にて加入が必要 |
| 共益費 | - | 町内費 | 別途借主にて支払 |
| 駐車場 | 賃料に含む | バイク料金 | - |
| 鍵交換費 | - | 清掃料 | - |
| 更新事務手数料 | - | ||
| 保証区分 |
連帯保証人+緊急連絡先 |
||
| 保証会社 |
区分:指定なし - |
||
| 連帯保証人 |
区分:要 - |
||
| 仲介手数料 |
82,500円
|
||
| 築年月 | 1980年11月(築45年) | ||
| 利用制限 | - | ||
| 学校区 | 春日新田小学校(479m)・直江津東中学校(890m) | ||
| 設備 | 閑静な住宅街、日当り良好、駐車2台可、トイレ2か所以上、洗面所独立、エアコン3基、都市ガス、公営水道、下水、押入 | ||
| 入居時期 | 相談 | ||
| 取引態様 | 仲介 | ||
| 備考 | 仮住まい等短期専門の貸家です。(更新なし) | ||
| 手数料負担割合/配分割合 | 貸主:-% 借主:100% / 元付:-% 客付:-% | ||
| 情報登録日 | 2025/06/21 | 次回更新予定日 | 2026/03/07 |
|
|
|
|
| TEL: | 025-520-7103 |
|---|---|
| 所在地: | 新潟県上越市下門前1705 |
| 交通: | はねうまライン 直江津駅 |
| 営業時間: | 9:00~18:00/定休日:日曜・祝祭日 |
| 免許番号: | 新潟県知事(4)第4991号 |
| 所属団体名: | 新潟県宅地建物取引業協会 上越支部 |
| 取引態様: | 仲介 |