| 2022年4月からインターネット無料!学生さんにピッタリ! | |||
| 物件コード | 00131-100088 | ||
|---|---|---|---|
| 物件名 | コーポラスミトモA棟 | ||
| 交通 | 駅:長岡から徒歩10分、バス:今朝白1丁目から徒歩3分 | ||
| 所在地 | 新潟県長岡市今朝白1丁目14-48A棟 | ||
| 物件種別 | アパート・マンション・一戸建て | ||
| 総戸数 | 20戸 | ||
| 構造 | 木造 | 階建 | 地上2階建 | 
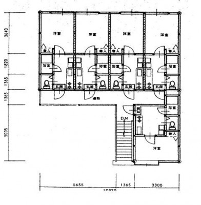
| 所在階/階数 | 2階/2階 | 号室 | 203号室 | 
| 面積 | 17.6㎡ (5.32坪) | 方位 | 北 | 
| 間取り | 1K (洋室:6.5)
						 | 
					||
| 賃料 | 3万円/月
								
								 | 
							管理費 | - | 
| 礼金 | 1ヶ月
								
								 | 
							敷金 | 1ヶ月
								
								 | 
						
| ほか初期費用 | - | その他諸費用 | - | 
| 更新料 | - | 火災(家財)保険 | 
																									
										18,000円
										 2年間  | 
						
| 共益費 | 																	
										3,000円
										 | 
							町内費 | 
																									
										240円
										 1年間2,400円  | 
						
| 駐車場 | - | バイク料金 | - | 
| 鍵交換費 | - | 清掃料 | - | 
| 水道料金 | 
									2,000円
									 | 
														||
| 更新事務手数料 | - | ||
| 保証区分 | 
								連帯保証人+保証会社 | 
						||
| 保証会社 | 
							   区分:加入要 保証会社名:その他 (CIZにいがた保証) ベーシックプラン 賃料等の77%+審査事務手数料1,650円  | 
							
						||
| 家賃保証金 | 
							28,600円							
															 | 
						||
| 連帯保証人 | 
							   区分:要 ご身内の方から緊急連絡先になっていただきます。  | 
						||
| 仲介手数料 | 
								
																	33,000円
									 | 
							
						||
| 築年月 | 1994年4月(築31年) | ||
| 利用制限 | 法人:相談、学生:可、単身者:可、二人入居:不可、シニア(60歳以上)入居:相談、子供:不可、ペット:不可、楽器:不可、事務所利用:不可、ルームシェア:不可 | ||
| 学校区 | 阪之上小学校(161m)・東北中学校(1,338m) | ||
| 設備 | 閑静な住宅街、最寄り駅近く、ロフト、駐輪場あり、バイク置き場、南向き、2口コンロ、バストイレ別、暖房便座、エアコン、都市ガス、全居室フローリング、洗濯機置場 室内、BS端子・アンテナ、インターネット無料、各居室照明、インターネット接続可、内装リフォーム済み、外装リフォーム済み、即入居可、保証会社利用可能、学生向け、一人暮らし・学生向け、お勧め物件、長岡大学生におすすめ | ||
| 入居時期 | 即入居可 | ||
| 取引態様 | 仲介 | ||
| 備考 | - | ||
| 手数料負担割合/配分割合 | 貸主:0% 借主:100% / 元付:50% 客付:50% | ||
| 情報登録日 | 2025/10/14 | 次回更新予定日 | 2025/11/19 | 
							 
						 | 
						
							 
						 | 
					
| 
							 | 
						
							 | 
					
| TEL: | 0258-32-7490 | 
|---|---|
| 所在地: | 新潟県長岡市新町1丁目4番28号 | 
| 交通: | 長岡駅 | 
| 営業時間: | 9:00~18:00/定休日:土日祭日 | 
| 免許番号: | 新潟県知事(12)第2115号 | 
| 所属団体名: | 新潟県宅地建物取引協会 長岡支部 | 
| 取引態様: | 仲介 |