| 物件コード | 00127-100042 | ||
|---|---|---|---|
| 物件名 | ADI福住ビル | ||
| 交通 | 駅:上越新幹線 長岡駅から徒歩9分 | ||
| 所在地 | 新潟県長岡市福住2丁目4-44 | ||
| 物件種別 | 倉庫・工場・その他 | ||
| 総戸数 | - | ||
| 構造 | 鉄筋コン | 階建 | 地上2階建 | 
| 所在階/階数 | - | 号室 | - | 
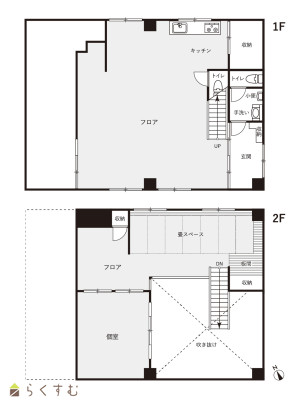
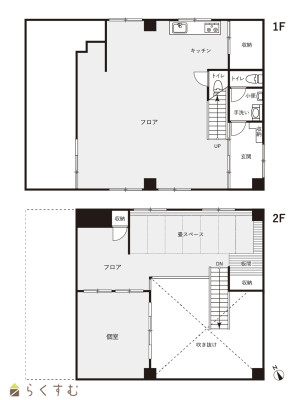
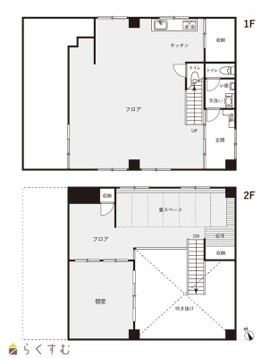
| 面積 | 152.24㎡ (46.05坪) | 方位 | - | 
| 間取り | 
						 | 
					||
| 賃料 | 11万円/月
								
								 | 
							管理費 | - | 
| 礼金 | 1ヶ月
								
								 | 
							敷金 | 2ヶ月
								
								 | 
						
| ほか初期費用 | - | その他諸費用 | - | 
| 更新料 | - | 火災(家財)保険 | - | 
| 共益費 | 																	
										3,300円
										 | 
							町内費 | - | 
| 駐車場 | 1台駐車可能。賃料込み。 | バイク料金 | - | 
| 鍵交換費 | - | 清掃料 | - | 
| 更新事務手数料 | - | ||
| 保証区分 | 
								連帯保証人+緊急連絡先 | 
						||
| 保証会社 | 
							   区分:指定なし -  | 
							
						||
| 連帯保証人 | 
							   区分:要 -  | 
						||
| 仲介手数料 | - | ||
| 築年月 | 1971年6月(築54年) | ||
| 利用制限 | 法人:可、事務所利用:可 | ||
| 学校区 | 阪之上小学校(451m)・東北中学校(1,281m) | ||
| 設備 | 即引き渡し、駐車場あり | ||
| 入居時期 | 即入居可 | ||
| 取引態様 | 貸主 | ||
| 備考 | - | ||
| 手数料負担割合/配分割合 | 貸主:-% 借主:-% / 元付:-% 客付:-% | ||
| 情報登録日 | 2025/10/27 | 次回更新予定日 | 2025/11/18 | 
							 
						 | 
						
							 
						 | 
					
							 
						 | 
						
							 
						 | 
					
| TEL: | 090-4133-0001 | 
|---|---|
| 所在地: | 新潟県長岡市古正寺町5-9 | 
| 交通: | |
| 営業時間: | 9:00~19:00/定休日:日曜日 | 
| 免許番号: | 新潟県知事(3)第5007号 | 
| 所属団体名: | 新潟県宅地建物取引業協会 | 
| 取引態様: | 貸主 |