| 静けさと利便性を兼ね備えた土手沿いの戸建て。1階ワンルームの伸びやかな空間に小上がり畳付き。周辺に買い物施設充実、千秋エリアへ車5分圏内、長岡北スマートICも利用しやすい立地です。 | |||
| 物件コード | 00125-100031 | ||
|---|---|---|---|
| 物件名 | 長岡市蓮潟2貸家 | ||
| 交通 | バス:蓮潟から徒歩10分 | ||
| 所在地 | 新潟県長岡市蓮潟2丁目14番7号 | ||
| 物件種別 | アパート・マンション・一戸建て | ||
| 総戸数 | 1戸 | ||
| 構造 | 木造 | 階建 | 地上2階建 |
| 所在階/階数 | - | 号室 | - |
| 面積 | 125.03㎡ (37.82坪) | 方位 | 指定なし |
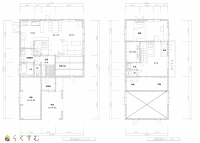
| 間取り | 1LDK (和室:6畳) (洋室:8)
LDK約18.5 |
||
| 賃料 | 8万円/月
|
管理費 | - |
| 礼金 | -
|
敷金 | 16万円
|
| ほか初期費用 | - | その他諸費用 | 消雪維持費(負担借主)消雪組合から納付連絡 |
| 更新料 | - | 火災(家財)保険 | 借主実費負担 |
| 共益費 | - | 町内費 | 借主実費負担 |
| 駐車場 | 屋根有1台・無1台 | バイク料金 | - |
| 鍵交換費 | - | 清掃料 | - |
| 更新事務手数料 | - | ||
| 保証区分 |
連帯保証人+保証会社 |
||
| 保証会社 |
区分:加入要 保証会社名:その他 (ジェイリースまたは日本セーフティ) 各保証会社の規定・プランによる |
||
| 連帯保証人 |
区分:要 65歳以下/就労者/本人確認資料・印鑑証明書(原本)の提出が可能な方 |
||
| 仲介手数料 |
88,000円
|
||
| 築年月 | 1996年1月(築30年) | ||
| 利用制限 | 法人:可、学生:不可、単身者:不可、二人入居:可、シニア(60歳以上)入居:不可、子供:可、ペット:相談、楽器:不可、事務所利用:不可、ルームシェア:相談 | ||
| 学校区 | 上川西小学校(1,268m)・江陽中学校(1,730m) | ||
| 設備 | 閑静な住宅街、日当り良好、デザイナーズ、LDK12畳以上、駐車2台可、専用庭、システムキッチン、2口コンロ、バストイレ別、追いだき機能付き、トイレ2か所以上、温水洗浄便座、暖房便座、エアコン、都市ガス、公営水道、下水、洗濯機置場 室内、脱衣所、玄関収納、ウォークインクロゼット、CATV、各居室照明、保証会社利用可能、ペット相談可、保証会社要加入 | ||
| 入居時期 | 2026年5月1日以降(修繕状況で変更あり) | ||
| 取引態様 | 仲介 | ||
| 備考 | ・ペット(小型犬or猫 2匹まで)・車庫の高さ、車幅、長さは事前に要確認、TV視聴はケーブルテレビをご契約いただきます(借主様直接申込) | ||
| 手数料負担割合/配分割合 | 貸主:-% 借主:100% / 元付:50% 客付:50% | ||
| 情報登録日 | 2026/03/26 | 次回更新予定日 | 2026/04/19 |
|
|
|
|
| TEL: | 0258-39-2919 |
|---|---|
| 所在地: | 新潟県長岡市摂田屋5-6-22 |
| 交通: | 信越線〔宮内駅〕徒歩13分 |
| 営業時間: | 8:30~17:30/定休日:隔週土曜・日曜日・祝/会社カレンダーによる |
| 免許番号: | 新潟県知事(8)第3591号 |
| 所属団体名: | 新潟県宅地建物取引業協会 長岡支部 |
| 取引態様: | 仲介 |