| 物件コード | 00079-100603 | ||
|---|---|---|---|
| 物件名 | ビストハウスⅢ | ||
| 交通 | 駅:信越線 茨目駅から徒歩44分、バス:新潟工科大学前から徒歩5分 | ||
| 所在地 | 新潟県柏崎市堀2250-1 | ||
| 物件種別 | アパート・マンション・一戸建て | ||
| 総戸数 | 12戸 | ||
| 構造 | 木造 | 階建 | 地上2階建 |
| 所在階/階数 | 1階/2階 | 号室 | 105号室 |
| 面積 | 29.29㎡ (8.86坪) | 方位 | 指定なし |
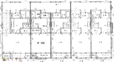
| 間取り | 1K (洋室:8)
サンルーム1.5帖つき |
||
| 賃料 | 3.3万円/月
|
管理費 | - |
| 礼金 | -
|
敷金 | 1ヶ月
|
| ほか初期費用 | - | その他諸費用 | - |
| 更新料 |
16,500円
|
火災(家財)保険 |
16,000円
2年分 |
| 共益費 |
4,000円
|
町内費 |
300円
|
| 駐車場 |
4,400円
|
バイク料金 | - |
| 鍵交換費 | - | 清掃料 | - |
| 更新事務手数料 | - | ||
| 保証区分 |
連帯保証人のみ |
||
| 保証会社 |
区分:指定なし - |
||
| 連帯保証人 |
区分:要 - |
||
| 仲介手数料 |
36,300円
|
||
| 築年月 | 1996年3月(築29年) | ||
| 利用制限 | 法人:可、学生:可、単身者:可、二人入居:不可、ペット:不可、楽器:不可、事務所利用:不可、ルームシェア:不可 | ||
| 学校区 | 新道小学校(1,528m)・南中学校(954m) | ||
| 設備 | 閑静な住宅街、バス停近く、最上階、敷地内ゴミ置き場、駐輪場あり、南向き、角住居、システムキッチン、バストイレ別、温水洗浄便座、エアコン、LPG、サンルーム、洗濯機置場 室内、クロゼット、クロゼット2ヵ所、BS端子・アンテナ、インターネット無料、各居室照明、保証会社利用可能、礼金不要、学生向け、一人暮らし・学生向け、家電付き、お勧め物件、柏崎 大学、新潟産業大学生におすすめ、新潟工科大学生におすすめ、早期契約物件(柏崎の大学向け※柏崎のみ)、退去予定物件(柏崎大学むけ※柏崎のみ) | ||
| 入居時期 | 令和8年3月下旬以降 | ||
| 取引態様 | 仲介 | ||
| 備考 | - | ||
| 手数料負担割合/配分割合 | 貸主:0% 借主:100% / 元付:50% 客付:50% | ||
| 情報登録日 | 2026/02/12 | 次回更新予定日 | 2026/03/07 |
|
|
|
|
|
|
| TEL: | 0257-22-6170 |
|---|---|
| 所在地: | 新潟県柏崎市幸町3番26アークビル101 |
| 交通: | 柏崎駅 |
| 営業時間: | 9:00~17:30/定休日:土・日・祝日*3月は無休営業致します |
| 免許番号: | 新潟県知事(7)第4045号 |
| 所属団体名: | (公社)新潟県宅地建物取引業協会 柏崎支部 |
| 取引態様: | 仲介 |