| 物件コード | 00079-100111 | ||
|---|---|---|---|
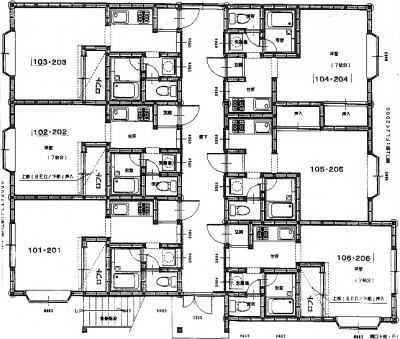
| 物件名 | ビストハウスⅠ | ||
| 交通 | 駅:JR茨目駅から徒歩15分、バス:田尻工業団地から徒歩7分 | ||
| 所在地 | 新潟県柏崎市佐藤池新田75-2 | ||
| 物件種別 | アパート・マンション・一戸建て | ||
| 総戸数 | 12戸 | ||
| 構造 | 木造 | 階建 | 地上2階建 |
| 所在階/階数 | 1階/2階 | 号室 | 101号室 |
| 面積 | 25.38㎡ (7.67坪) | 方位 | 指定なし |
| 間取り | 1K (洋室:7)
|
||
| 賃料 | 3.5万円/月
|
管理費 | - |
| 礼金 | 1ヶ月
|
敷金 | 1ヶ月
|
| ほか初期費用 | - | その他諸費用 | - |
| 更新料 | - | 火災(家財)保険 |
16,000円
2年分 |
| 共益費 |
3,000円
|
町内費 | - |
| 駐車場 |
4,400円
|
バイク料金 | - |
| 鍵交換費 | - | 清掃料 | - |
| 更新事務手数料 |
11,000円
|
||
| 保証区分 |
連帯保証人+緊急連絡先 |
||
| 保証会社 |
区分:指定なし - |
||
| 連帯保証人 |
区分:要 - |
||
| 仲介手数料 |
38,500円
|
||
| 築年月 | 1993年3月(築32年) | ||
| 利用制限 | 法人:可、学生:可、二人入居:相談、ペット:不可、楽器:不可、事務所利用:不可、ルームシェア:不可 | ||
| 学校区 | 田尻小学校(580m)・東中学校(1,442m) | ||
| 設備 | 閑静な住宅街、バス停近く、日当り良好、敷地内ゴミ置き場、ロフト、角住居、ガスコンロ 設置済み、バストイレ別、エアコン、都市ガス、洗濯機置場 室内、クロゼット、BS端子・アンテナ、各居室照明、インターネット接続可、即入居可、一人暮らし・学生向け、家電付き、お勧め物件、新潟産業大学生におすすめ、早期契約物件(柏崎の大学向け※柏崎のみ) | ||
| 入居時期 | 即入居可 | ||
| 取引態様 | 仲介 | ||
| 備考 | - | ||
| 手数料負担割合/配分割合 | 貸主:0% 借主:100% / 元付:50% 客付:50% | ||
| 情報登録日 | 2025/12/24 | 次回更新予定日 | 2026/01/13 |
|
|
|
|
|
|
| TEL: | 0257-22-6170 |
|---|---|
| 所在地: | 新潟県柏崎市幸町3番26アークビル101 |
| 交通: | 柏崎駅 |
| 営業時間: | 9:00~17:30/定休日:土・日・祝日*3月は無休営業致します |
| 免許番号: | 新潟県知事(7)第4045号 |
| 所属団体名: | (公社)新潟県宅地建物取引業協会 柏崎支部 |
| 取引態様: | 仲介 |